Preferiti

Sponsorizza

Stampa

Villa in vendita con giardino a Aviano

  • 195.000€
  • 6 locali
  • 180 mq
  • Vendesi

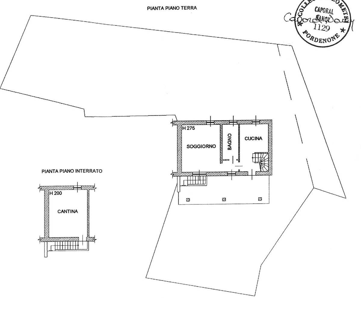
Vendiamo in zona residenziale tranquilla, ottima abitazione in aderenza ad altra con solamente una parete, composta da ingresso, cucina (rimane arredata), soggiorno, servizio, ripostiglio e splendido porticato abitabile prospiciente il giardino di propriet; al piano primo due camere da letto matrimoniali, piccolo servizio e terrazzo; al piano superiore ampia soffitta mansardata e rifinita.
Ampio giardino di pertinenza privato con doppio accesso carraio e portico/tettoia per ricovero automezzi.
Al piano interrato comoda cantina.
Buono stato manutentivo generale, dotata anche di impianto di climatizzazione.
Locato a personale USAF fino a dicembre 2026 a condizioni molto interessanti anche per chi intendesse acquistare per investimento.
Contattaci per ulteriori informazioni e visita il nostro sito sempre aggiornato Contatta l'inserzionista

La Precisa SAS di Massimo Crotti & C.La Precisa SAS di Massimo Crotti & C.
Via della Colonna 26
33170, Pordenone (Pordenone)
Visualizza Telefono

INFORMAZIONI SULL'IMMOBILE

  • Riferimento: LPP01-4385
  • Tipologia: Villa in Vendita
  • Locali: 6 Locali
  • Stato: Buono
  • Bagni: 2
  • Prezzo: 195.000 €
  • Prezzo al mq: 1.083 €
  • Riscaldamento: Autonomo
  • Giardino: Privato
  • Cantina: Si
  • Soffitta: Si
  • Modificato il: 05/02/2026
  • Scheda: SC9253282

Stabile

  • Classe Energetica: n.d.

Mappa e indirizzo

33081 Aviano (Pordenone)
mappa mostra l'annuncio su mappa

Galleria Fotografica

Contatta l'inserzionista

La Precisa SAS di Massimo Crotti & C.

La Precisa SAS di Massimo Crotti & C. di Pordenone propone in vendita questo immobile, contattali subito!

Annunci immobiliari a Aviano (PN)

Copyright Š 2026 PCase.it. All rights reserved. Sede operativa MILANO. P.IVA 08508420968 - Condizioni d'uso e privacy