Preferiti

Sponsorizza

Stampa

Rustico in vendita a Ascoli Piceno

  • 250.000€
  • 200 mq
  • Vendesi

Ascoli Piceno, splendido casolare a due passi dal centro della citt in posizione panoramica.
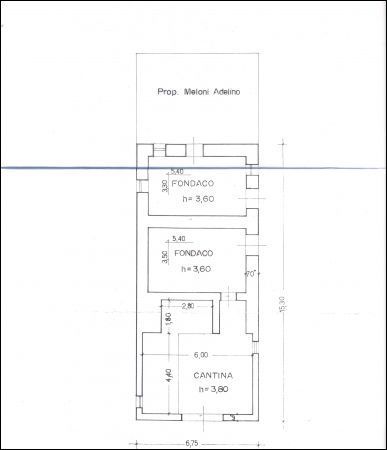
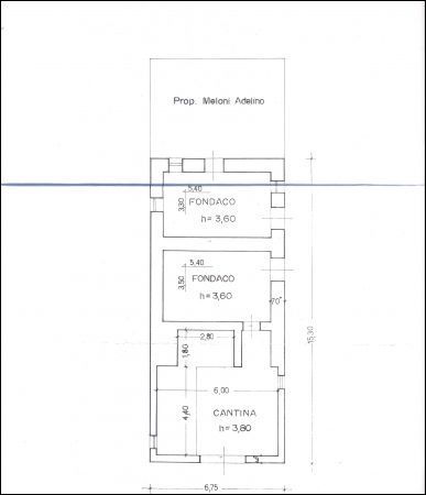
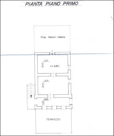
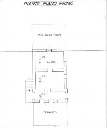
L'immobile h disposto su tre livelli, completamente da ristrutturare.
Ideale perdue nuclei famigliari, giardino di mq 2000 circa, con opportunit di acquistare ulteriore terreno. Contatta l'inserzionista

Ciccarelli DanielaCiccarelli Daniela
Corso Trento e Trieste, 6B
63100, Bolzano (Bolzano)
Visualizza Telefono

INFORMAZIONI SULL'IMMOBILE

  • Riferimento: 2791
  • Tipologia: Rustico in Vendita
  • Prezzo: 250.000 €
  • Prezzo al mq: 1.250 €
  • Modificato il: 13/11/2013
  • Scheda: SC9572851

Stabile

  • Classe Energetica: n.d.

Galleria Fotografica

Contatta l'inserzionista

Ciccarelli Daniela

Ciccarelli Daniela di Bolzano propone in vendita questo immobile, contattali subito!

Annunci immobiliari a Ascoli Piceno (AP)

Copyright Š 2026 PCase.it. All rights reserved. Sede operativa MILANO. P.IVA 08508420968 - Condizioni d'uso e privacy