Preferiti

Sponsorizza

Stampa

Capannone in vendita da ristrutturare a Turbigo in via adua 8

  • 500.000€
  • 1600 mq
  • Vendesi

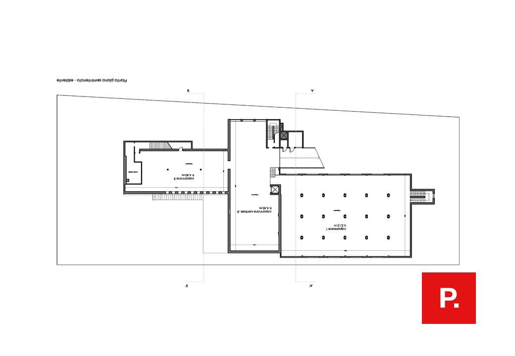
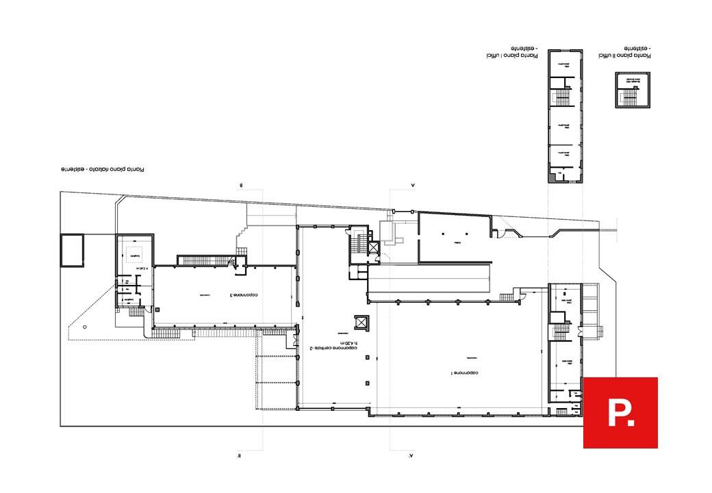
Si propone in vendita a Turbigo un ampio capannone, libero al rogito.
L'immobile si estende su una superficie totale di 1600 metri quadrati, di cui 1300 utilizzabili come superficie calpestabile suddiviso tra uffici e capannone.
Attualmente, lo stato di conservazione dell'edificio da ristrutturare, offrendo cos ampie possibilit di personalizzazione e adattamento alle proprie esigenze.
L'altezza interna del capannone di circa 7 metri, il che lo rende particolarmente adatto per attivit che richiedono un elevato spazio verticale.
La struttura disposta su due piani, garantendo un'ottima divisione degli spazi e un'ottimale fruizione degli stessi.
L'unico ingresso, comodo e funzionale, facilita l'accesso al capannone ed l'unico punto di accesso per veicoli e mezzi di trasporto.
Ideale per attivit commerciali o industriali, il capannone si trova in una posizione strategica e facilmente raggiungibile, garantendo un'elevata visibilit e una comoda logistica. Contatta l'inserzionista

Immobiliare Petrella srlImmobiliare Petrella srl
Corso Garibaldi 43
81055, Santa Maria Capua Vetere (Caserta)
Visualizza Telefono

INFORMAZIONI SULL'IMMOBILE

  • Riferimento: kA9028
  • Tipologia: Capannone in Vendita
  • Stato: da Ristrutturare
  • Prezzo: 500.000 €
  • Prezzo al mq: 313 €
  • Modificato il: 28/02/2025
  • Scheda: SC9568698

Stabile

  • Classe Energetica: n.d.

Mappa e indirizzo

Capannone sito in via adua, 8
20029 Turbigo (Milano)
mappa mostra l'annuncio su mappa

Galleria Fotografica

Contatta l'inserzionista

Immobiliare Petrella srl

Immobiliare Petrella srl di Santa Maria Capua Vetere propone in vendita questo immobile, contattali subito!

Annunci immobiliari a Turbigo (MI)

Copyright Š 2026 PCase.it. All rights reserved. Sede operativa MILANO. P.IVA 08508420968 - Condizioni d'uso e privacy