Preferiti

Sponsorizza

Stampa

Capannone in vendita a Trento

  • 250.000€
  • 303 mq
  • Vendesi

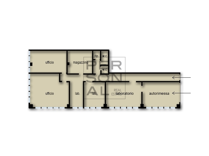
TRENTO- SPINI GARDOLO_ID_A-CAP-016: - PER INVESTIMENTO RENDIMENTO del 5,3% - In complesso artigianale-industriale, vendesi CAPANNONE PRODUTTIVO a REDDITO di 303 MQ ca. h. 4,50, posto al primo piano e attualmente suddiviso in LABORATORIO, MAGAZZINO, UFFICI, SERVIZI, AUTORIMESSA.
Riscaldamento e condizionamento presenti.
Comprensivo di 2 POSTI AUTO esterni.
LOCATO a 13.200,00 euro annui.
OTTIMA RESA Per ulteriori informazioni e sopralluogo: Angelo Graziano Broker PERSONAL RE - Cell. 334 336 54 25 APE ''D'' - EPgl: kWh/m3a Euro 250.000 - ID_A-CAP-016 PERSONAL RE - Consulenza Immobiliare & Home Staging TRENTO | Via Galileo Galilei 9-11 | 38122 | TN BOLZANO | Corso Italia 30 | 39100 | BZ VALLE LAGHI - CAVEDINE | Viale Degasperi 12 | 38073 | TN Contatta l'inserzionista

INFORMAZIONI SULL'IMMOBILE

  • Riferimento: A-CAP-016
  • Tipologia: Capannone in Vendita
  • Stato: Buono
  • Prezzo: 250.000 €
  • Prezzo al mq: 825 €
  • Modificato il: 05/06/2025
  • Scheda: SC9641264

Stabile

  • Classe Energetica: n.d.

Mappa e indirizzo

38100 Trento (Trento)
Trento Nord
mappa mostra l'annuncio su mappa

Contatta l'inserzionista

PERSONAL RE ® - Consulenza Immobiliare & Home Staging

PERSONAL RE ® - Consulenza Immobiliare & Home Staging di Trento propone in vendita questo immobile, contattali subito!

Annunci immobiliari a Trento (TN)

Copyright © 2026 PCase.it. All rights reserved. Sede operativa MILANO. P.IVA 08508420968 - Condizioni d'uso e privacy