Preferiti

Sponsorizza

Stampa

Capannone in vendita a Ripatransone in contrada molino snc

  • 310.000€
  • 1300 mq
  • Vendesi

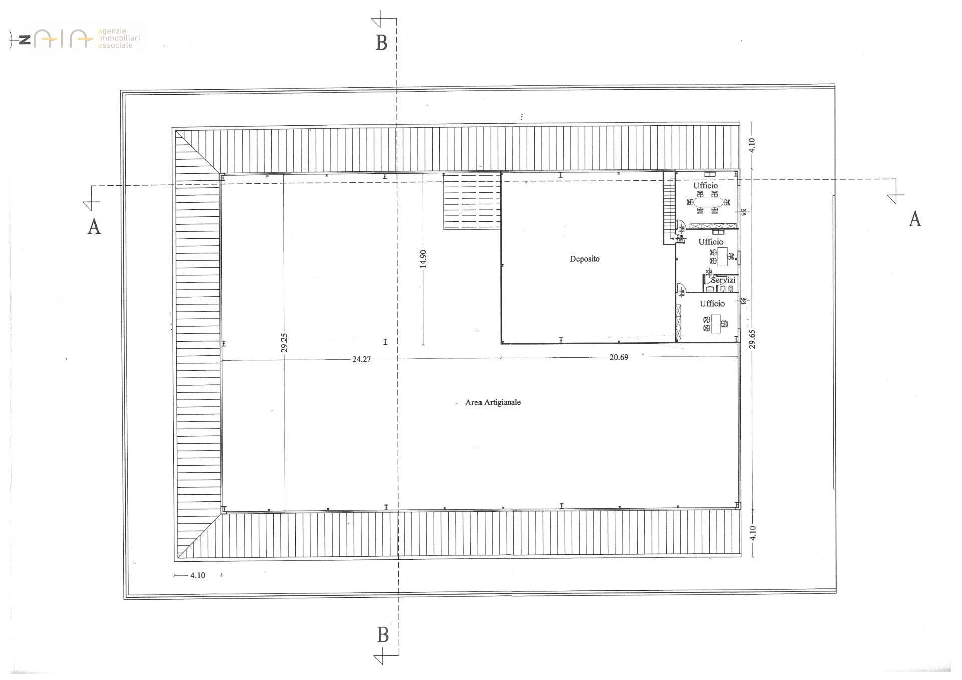
Capannone industriale smontato della superficie complessiva di circa mq 1300. Il fabbricato e' costituito da una struttura metallica e da pannelli in cls prefabbricato.
L' altezza interna del manufatto, sotto trave e' di ml 7,25 e le dimensioni in pianta sono di ml 45 x ml 30. Il fabbricato e' dotato di elementi prefabbricati per la realizzazione di soppalco e di una pensilina perimetrale in struttura metallica della profondit di 4 ml. Il manufatto verr posizionato all'interno di un lotto artigianale/industriale della dimensione di mq 2671. Ampio spazio di manovra esterna per accesso e transito di qualsiasi mezzo pesante.
Sono da fare solo le opere di sottofondazione.
Ottima soluzione per qualsiasi tipo di attivit. Contatta l'inserzionista

Abitare Gruppo ImmobiliareAbitare Gruppo Immobiliare
Corso Giuseppe Mazzini n. 213
63074, San Benedetto del Tronto (Ascoli Piceno)
Visualizza Telefono

INFORMAZIONI SULL'IMMOBILE

  • Riferimento: 33388
  • Tipologia: Capannone in Vendita
  • Stato: Ottimo
  • Prezzo: 310.000 €
  • Prezzo al mq: 238 €
  • Modificato il: 03/04/2025
  • Scheda: SC9554673

Stabile

  • Classe Energetica: n.d.

Mappa e indirizzo

Capannone sito in contrada molino, snc
63038 Ripatransone (Ascoli Piceno)
mappa mostra l'annuncio su mappa

Galleria Fotografica

Contatta l'inserzionista

Abitare Gruppo Immobiliare

Abitare Gruppo Immobiliare di San Benedetto del Tronto propone in vendita questo immobile, contattali subito!

Annunci immobiliari a Ripatransone (AP)

Copyright Š 2026 PCase.it. All rights reserved. Sede operativa MILANO. P.IVA 08508420968 - Condizioni d'uso e privacy