Preferiti

Sponsorizza

Stampa

Capannone in vendita a Pioltello

  • 911.000€
  • 825 mq
  • Vendesi

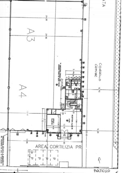
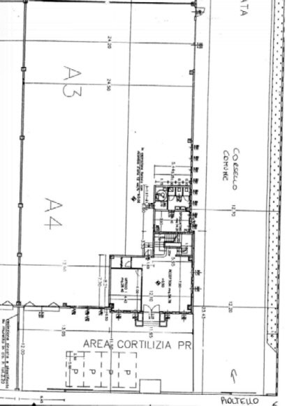
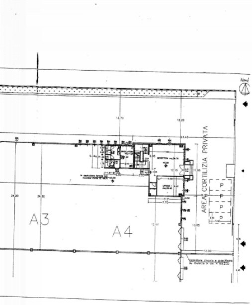
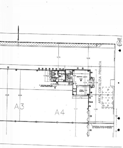
porzione capannone ab p.t. mq. 1166 - h 7,6 mt - predisposto carro ponte 10 tonn. uffici p.t. mq. 99,5 con imp. riscaldamento.
servizio p.t. e corpi scala mq. 78 1.p. uso uffici al rustico mq. 198,5 ca. area cortilizia privata mq. 700 ca. possibilita' di abbinare multipli di mq. 250 Contatta l'inserzionista

SOGIM srlSOGIM srl
Via Margherita De Vizzi Viganò 93/95
20092, Cinisello Balsamo (Milano)
Visualizza Telefono

INFORMAZIONI SULL'IMMOBILE

  • Riferimento: 60
  • Tipologia: Capannone in Vendita
  • Prezzo: 911.000 €
  • Prezzo al mq: 1.104 €
  • Modificato il: 24/02/2017
  • Scheda: SC9553150

Stabile

  • Classe Energetica: n.d.

Mappa e indirizzo

20096 Pioltello (Milano)
mappa mostra l'annuncio su mappa

Galleria Fotografica

Contatta l'inserzionista

SOGIM srl

SOGIM srl di Cinisello Balsamo propone in vendita questo immobile, contattali subito!

Annunci immobiliari a Pioltello (MI)

Copyright © 2026 PCase.it. All rights reserved. Sede operativa MILANO. P.IVA 08508420968 - Condizioni d'uso e privacy