Preferiti

Sponsorizza

Stampa

Locale commerciale in vendita a Nereto

  • 375.000€
  • 6 locali
  • 560 mq
  • Vendesi

Nereto vendesi locale commerciale ad uso bar/ristorante sito in un complesso commerciale parzialmente ultimato ed edificato con struttura mista di cemento armato, pannelli prefabbricati e legno.
Il complesso ubicato in zona produttiva/industriale a bassa densit.
La zona da considerare di recente (anni 90) sviluppo a ridosso del centro abitato di Nereto, servita da una buona viabilit ordinaria e ben collegata anche alle principali arterie stradali.
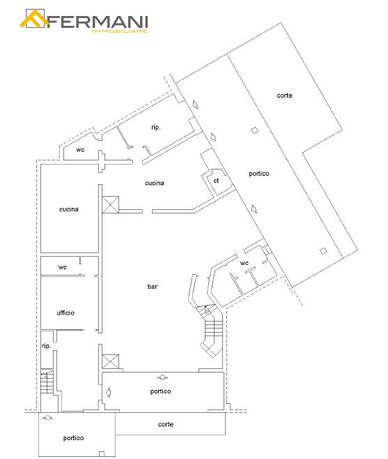
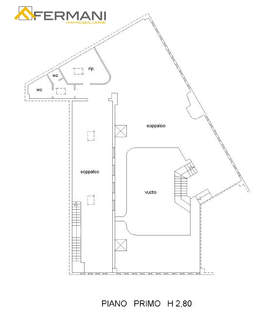
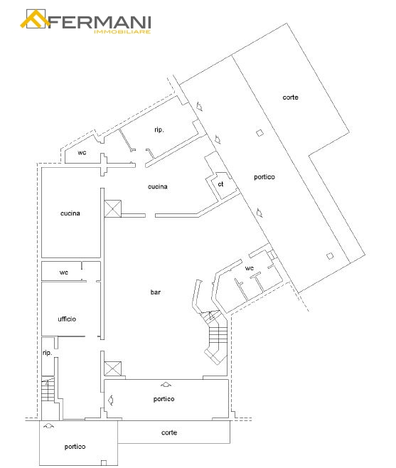
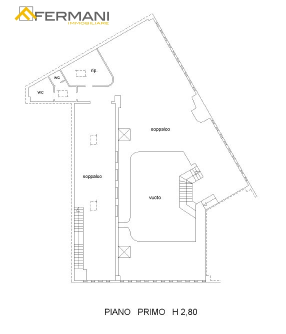
Il ristorante composto al piano terra da sala bar, ufficio, ripostigli, servizi igienici e ripostigli, al piano primo due ampi ambienti soppalcati, ripostiglio e servizi igienici.
La pavimentazione di marmo e una porzione di legno nel soppalco, le pareti intonacate e tinteggiate con esclusione dei servizi che sono rivestiti con ceramica.
Gli infissi esterni sono di alluminio anodizzato preverniciato con vetro camera antisfondamento; quelli interni sono legno tamburato e impiallacciato.
L'impianto di climatizzazione predisposto ma non esistente.
Limpianto elettrico sfilabile sottotraccia ma parzialmente smontato e da reintegrare.
Rif. 1197 Contatta l'inserzionista

Fermani Immobiliare & C. sncFermani Immobiliare & C. snc
p.zza ventidio basso 7
63100, Viterbo (Viterbo)
Visualizza Telefono

INFORMAZIONI SULL'IMMOBILE

  • Riferimento: 1197
  • Tipologia: Locale commerciale in Vendita
  • Locali: 6 Locali
  • Stato: Buono
  • Prezzo: 375.000 €
  • Prezzo al mq: 670 €
  • Modificato il: 18/05/2018
  • Scheda: SC9564276

Stabile

  • Classe Energetica: n.d.

Mappa e indirizzo

64015 Nereto (Teramo)
mappa mostra l'annuncio su mappa

Galleria Fotografica

Contatta l'inserzionista

Fermani Immobiliare & C. snc

Fermani Immobiliare & C. snc di Viterbo propone in vendita questo immobile, contattali subito!

Annunci immobiliari a Nereto (TE)

Copyright Š 2026 PCase.it. All rights reserved. Sede operativa MILANO. P.IVA 08508420968 - Condizioni d'uso e privacy