Preferiti

Sponsorizza

Stampa

Capannone in vendita a Monza in via isonzo 24

  • trattativa riservata
  • 1638 mq
  • Vendesi

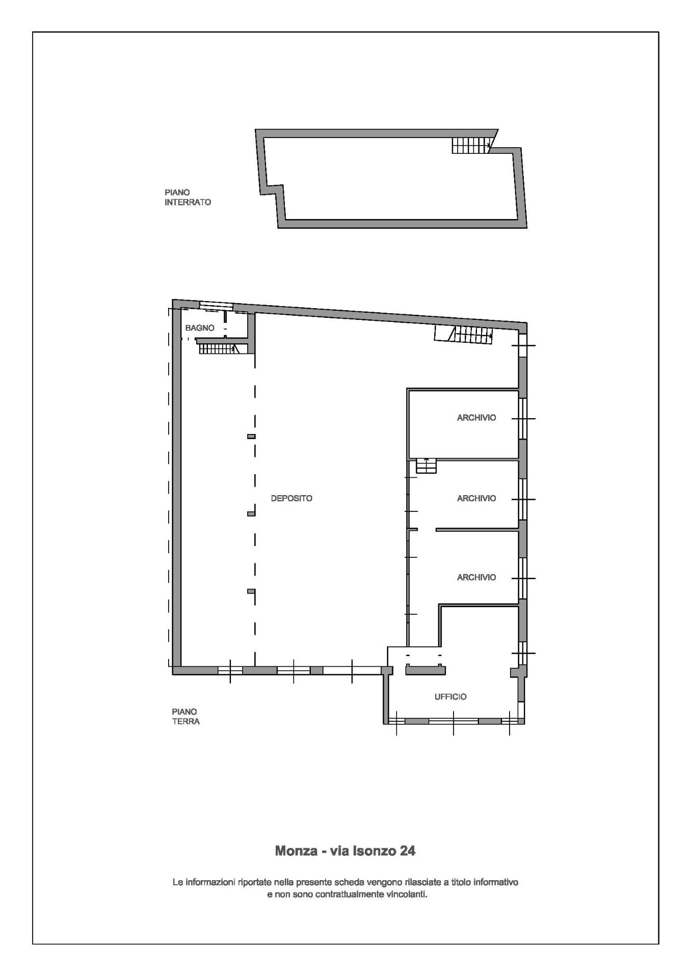
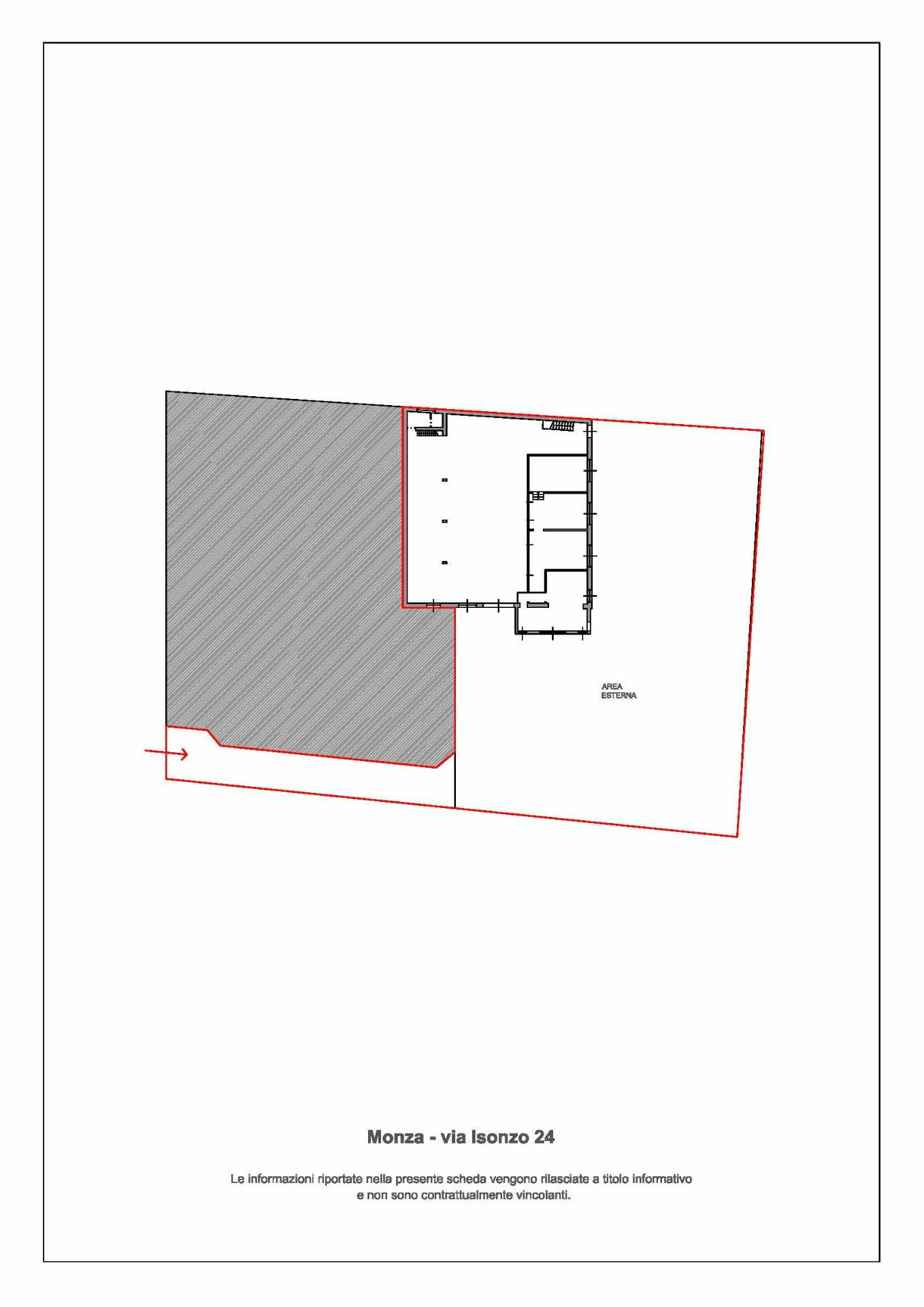
A breve distanza dalla stazione FS di Monza centrale (lato binario 7) capannone con accesso privato regolamentato da cancello e sbarra basculante.
La superficie coperta, pari a circa 490 mq ad uso deposito per i 2/3 circa, mentre la restante superficie prevede uffici e showroom.
L'area deposito ha attualmente un'altezza di circa 4,3 m con copertura piatta, dal momento che stato ricavato un ulteriore locale deposito in quota.
L'altezza totale al colmo sarebbe di 7,5 m. L'edificio insiste su un'area complessiva di 1640 mq. L'area scoperta attualmente presenta una porzione pavimentata con spazio di manovra su due lati del fabbricato ed una porzione a verde.
Possibilit di ampliamento della superficie edificata. Contatta l'inserzionista

Valtorta SrlValtorta Srl
Via P.R.Giuliani 10
20900, Monza (Monza Brianza)
Visualizza Telefono

INFORMAZIONI SULL'IMMOBILE

  • Riferimento: 3702
  • Tipologia: Capannone in Vendita
  • Spazio Auto: No
  • Cantina: Si
  • Modificato il: 08/10/2019
  • Scheda: SC9620291

Stabile

I.P.E.
112,55Kwh/m2
E

Mappa e indirizzo

Capannone sito in via isonzo, 24
20052 Monza (Monza Brianza)
Buonarroti, Regina Pacis, Via San Damiano
mappa mostra l'annuncio su mappa

Galleria Fotografica

Contatta l'inserzionista

Valtorta Srl

Valtorta Srl di Monza propone in vendita questo immobile, contattali subito!

Annunci immobiliari a Monza (MB)

Copyright Š 2026 PCase.it. All rights reserved. Sede operativa MILANO. P.IVA 08508420968 - Condizioni d'uso e privacy