Preferiti

Sponsorizza

Stampa

Capannone in vendita a Greve in Chianti in via linari

  • Prezzo ribassato -3%
  • € 255.000 245.000€
  • 266 mq
  • Vendesi

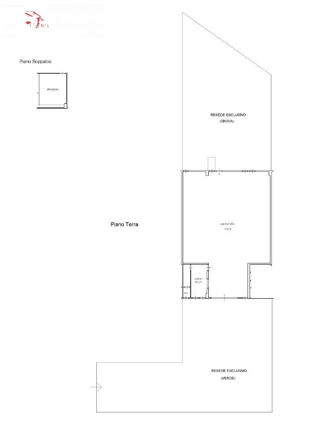
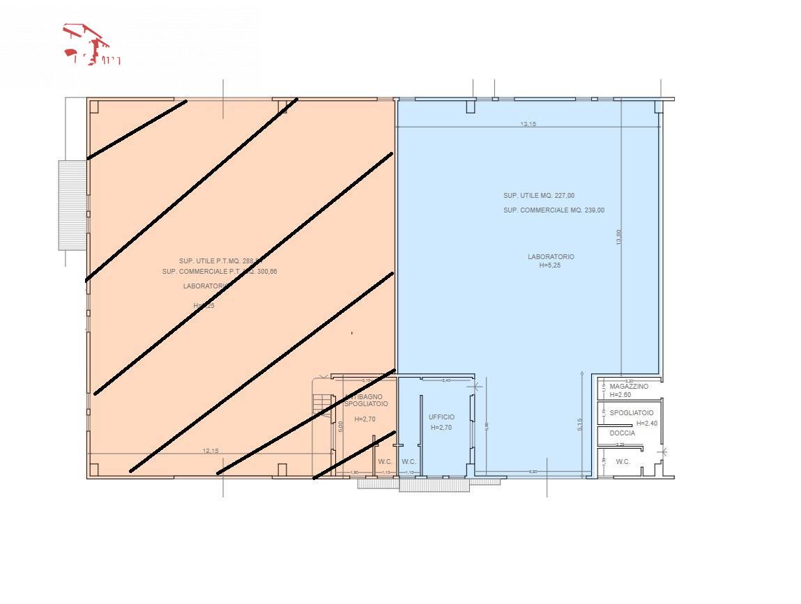
Greve in Chianti, a pochi chilometri da Strada vendesi capannone ad uso artigianale/industriale di mq.239 + soppalco di mq.22,30 (superficie utile 227 circa + 20), con altezza interna di m.5,40, ingresso carrabile da piazzale di propriet di mq.575 con asfalto e ghiaino.
Impianto con quadro elettrico base, impianto idrico allacciato al pozzo condominiale.
Oltre a resede condominiale con cancello carrabile automatico, cancello pedonale e pozzo artesiano.
(In vendita la parte azzurra delle planimetrie). Euro 245.000 CAP56 Contatta l'inserzionista

Caterina Pirrone immobiliareCaterina Pirrone immobiliare
Viale Europa 101
50126, Firenze (Firenze)
Visualizza Telefono

INFORMAZIONI SULL'IMMOBILE

  • Riferimento: CAP56
  • Tipologia: Capannone in Vendita
  • Stato: Buono
  • Prezzo: 245.000 €
  • Prezzo al mq: 921 €
  • Modificato il: 22/04/2026
  • Scheda: SC9565521

Stabile

G

Mappa e indirizzo

Capannone sito in via linari
50022 Greve in Chianti (Firenze)
mappa mostra l'annuncio su mappa

Galleria Fotografica

Contatta l'inserzionista

Caterina Pirrone immobiliare

Caterina Pirrone immobiliare di Firenze propone in vendita questo immobile, contattali subito!

Annunci immobiliari a Greve in Chianti (FI)

Copyright Š 2026 PCase.it. All rights reserved. Sede operativa MILANO. P.IVA 08508420968 - Condizioni d'uso e privacy