Preferiti

Sponsorizza

Stampa

Capannone in vendita a Fano in via flaminia

  • Prezzo ribassato -4%
  • € 260.000 249.000€
  • 470 mq
  • Vendesi

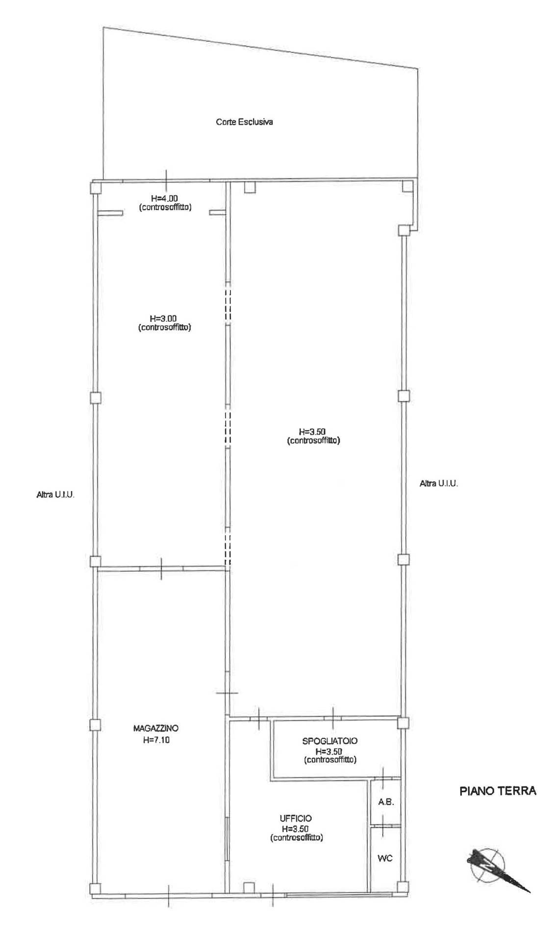
Fano - zona artigianale periferica - Ag. La Pesarese propone in vendita capannone artigianale a reddito, scadenza contratto Settembre 2026. L'immobile dispone di entrata carrabile e pedonale, area ufficio, spogliatoio, bagno, area magazzino H 7.10 TOTALE ed area produttiva controsoffittata a H 3.00 e H 3.50 suddivisa in due diversi ambienti riscaldati.
Completa la propriet scoperto privato intercluso.
Ape cl. D Maggiori informazioni contattare Francesco whts 346/7480725 - *******@*******. Contatta l'inserzionista

La PesareseLa Pesarese
V.le XII Settembre 44
61032, Fano (Pesaro e Urbino)
Visualizza Telefono

INFORMAZIONI SULL'IMMOBILE

  • Riferimento: VF001305
  • Tipologia: Capannone in Vendita
  • Stato: Ottimo
  • Prezzo: 249.000 €
  • Prezzo al mq: 530 €
  • Modificato il: 25/02/2026
  • Scheda: SC9484178

Stabile

D

Mappa e indirizzo

Capannone sito in via flaminia
61032 Fano (Pesaro e Urbino)
mappa mostra l'annuncio su mappa

Contatta l'inserzionista

La Pesarese

La Pesarese di Fano propone in vendita questo immobile, contattali subito!

Annunci immobiliari a Fano (PU)

Copyright Š 2026 PCase.it. All rights reserved. Sede operativa MILANO. P.IVA 08508420968 - Condizioni d'uso e privacy