Preferiti

Sponsorizza

Stampa

Capannone in vendita a Inverigo

  • 485.000€
  • 420 mq
  • Vendesi

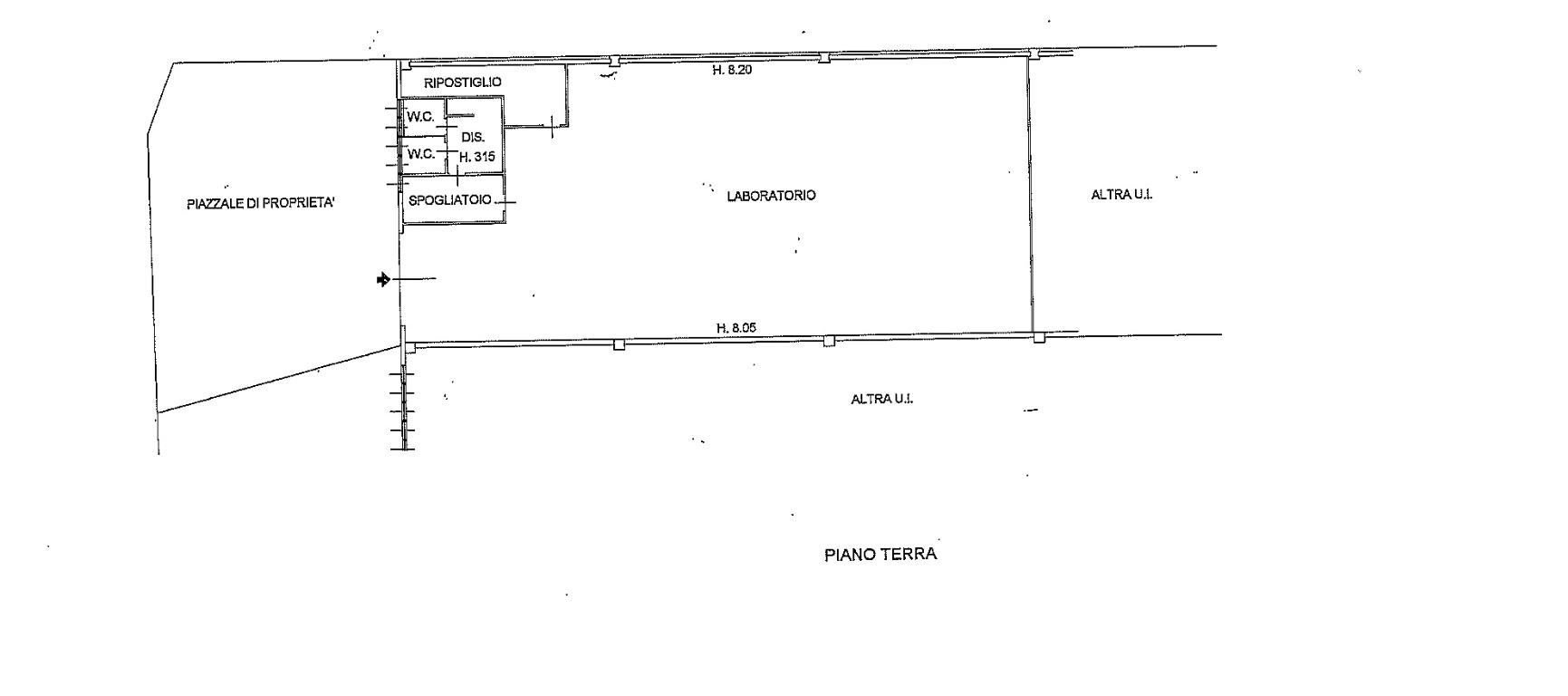
Proponiamo in vendita nel comune di Carugo, in zona industriale, capannone di recente realizzazione di 420 mq ca con area esterna di 200 mq ca. Altezze da 8,05 a 8,20 metri.
Carroponte.
Classe D Ipe 348,35 KWh/ma Contatta l'inserzionista

SOGIM COMOSOGIM COMO
via Vittorio Emanuele II,26
22100, Como (Como)
Visualizza Telefono

INFORMAZIONI SULL'IMMOBILE

  • Riferimento: 5480
  • Tipologia: Capannone in Vendita
  • Prezzo: 485.000 €
  • Prezzo al mq: 1.155 €
  • Modificato il: 09/06/2017
  • Scheda: SC9563282

Stabile

I.P.E.
348,35Kwh/m3
D

Mappa e indirizzo

22044 Inverigo (Como)
mappa mostra l'annuncio su mappa

Galleria Fotografica

Contatta l'inserzionista

SOGIM COMO

SOGIM COMO di Como propone in vendita questo immobile, contattali subito!

Annunci immobiliari a Inverigo (CO)

Copyright Š 2026 PCase.it. All rights reserved. Sede operativa MILANO. P.IVA 08508420968 - Condizioni d'uso e privacy