Preferiti

Sponsorizza

Stampa

Capannone in affitto a Settime in regione bona 2

  • 5.000€
  • 450 mq
  • Affittasi

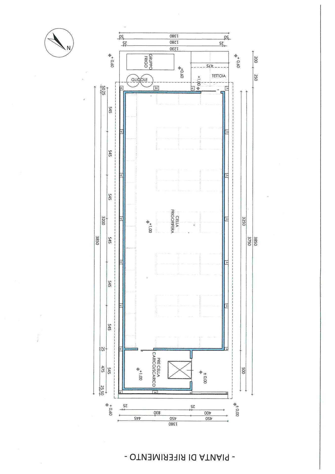
Capannone ad uso cella frigorifera per la conservazione e lo stoccaggio di prodotti surgelati che arriva a -20° in Reg. Bona 2 Fraz. Meridiana 14020 Settime, Asti, a circa 10 km dal casello autostradale di Asti Ovest, sulla direttrice Asti-Chivasso, comodissimo per chi svolge attivit di distribuzione prodotto alimentari nelle province di Asti, Alessandria, Torino e Cuneo.
Ideale per stoccaggio merci munito di due uscite, una con efficiente ribalta per il carico e lo scarico di mezzi pesanti e una con una comoda e funzionale rampa per caricare/scaricare i furgoni pi piccoli.
Caratteristiche: - Dimensioni: Cella frigorifera BT: 32,5 x 12,8 x H 8 mt Anti-cella con baia di carico: 5 x 7 H 5mt Due porte scorrevoli, spessore dei pannelli 240 (220 x 300 H) - Capacit: scaffalature con capacit di 450 posti euro pallet 80x120.
(mc.2800 ca.) - Temperatura esercizio: -25°C - Sistema di refrigerazione: due motori da 62 KW (Frig./h 53000) - n. 2 evaporatori ad espansione diretta per raffreddamento cella.
(max assorbimento elettrico 78Kw) - N.2 unit motocondensanti ad aria Frascold - Porte: Due porte scorrevoli, spessore dei pannelli 240 - Illuminazione interna: lampade a led - Cabina elettrica MT Contatta l'inserzionista

Internau Monferrato - RBVG SRLInternau Monferrato - RBVG SRL
Localita' Viatosto, 30
14100, Asti (Asti)
Visualizza Telefono

INFORMAZIONI SULL'IMMOBILE

  • Riferimento: 14790
  • Tipologia: Capannone in Affitto
  • Stato: Buono
  • Prezzo: 5.000 €
  • Prezzo al mq: 11 €
  • Modificato il: 01/04/2025
  • Scheda: SC9556956

Stabile

  • Classe Energetica: n.d.

Mappa e indirizzo

Capannone sito in regione bona, 2
14020 Settime (Asti)
mappa mostra l'annuncio su mappa

Galleria Fotografica

Contatta l'inserzionista

Internau Monferrato - RBVG SRL

Internau Monferrato - RBVG SRL di Asti propone in affitto questo immobile, contattali subito!

Annunci immobiliari a Settime (AT)

Copyright Š 2026 PCase.it. All rights reserved. Sede operativa MILANO. P.IVA 08508420968 - Condizioni d'uso e privacy