Preferiti

Sponsorizza

Stampa

Capannone in affitto a Castel di Lama

  • 1.200€
  • 700 mq
  • Affittasi

CAPANNONE IN AFFITTO ANCARANO (TE) Capannone con Ampia Area Esterna in Locazione ad Ancarano Situato in una posizione strategica nel comune di Ancarano, questo immobile industriale facilmente raggiungibile direttamente da una strada asfaltata, offrendo comodi e rapidi collegamenti alle principali arterie stradali.
L'immobile, si sviluppa su pi livelli e si presta a svariate attivit produttive, logistiche e di deposito.
L'area beneficia di una buona illuminazione naturale e offre spazio sufficiente per operazioni di carico e scarico merci.
Piano Primo Sottostrada (584 mq): Spazioso deposito, perfetto per stoccaggio di materiali e merci.
La disposizione di questo piano consente una facile accessibilit e sfruttamento per ampie operazioni logistiche.
Locali Accessori (144 mq): Comodi uffici, spogliatoi e altri ambienti di supporto alle attivit aziendali, per una gestione operativa ottimale.
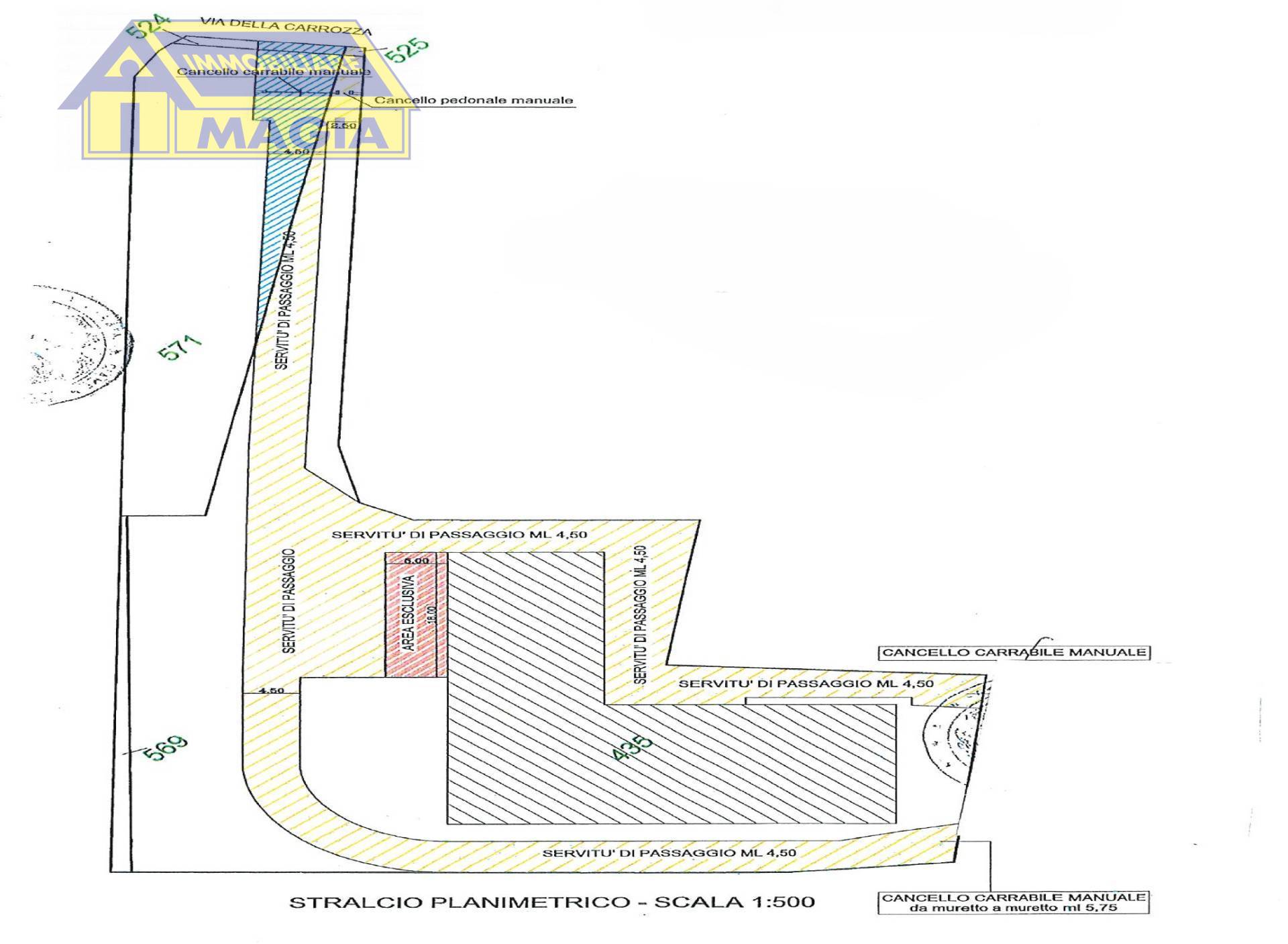
Area Sedime (3.282 mq): abbinato al capannone ci sono ben 3.282 mq area coltivabile adiacente.
Entrate Private: Limmobile dispone di due ingressi privati.
Uno dei quali, situato direttamente sulla strada principale, consente laccesso facilitato anche a camion carichi provenienti da altre zone. Questo rende il capannone particolarmente adatto a operazioni logistiche di ampio respiro, offrendo facilit nelle operazioni di carico e scarico; sono stati eseguiti Recenti lavori di rifacimento dellarea esterna e del piazzale con cemento liscio per accesso ottimale a veicoli pesanti.
I lavori di rifacimento dellarea antistante il capannone hanno reso laccesso ancora pi pratico e sicuro per veicoli di grandi dimensioni, garantendo una movimentazione fluida delle merci.
L'area pu anche essere utilizzata come parcheggio o per operazioni logistiche esterne.
Caratteristiche principali: Superficie totale: 700 mq Facile accessibilit direttamente da strada asfaltata Recenti lavori di rifacimento dellarea esterna per un accesso ottimale a veicoli pesanti Piano terra gi concesso in locazione, ideale per investimento Adatto a molteplici usi: laboratorio, magazzino, deposito, attivit produttive Ottima visibilit e posizione strategica Spazi esterni ideali per parcheggio, manovra e stoccaggio Questo capannone rappresenta un'opportunit interessante per chi cerca uno spazio ampio e ben organizzato, con la possibilit di generare reddito dal piano terra gi in locazione.
La zona esterna, recentemente rinnovata, consente operazioni logistiche di grande portata.
Un'ottima scelta per attivit industriali e commerciali.
Non perdere l'occasione di visionarlo! Contatta l'inserzionista

MAGIA immobiliareMAGIA immobiliare
Via Salaria, 90
63082, Castel di Lama (Ascoli Piceno)
Visualizza Telefono

INFORMAZIONI SULL'IMMOBILE

  • Riferimento: 3466
  • Tipologia: Capannone in Affitto
  • Stato: Ottimo
  • Prezzo: 1.200 €
  • Prezzo al mq: 2 €
  • Modificato il: 27/06/2025
  • Scheda: SC9554167

Stabile

G

Mappa e indirizzo

63031 Castel di Lama (Ascoli Piceno)
mappa mostra l'annuncio su mappa

Galleria Fotografica

Contatta l'inserzionista

MAGIA immobiliare

MAGIA immobiliare di Castel di Lama propone in affitto questo immobile, contattali subito!

Annunci immobiliari a Castel di Lama (AP)

Copyright Š 2026 PCase.it. All rights reserved. Sede operativa MILANO. P.IVA 08508420968 - Condizioni d'uso e privacy