Preferiti

Sponsorizza

Stampa

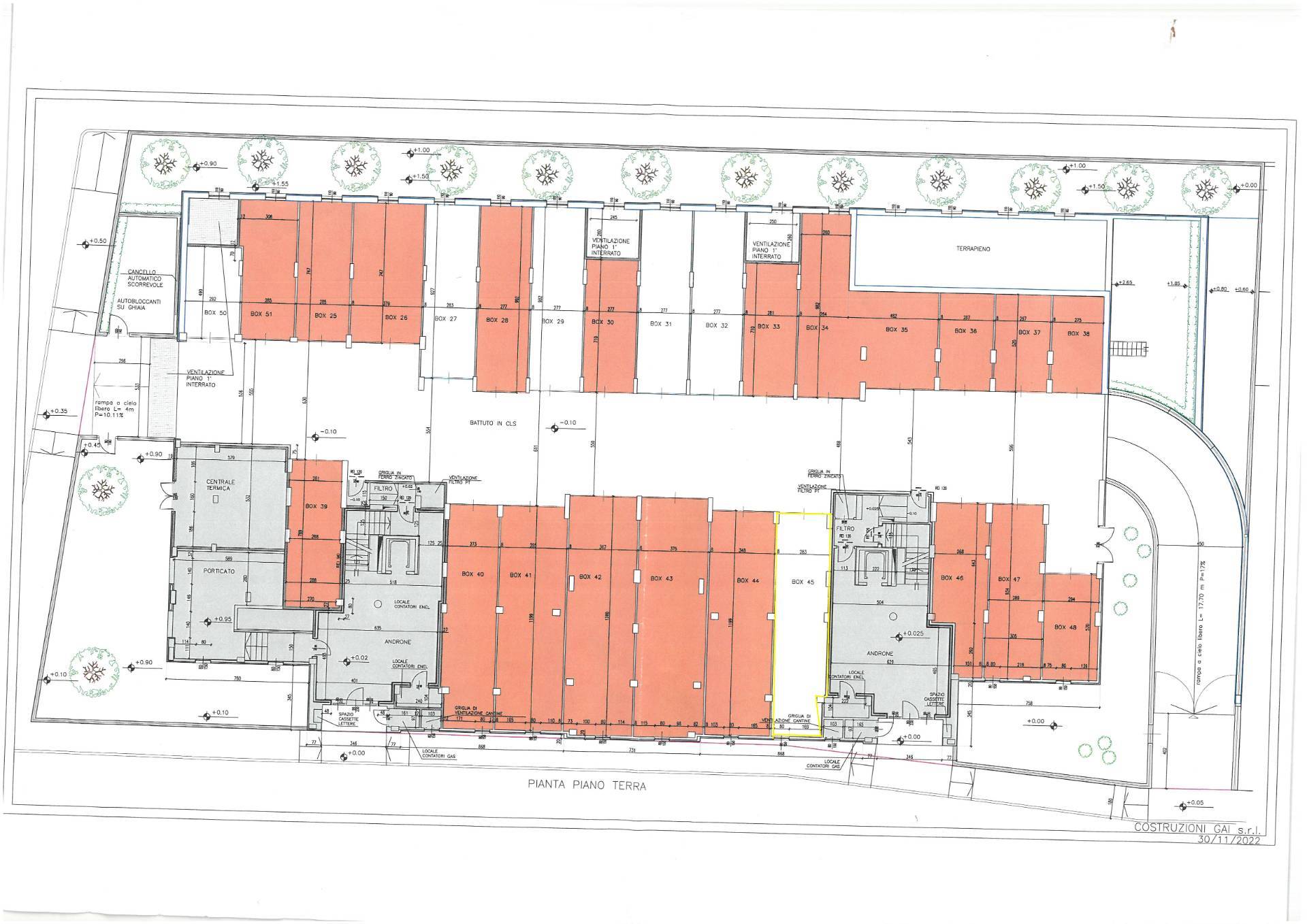
Box in vendita a Collegno in via bargiacchi 4

  • 26.000€
  • 1 locale
  • 34 mq
  • Vendesi

Proponiamo in vendita un box situato al piano terra di un edificio residenziale in zona Collegno.
Con una superficie totale di 33,94 metri quadrati, Lunghezza mt. 11,99 e larghezza 2,83; il box (identificato con il numero 45), si presenta come un'ottima opportunit per coloro che necessitano di un comodo spazio per parcheggiare la propria auto. L'accesso al box facilitato da un cancello automatico che garantisce la massima sicurezza e privacy.
Questo spazio composto da un unico locale, dotato di una presa elettrica.
Possibilit di detrarre il 50% del costo di costruzione del box. La posizione del box in una zona residenziale di Collegno lo rende facilmente raggiungibile e comodo da utilizzare.
LIBERO SUBITO! Grazie alla sua posizione strategica e alle sue dimensioni generose, rappresenta un investimento sicuro e conveniente. Contatta l'inserzionista

Compagnia Immobiliare GrugliascoCompagnia Immobiliare Grugliasco
Viale Gramsci, 58
10095, Grugliasco (Torino)
Visualizza Telefono

INFORMAZIONI SULL'IMMOBILE

  • Riferimento: 913350
  • Tipologia: Box in Vendita
  • Locali: 1 Locali ( 1 camera)
  • Piano: Terra
  • Stato: Ottimo
  • Prezzo: 26.000 €
  • Prezzo al mq: 765 €
  • Modificato il: 20/12/2023
  • Scheda: SC9556875

Stabile

  • Anno: 2013
  • Piano: Terra su 7 totali
  • Classe Energetica: n.d.

Mappa e indirizzo

Box sito in via bargiacchi, 4
10093 Collegno (Torino)
mappa mostra l'annuncio su mappa

Galleria Fotografica

Contatta l'inserzionista

Compagnia Immobiliare Grugliasco

Compagnia Immobiliare Grugliasco di Grugliasco propone in vendita questo immobile, contattali subito!

Annunci simili

Annunci immobiliari a Collegno (TO)

Copyright Š 2026 PCase.it. All rights reserved. Sede operativa MILANO. P.IVA 08508420968 - Condizioni d'uso e privacy