Preferiti

Sponsorizza

Stampa

Appartamento bilocale in vendita con giardino a Trezzo sull'Adda in via mazzini 70

  • 146.000€
  • 2 locali
  • 78 mq
  • Vendesi

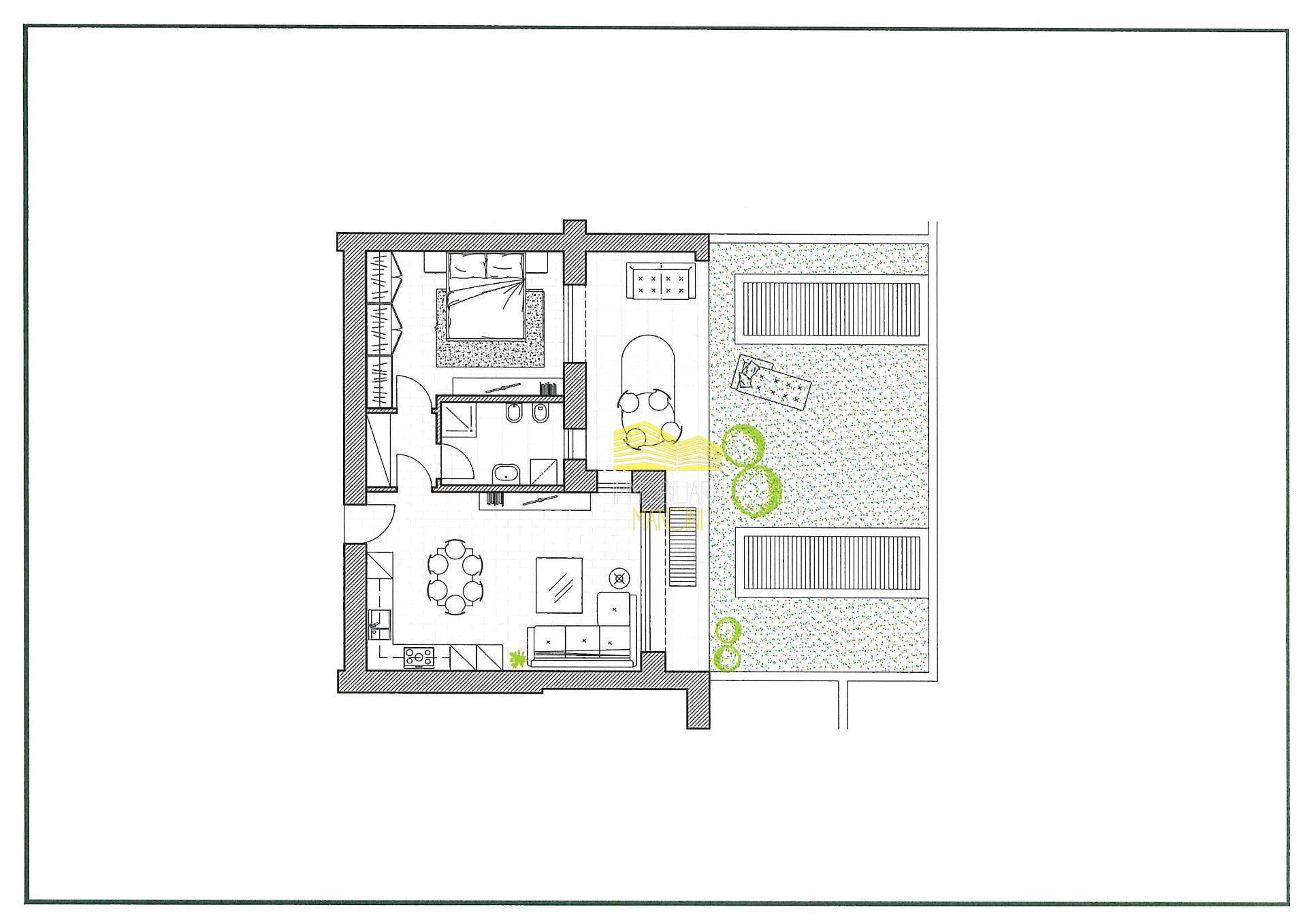
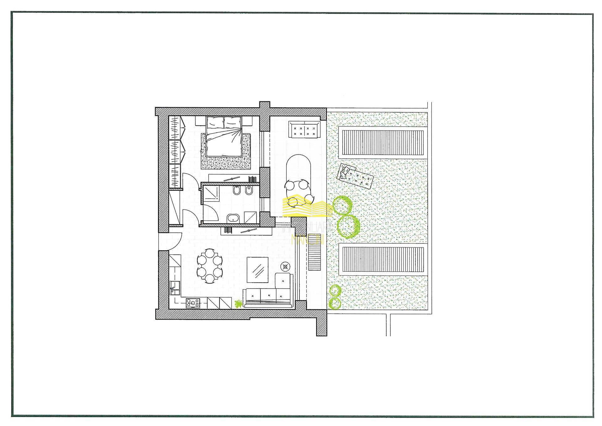
A TREZZO SULL'ADDA , in zona di prestigio circondata dal verde, Immobiliare Mancini propone NUOVE COSTRUZIONI - BILOCALE CON GIARDINO + CANTINA.
- IMMAGINI CAMPIONE INDICATIVE - L'immobile, DI NUOVA COSTRUZIONE, situato al PIANO TERRA, di NUOVA COSTRUZIONE 2022, in contesto condominiale residenziale di 3 piani fuori terra in CLASSE ENERGETICA "A4". In FASE DI COSTRUZIONE e IN PRONTA CONSEGNA A FINE 2024! L' immobile composto da ingresso in ampio e luminoso soggiorno e cucina A VISTA con sbarco su GIARDINO ESCLUSIVO di 51 mq e PORTICO di 20 mq, disimpegno, bagno e camera matrimoniale con secondo affaccio su giardino.
A completare la propriet, CANTINA.
POSSIBILITA' BOX DOPPIO A PARTE DAL PREZZO DI VENDITA.
Pavimentazione in gress porcellanato 1° scelta di formato variabile con rifiniture su scelta del cliente finale.
Gli infissi saranno realizzati in doppio vetro pvc, porta di ingresso con serratura elettrica e manuale.
Possibilit predisposizione allarme.
ASCENSORI AUTOMATICI a 5 fermate con livellamento automatico al piano ed impianto centralizzato di ventilazione meccanica.
Antenna tv centralizzata con parabola e predispozione impianto satellitare.
Predisposizione impianto telefonico, ingresso carraio con cancello elettrico automatrizzato Impianto generazione riscaldamento, acqua calda sanitaria e raffrescamento di tipo autonomo con unica pompa di calore.
Riscaldamento con pannelli radianti a pavimento, predisposizione per impianto di raffrescamento con unit split ad aria. Per ogni appartamento previsto IMPIANTO FOTOVOLTAICO dedicato in copertura.
L'unit immobiliare sorger vicino le scuole, fermata del bus e AUTOSTRADA A4. E' un ottima soluzione, perfetta sia per una coppia che desidera ampi spazi sia per una famiglia che cerca una soluzione adatta alle proprie esigenze! SE SIETE INTERESSATI NON ESITATE A CONTATTARE IMMOBILIARE MANCINI AI NUMERI 0262068566 O 3311211947, OPPURE LASCIATE UN MESSAGGIO ALLA MAIL *******@******* E VERRETE RICONTATTATI.
CI TROVATE IN VIA MAZZINI N. 70, TREZZO SULL'ADDA , CENTRO POLIFUNZIONALE "LA PIAZZA". Contatta l'inserzionista

IMMOBILIARE MANCINIIMMOBILIARE MANCINI
VIA MAZZINI 70
20056, Trezzo sull'Adda (Milano)
Visualizza Telefono

INFORMAZIONI SULL'IMMOBILE

  • Riferimento: 53
  • Tipologia: Appartamento in Vendita
  • Locali: 2 Locali ( 1 camera e un bagno)
  • Piano: Terra
  • Prezzo: 146.000 €
  • Prezzo al mq: 1.872 €
  • Riscaldamento: Autonomo
  • Giardino: Privato - 51 Mq
  • Cantina: Si
  • Modificato il: 23/12/2023
  • Scheda: SC9563209

Stabile

  • Anno: 2023
  • Piano: Terra su 3 totali
A4

Mappa e indirizzo

Appartamento sito in via mazzini, 70
20056 Trezzo sull'Adda (Milano)
mappa mostra l'annuncio su mappa

Galleria Fotografica

Contatta l'inserzionista

IMMOBILIARE MANCINI

IMMOBILIARE MANCINI di Trezzo sull'Adda propone in vendita questo immobile, contattali subito!

Annunci simili

Annunci immobiliari a Trezzo sull'Adda (MI)

Copyright Š 2026 PCase.it. All rights reserved. Sede operativa MILANO. P.IVA 08508420968 - Condizioni d'uso e privacy