Preferiti

Sponsorizza

Stampa

Casa indipendente in vendita classe A4 a Vigonza in via san andrea

  • 490.000€
  • 6 locali
  • 213 mq
  • Vendesi

Bonanno Immobili propone in vendita bifamiliare di nuova costruzione a Perarolo di Vigonza.
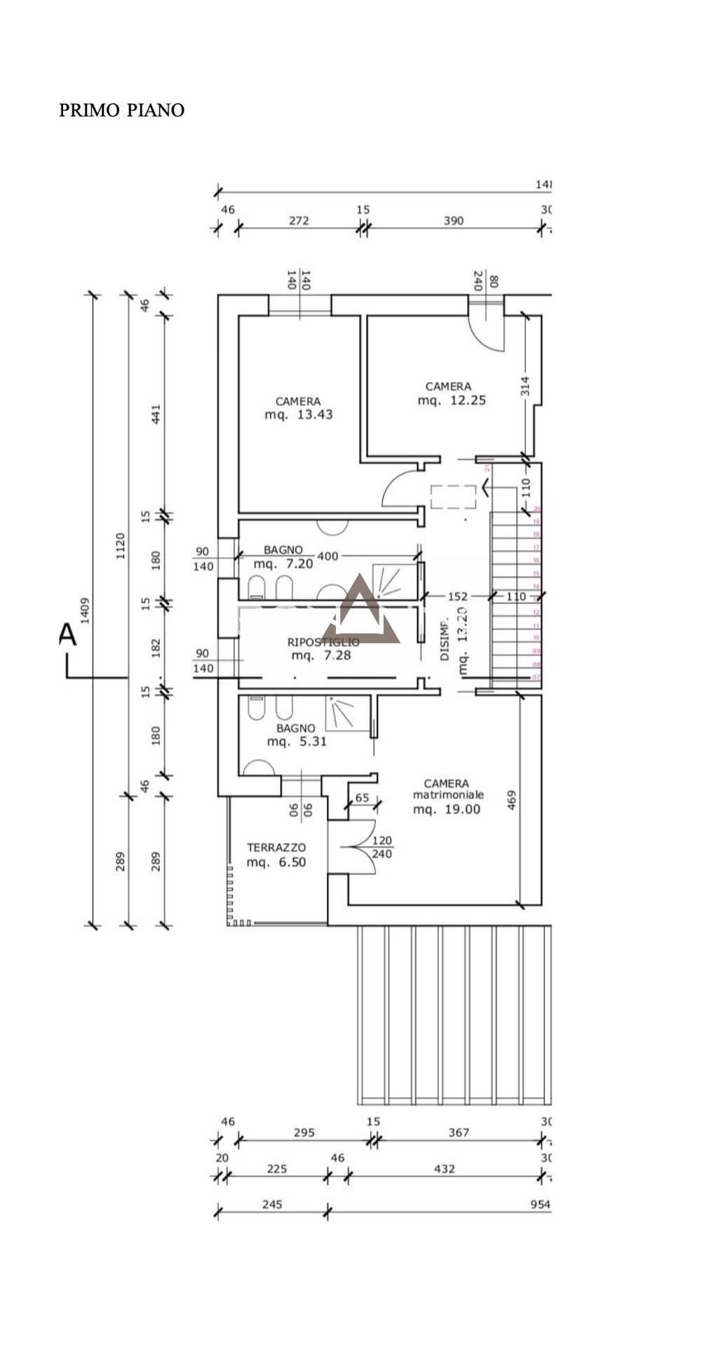
La porzione B di bifamiliare, della superficie complessiva di 213,53 mq commerciali, si sviluppa su due livelli principali oltre a un sottotetto praticabile.
Al piano terra (97,64 mq) si trovano lingresso, un ampio soggiorno con cucina a vista, un bagno, la zona lavanderia e il garage.
Il piano primo (96,37 mq) ospita una spaziosa camera matrimoniale con bagno privato, due ulteriori camere da letto, un secondo bagno e un ripostiglio funzionale, utilizzabile anche come cabina armadio.
Lunit completata da un giardino esclusivo di 272,36 mq, composto da circa 170 mq di prato verde e circa 100 mq destinati a carraio.
Dal piano primo, la camera matrimoniale d accesso a una terrazza di 2,18 mq, mentre al piano terra presente un portico esterno di 3,72 mq. Per maggiori info chiamare in agenzia 0423 1856238.
Rif: BL743 Contatta l'inserzionista

Bonanno Immobili s.r.l.Bonanno Immobili s.r.l.
Via della Cooperazione 10
31033, Castelfranco Veneto (Treviso)
Visualizza Telefono

INFORMAZIONI SULL'IMMOBILE

  • Riferimento: BL743
  • Tipologia: Casa indipendente in Vendita
  • Locali: 6 Locali
  • Bagni: 3
  • Prezzo: 490.000 €
  • Prezzo al mq: 2.300 €
  • Riscaldamento: Autonomo
  • Modificato il: 09/04/2026
  • Scheda: SC9634724

Stabile

A4

Mappa e indirizzo

Casa indipendente sito in via san andrea
35010 Vigonza (Padova)
mappa mostra l'annuncio su mappa

Galleria Fotografica

Contatta l'inserzionista

Bonanno Immobili s.r.l.

Bonanno Immobili s.r.l. di Castelfranco Veneto propone in vendita questo immobile, contattali subito!

Annunci immobiliari a Vigonza (PD)

Copyright Š 2026 PCase.it. All rights reserved. Sede operativa MILANO. P.IVA 08508420968 - Condizioni d'uso e privacy