Preferiti

Sponsorizza

Stampa

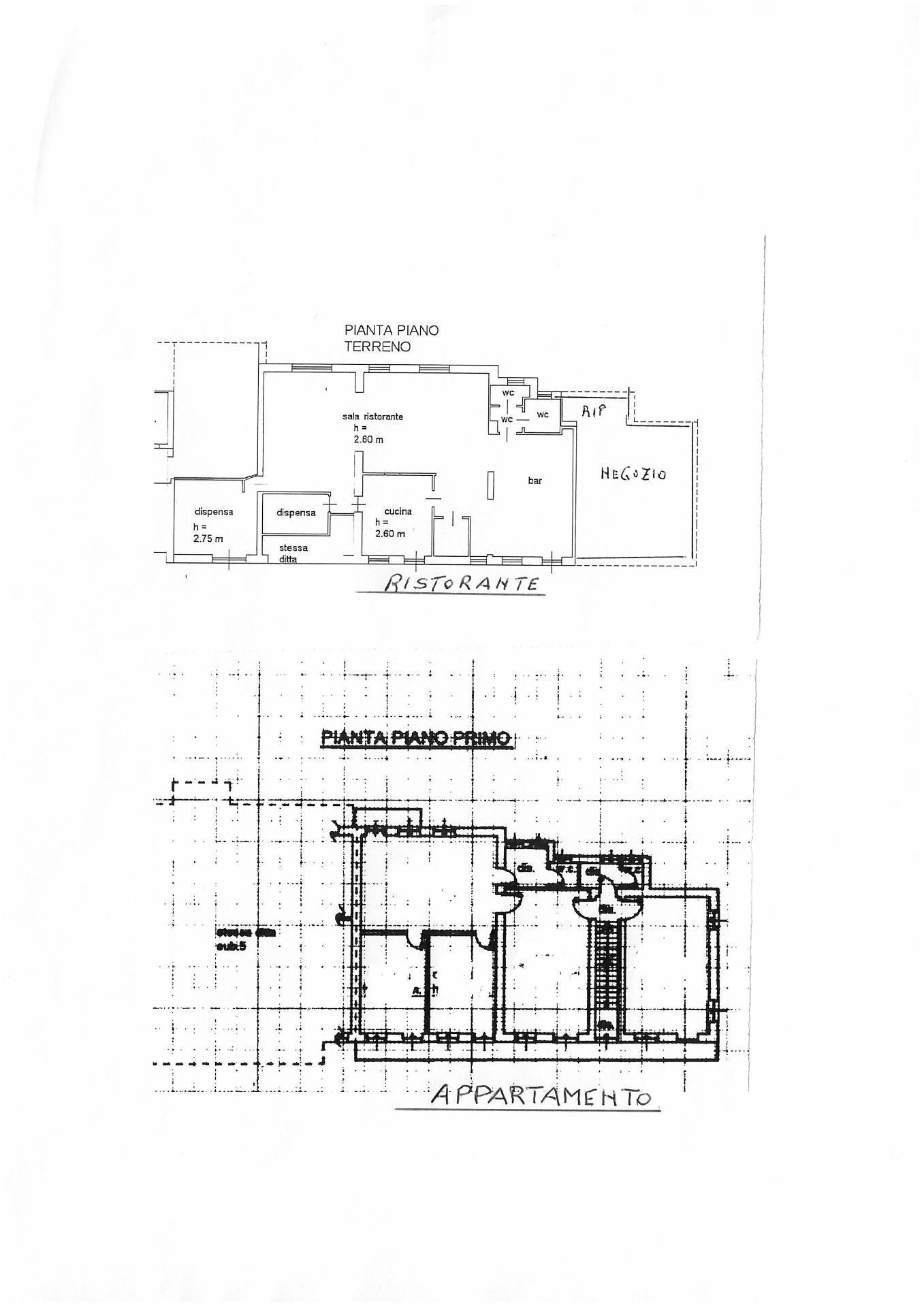
Attività commerciale in vendita da ristrutturare a Montaldo Roero in via san rocco di montaldo roero 1

  • 148.000€
  • 360 mq
  • Vendesi

M0NTALDO ROERO nella FRAZIONE SAN ROCCO pittoresco e ridente comune in posizione strategica e facilmente accessibile, circondato dalla bellezza delle colline e famoso per i suoi pregiati vini, proponiamo fabbricato libero su tre lati con comoda zona parcheggio adatto ad attivit di ristorazione di mq 170 con annesso piccolo negozio con una vetrina su strada di mq. 40 ed un appartamento di mq 150 ad uso abitativo posto al piano superiore composto di cinque vani e servizi.
Il locale si presenta come un'ottima opportunit per chi desidera avviare un'attivit in una zona di grande interesse turistico/ricettivo, dove la gastronomia ha un ruolo importante nella cultura locale.
Possibilit di acquisto di licenza di Ristorazione ad ? 35.000,00 Contatta l'inserzionista

Di Stefano Studio ImmobiliareDi Stefano Studio Immobiliare
Via G. Filangieri, 16
10128, Torino (Torino)
Visualizza Telefono

INFORMAZIONI SULL'IMMOBILE

  • Riferimento: 889
  • Tipologia: Attività commerciale in Vendita
  • Stato: da Ristrutturare
  • Prezzo: 148.000 €
  • Prezzo al mq: 411 €
  • Riscaldamento: Autonomo
  • Modificato il: 21/03/2026
  • Scheda: SC9495468

Stabile

  • Piani Totali: 1
I.P.E.
191,73Kwh/m2
E

Mappa e indirizzo

Attività commerciale sito in via san rocco di montaldo roero, 1
12040 Montaldo Roero (Cuneo)
mappa mostra l'annuncio su mappa

Galleria Fotografica

Contatta l'inserzionista

Di Stefano Studio Immobiliare

Di Stefano Studio Immobiliare di Torino propone in vendita questo immobile, contattali subito!

Annunci immobiliari a Montaldo Roero (CN)

Copyright © 2026 PCase.it. All rights reserved. Sede operativa MILANO. P.IVA 08508420968 - Condizioni d'uso e privacy