Preferiti

Sponsorizza

Stampa

Attico in vendita con box a Bergamo in via buratti

  • 175.000€
  • 2 locali
  • 52 mq
  • Vendesi

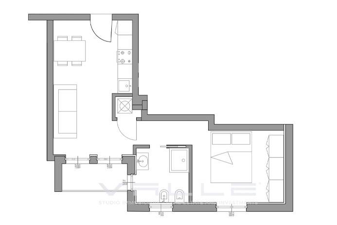
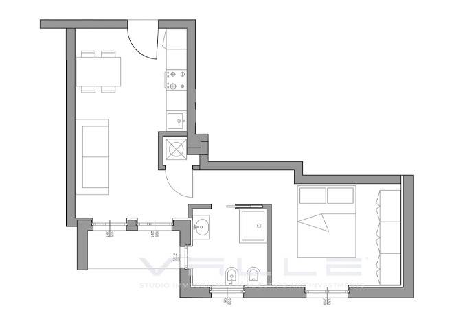
- BERGAMO _ REDONA Elegante e moderno appartamento bilocale attico di mq 50 dotato di balcone in fase attuale di totale ristrutturazione energetica per la classe A1, autorimessa e cantina disponibili.
L'immobile situato al piano quinto di edificio signorile dotato di ascensore collocato in posizione particolarmente confortevole, a pochi passi da tutti i servizi ed i negozi raggiungibili a piedi, a pochi passi dal parco di Redona nonch nelle immediate vicinanze della fermata del treno leggero Teb che in pochi minuti conduce in centro citt ed alla stazione ferroviaria, nonch nelle immediate vicinanze dell'imbocco della superstrada e dell'autostrada.
Gli immobili si trovano inoltre a pochi passi dal nuovo centro polifunzionale Chorus Life dove si trovano negozi, ristoranti, centro benessere, la nuova arena dello sport e degli spettacoli di Bergamo, percorsi pedonali e jogging.
Internamente l'appartamento sar composto da ingresso, soggiorno con angolo cottura con accesso al balcone, zona lavanderia, disimpegno, ampia camera matrimoniale, ampio bagno finestrato.
L'appartamento in corso la totale ristrutturazione con adeguamento energetico in consegna per luglio 2026, le rifiniture e gli impianti saranno di prima qualit e attualmente personalizzabili, infissi termici performanti, tapparelle motorizzate, predisposizione per aria condizionata, pavimentazioni in moderno gres o parquet, predisposizione impianto domotico, predisposizione allarme, tinteggiatura e porta blindata, nuovi impianti idrici ed elettrici con conformit, inoltre l'immobile verr completamente coibentato tramite cappotto interno, dotato di scambiatori d'aria e possibile installazione di pompa di calore per climatizzazione per la classe energetica A. L'immobile dotato di riscaldamento centralizzato contabilizzato, ampie finestrature con grande luminosit degli ambienti, posizione interna e non disturbata.
Vi ampia possibilit di personalizzazione degli spazi e delle rifiniture nelle prime fasi dell'intervento di ristrutturazione.
? 175.000,00 Disponibile autorimessa all'interno dello stabile per ? 25.000,00. Disponibile soffitta per ? 5.000,00. E' disponibile la cessione del credito fiscale derivante dalla ristrutturazione.
CLASSE ENERGETICA: A1 Vai all'annuncio: ***.*******.** STUDIO IMMOBILIARE VALLE Flaminia S.r.l. Real estate and investments 24121 Bergamo - Italy ***.*******.** Vitt. Emanuele II n. 65 tel +39 035 231588 WhatsApp: +39 3920190070 ***.*******.** *******@******* Facebook: StudioImmobiliareValle Instagram: ***.*******.** Tiktok: @studiovalle X: ValleRealEstate Skype: Valle-Real-Estate Contatta l'inserzionista

Studio Immobiliare ValleStudio Immobiliare Valle
Viale Vittorio Emanuele II, 65
24121, Bergamo (Bergamo)
Visualizza Telefono

INFORMAZIONI SULL'IMMOBILE

  • Riferimento: bgbur50
  • Tipologia: Attico in Vendita
  • Locali: 2 Locali ( 1 camera e un bagno)
  • Piano: Ultimo Piano
  • Prezzo: 175.000 €
  • Prezzo al mq: 3.365 €
  • Spazio Auto: Box singolo
  • Modificato il: 27/03/2026
  • Scheda: SC9627647

Stabile

  • Piano: 5 su 5 totali
A1

Mappa e indirizzo

Attico sito in via buratti
24123 Bergamo (Bergamo)
Corridoni, Redona
mappa mostra l'annuncio su mappa

Galleria Fotografica

Contatta l'inserzionista

Studio Immobiliare Valle

Studio Immobiliare Valle di Bergamo propone in vendita questo immobile, contattali subito!

Annunci immobiliari a Bergamo (BG)

Copyright © 2026 PCase.it. All rights reserved. Sede operativa MILANO. P.IVA 08508420968 - Condizioni d'uso e privacy