Preferiti

Sponsorizza

Stampa

Appartamento in vendita a Venezia

  • 275.000€
  • 3 locali
  • 50 mq
  • Vendesi

VENEZIA , SAN POLO campo dei FRARI in posizione centralissima a pochi passi dalla fermata dei battelli di San Tom ,vicinissimo alla stazione ,a Piazzale Roma e Rialto.
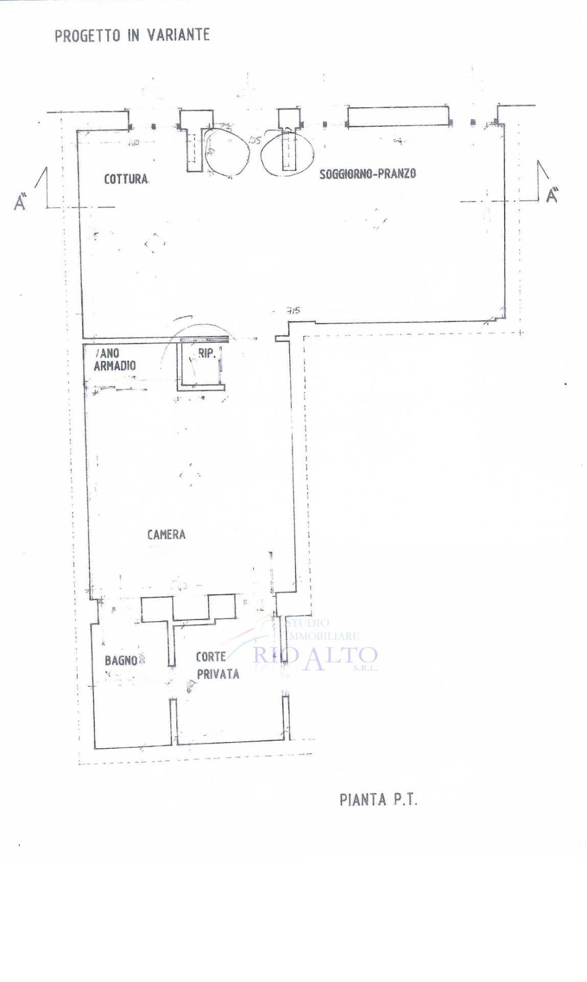
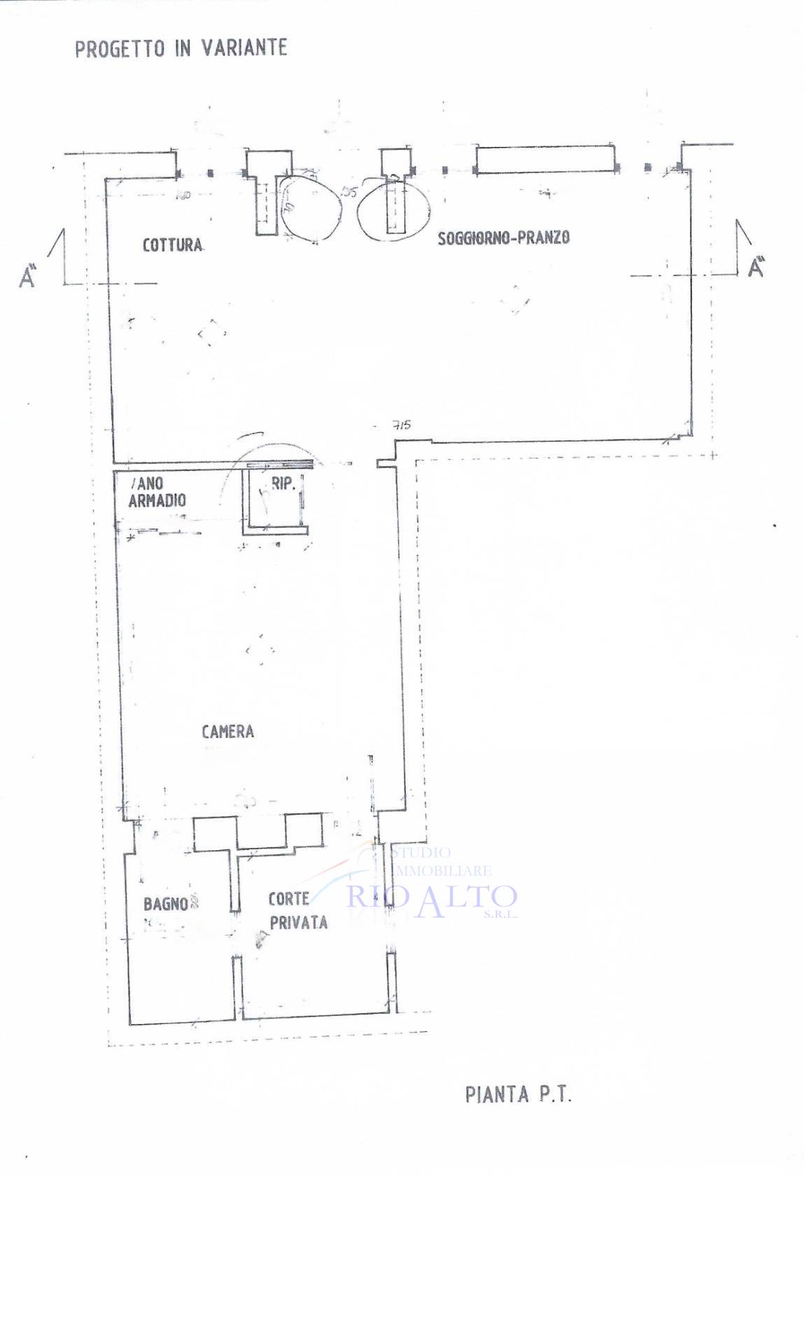
In un contesto condominiale recentemente ristrutturato siamo a proporvi appartamento al piano rialzato esente acqua alta, ingresso indipendente, luminoso e in discrete condizioni.
La composizione la seguente: ingresso , soggiorno, zona cottura , camera matrimoniale e bagno.
Inoltre vi una piccola corte di propriet esclusiva.
Questo appartamento ha vista tipica su una corte veneziana, stato oggetto di un restauro completo negli anni passati , restauro realizzato con finiture di pregio quali travature a vista.
Questo immobile ha la possibilit di realizzare un'idonea fossa settica per un eventuale uso ricettivo turistico.
Riferimento SP151 Richiesta ? 275.000 Contatta l'inserzionista

Studio Immobiliare Rio AltoStudio Immobiliare Rio Alto
San Polo 56
30125, Venezia (Venezia)
Visualizza Telefono

INFORMAZIONI SULL'IMMOBILE

  • Riferimento: SP151
  • Tipologia: Appartamento in Vendita
  • Locali: 3 Locali (2 camere e un bagno)
  • Piano: Rialzato
  • Prezzo: 275.000 €
  • Prezzo al mq: 5.500 €
  • Riscaldamento: Autonomo
  • Modificato il: 17/03/2026
  • Scheda: SC9485035

Stabile

  • Piano: Rialzato
I.P.E.
200Kwh/m2
G

Mappa e indirizzo

30126 Venezia (Venezia)
Rialto, San Polo
mappa mostra l'annuncio su mappa

Galleria Fotografica

Contatta l'inserzionista

Studio Immobiliare Rio Alto

Studio Immobiliare Rio Alto di Venezia propone in vendita questo immobile, contattali subito!

Annunci simili

Annunci immobiliari a Venezia (VE)

Copyright Š 2026 PCase.it. All rights reserved. Sede operativa MILANO. P.IVA 08508420968 - Condizioni d'uso e privacy