Preferiti

Sponsorizza

Stampa

Appartamento in vendita con giardino a Treviso in piazza santa maria maggiore

  • trattativa riservata
  • 7 locali
  • 318 mq
  • Vendesi

Treviso, centro storico.
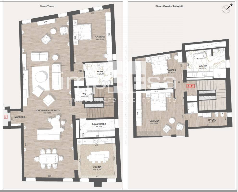
Prestigioso appartamento su due livelli in palazzo storico con garage (prezzo a parte). Il cuore della vecchia e storica Treviso ricomincia a battere finalmente nell'area pi nobile, prestigiosa e riservata della nostra bella citt. Allinterno di un intervento che riqualifica e riporta a nuovo splendore un palazzo dell'epoca rinascimentale, disponibile un lussuoso appartamento di ca 320 mq. Il progetto residenziale frutto del lavoro di un noto studio di architettura, che ha immaginato appartamenti unici nel loro genere in chiave neo lusso, ad alta tecnologia ed in classe energetica A4. Un garage di 37 mq disponibile al prezzo di euro 210.000 Dettagli e informazioni presso il nostro studio ImpREsa Private & Luxury di Galleria della Dogana 1 Treviso, tel +39 0422 580059 riferimento I/FSB281-7 Contatta l'inserzionista

impREsa private & luxuryimpREsa private & luxury
Galleria della Dogana
1 , Treviso (Treviso)
Visualizza Telefono

INFORMAZIONI SULL'IMMOBILE

  • Riferimento: I/FSB281-7
  • Tipologia: Appartamento in Vendita
  • Locali: 7 Locali
  • Bagni: 3
  • Giardino: Privato
  • Modificato il: 29/04/2026
  • Scheda: SC9559481

Stabile

  • Anno: 2023
  • Piani Totali: 4
  • Classe Energetica: n.d.

Mappa e indirizzo

Appartamento sito in piazza santa maria maggiore
31100 Treviso (Treviso)
Centro
mappa mostra l'annuncio su mappa

Galleria Fotografica

Contatta l'inserzionista

impREsa private & luxury

impREsa private & luxury di Treviso propone in vendita questo immobile, contattali subito!

Annunci simili

Annunci immobiliari a Treviso (TV)

Copyright Š 2026 PCase.it. All rights reserved. Sede operativa MILANO. P.IVA 08508420968 - Condizioni d'uso e privacy