Preferiti

Sponsorizza

Stampa

Appartamento in vendita classe A4 a Trevignano

  • 250.000€
  • 4 locali
  • 123 mq
  • Vendesi

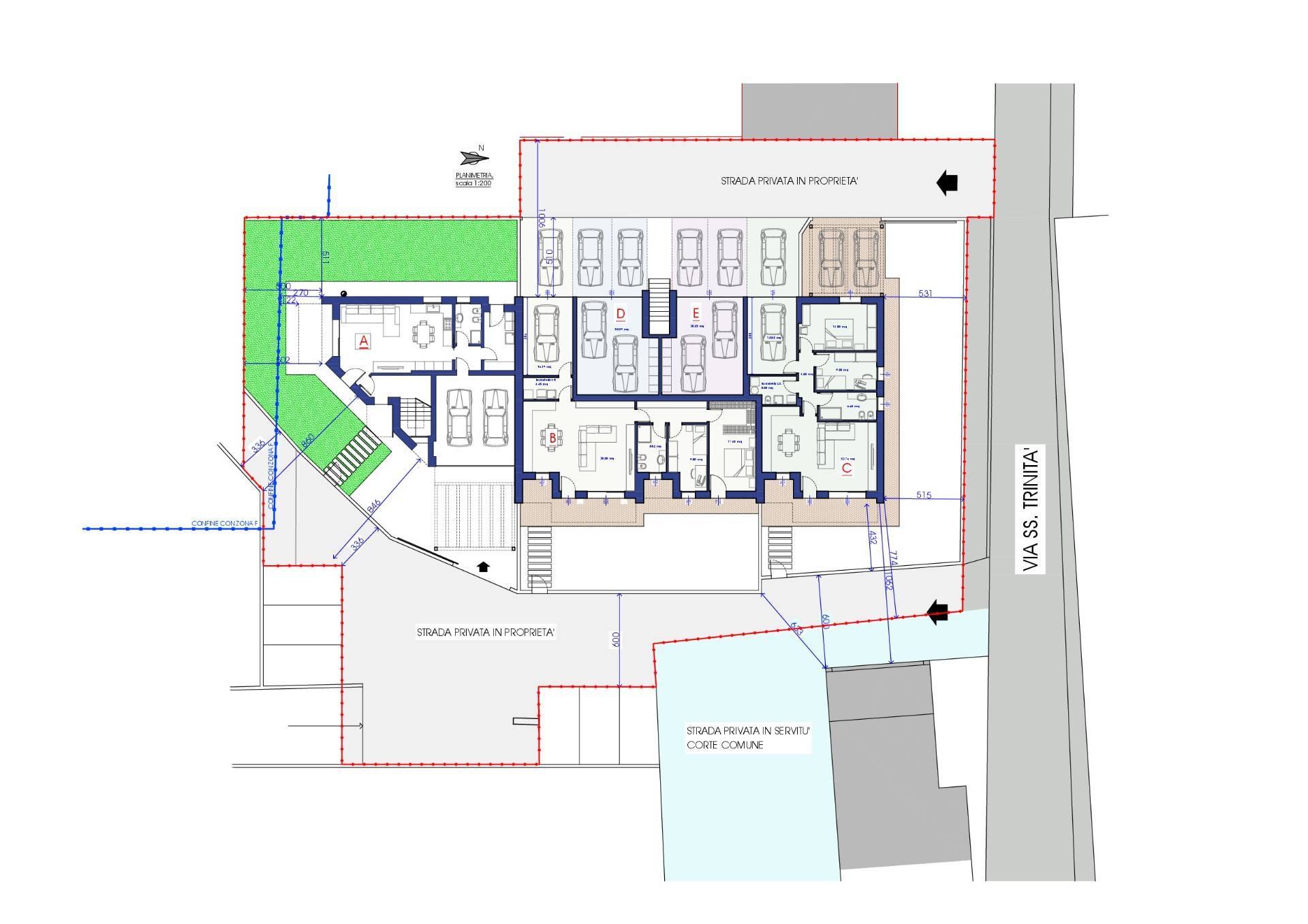
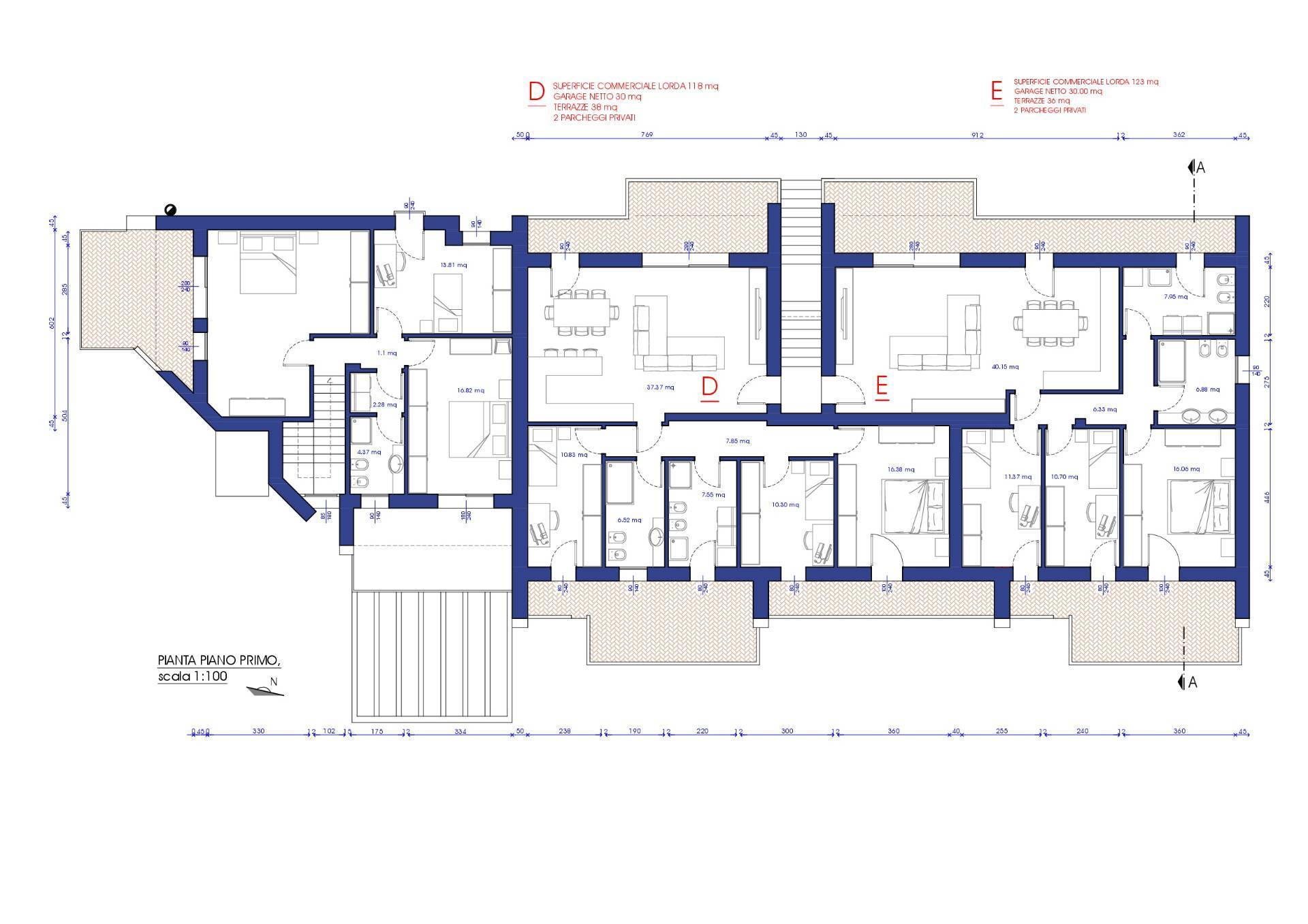
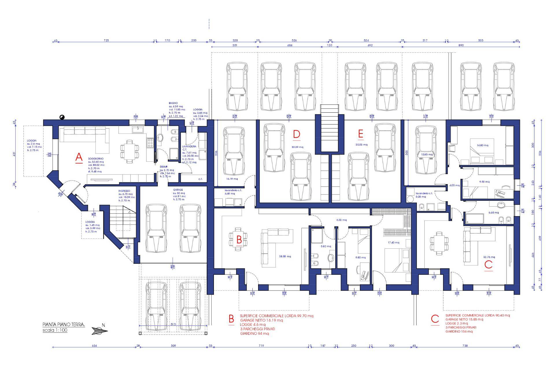
Nuovissimi appartamenti in costruzione in consegna a settembre del 2025 dotati dei migliori confort (cappotto, caldaia a pompa di calore, fotovoltaico, riscaldamento a pavimento, serramenti di ultima generazione, predisposizione allarme e climatizzatore). I primi piani hanno luminose e ampie zone giorno(circa 40 mq), 3 camere, 2 bagni e terrazzi in parte coperti di 25 mq. POSSIBILIT DI SCELTA DELLE FINITURE ! UNIT D ? 260.000,00. UNIT E ? 265.000,00 Contatta l'inserzionista

Casanet s.a.s.Casanet s.a.s.
piazza Oberkochen, 21
31044, Pozzallo (Ragusa)
Visualizza Telefono

INFORMAZIONI SULL'IMMOBILE

  • Riferimento: 3672
  • Tipologia: Appartamento in Vendita
  • Locali: 4 Locali (3 camere con doppi servizi)
  • Piano: Ultimo Piano
  • Prezzo: 250.000 €
  • Prezzo al mq: 2.033 €
  • Riscaldamento: Autonomo
  • Modificato il: 09/01/2025
  • Scheda: SC9571038

Stabile

  • Anno: 2024
  • Piano: 1 su 1 totali
A4

Mappa e indirizzo

31040 Trevignano (Treviso)
mappa mostra l'annuncio su mappa

Galleria Fotografica

Contatta l'inserzionista

Casanet s.a.s.

Casanet s.a.s. di Pozzallo propone in vendita questo immobile, contattali subito!

Annunci simili

Annunci immobiliari a Trevignano (TV)

Copyright Š 2026 PCase.it. All rights reserved. Sede operativa MILANO. P.IVA 08508420968 - Condizioni d'uso e privacy