Preferiti

Sponsorizza

Stampa

Appartamento in vendita con box a Torino in via timoteo riboli

  • 100.000€
  • 5 locali
  • 105 mq
  • Vendesi

L'appartamento in vendita si trova nella zona di Mirafiori sud, in Via Timoteo Riboli.
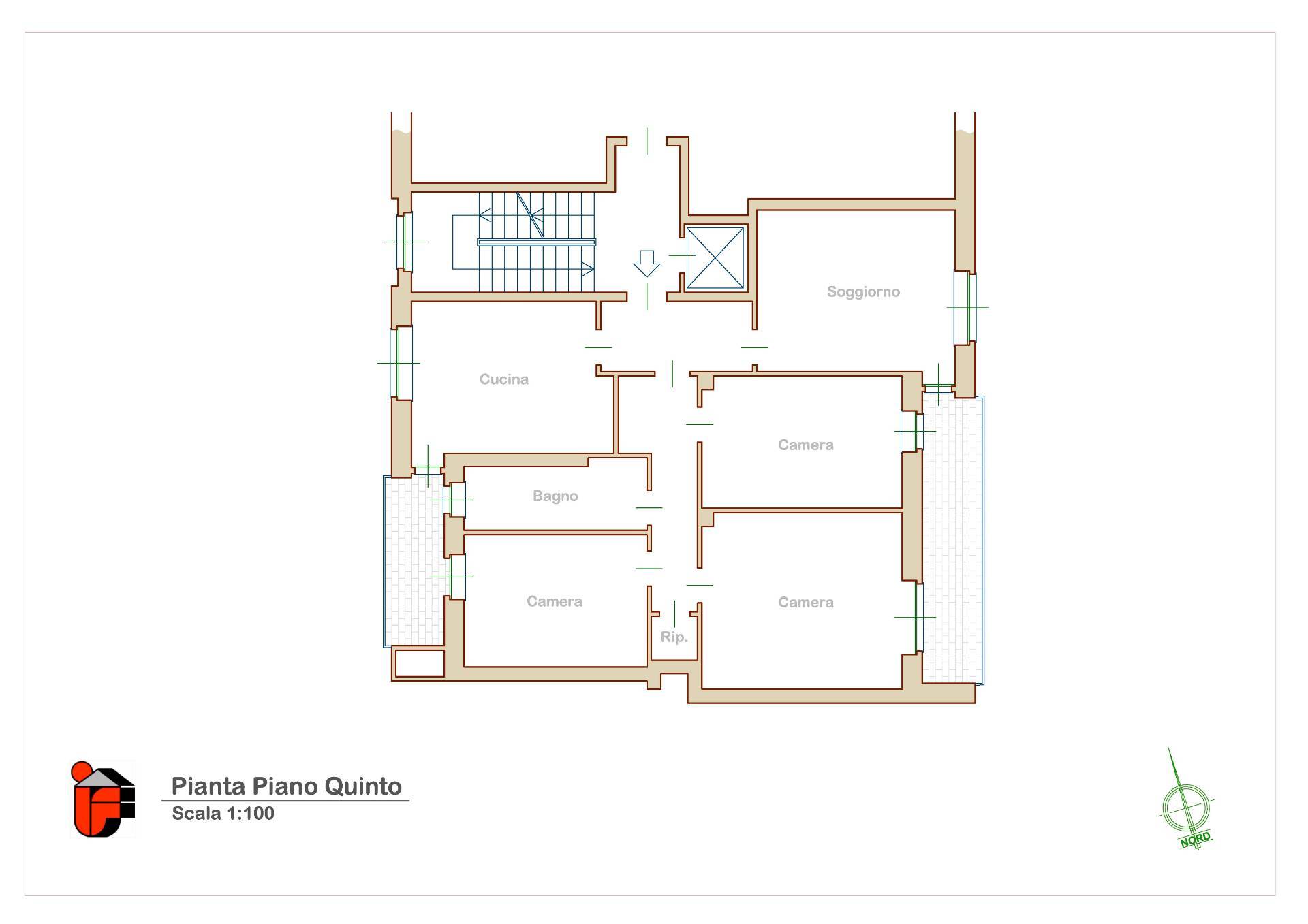
Situato al quinto piano di un edificio dotato di ascensore.
L'immobile libero al rogito, il che significa che immediatamente disponibile per l'acquisto.
L'immobile composto da cinque locali, tra cui tre camere da letto.
Inoltre, la sua posizione strategica permette di raggiungere facilmente le principali vie di comunicazione della citt e i servizi di prima necessit.
Ideale per chi cerca un'abitazione spaziosa e comoda.
Completa la propriet la cantina e il box auto singolo di pertinenza.
Richiesta euro 100.000,00. Contatta l'inserzionista

Immobiliare FerreroImmobiliare Ferrero
Piazza Marconi, 31
10048, Vinovo (Torino)
Visualizza Telefono

INFORMAZIONI SULL'IMMOBILE

  • Riferimento: 86500
  • Tipologia: Appartamento in Vendita
  • Locali: 5 Locali
  • Piano: Quinto
  • Stato: da Ristrutturare
  • Bagni: 1
  • Prezzo: 100.000 €
  • Prezzo al mq: 952 €
  • Spazio Auto: Box singolo
  • Cantina: Si
  • Modificato il: 21/04/2026
  • Scheda: SC9616912

Stabile

  • Anno: 1994
  • Piano: 5 su 6 totali
F

Mappa e indirizzo

Appartamento sito in via timoteo riboli
10138 Torino (Torino)
Mirafiori
mappa mostra l'annuncio su mappa

Galleria Fotografica

Contatta l'inserzionista

Immobiliare Ferrero

Immobiliare Ferrero di Vinovo propone in vendita questo immobile, contattali subito!

Annunci simili

Annunci immobiliari a Torino (TO)

Copyright Š 2026 PCase.it. All rights reserved. Sede operativa MILANO. P.IVA 08508420968 - Condizioni d'uso e privacy