Preferiti

Sponsorizza

Stampa

Appartamento in vendita con giardino a San Colombano Certenoli

  • 80.000€
  • 6 locali
  • 194 mq
  • Vendesi

**Appartamento su Due Piani in Vendita - Un'Occasione Imperdibile da personalizzare! ** Scopri questo appartamento su due livelli, con una superficie di circa 190 metri quadrati, situato in una posizione con ottima esposizione al sole! . L'immobile offre un ampio magazzino riqualificato, perfetto come taverna per trascorrere momenti indimenticabili con amici e familiari.
La cucina in muratura aggiunge un tocco di charme e autenticit, rendendo questo spazio ideale per chi ama cucinare.
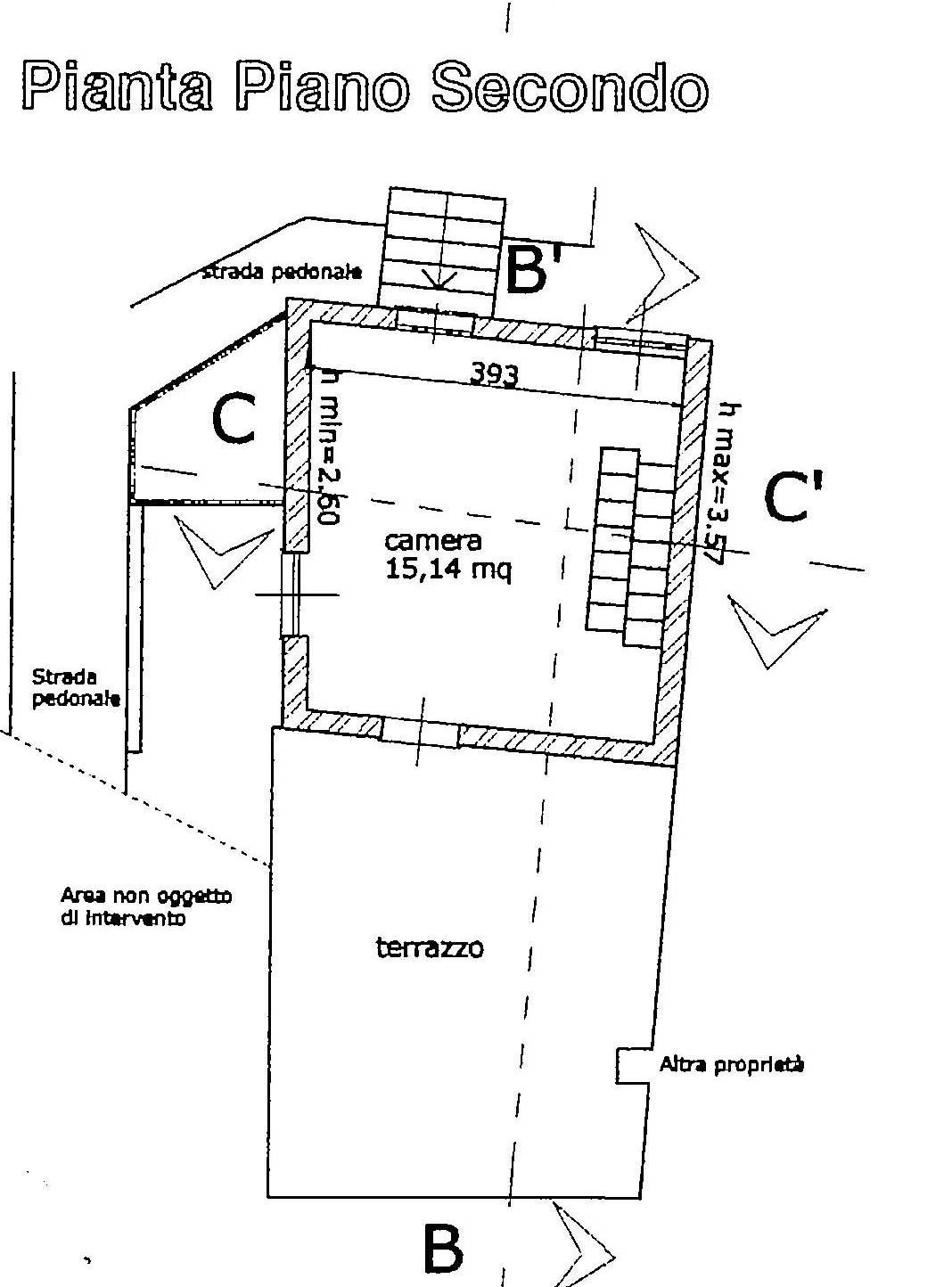
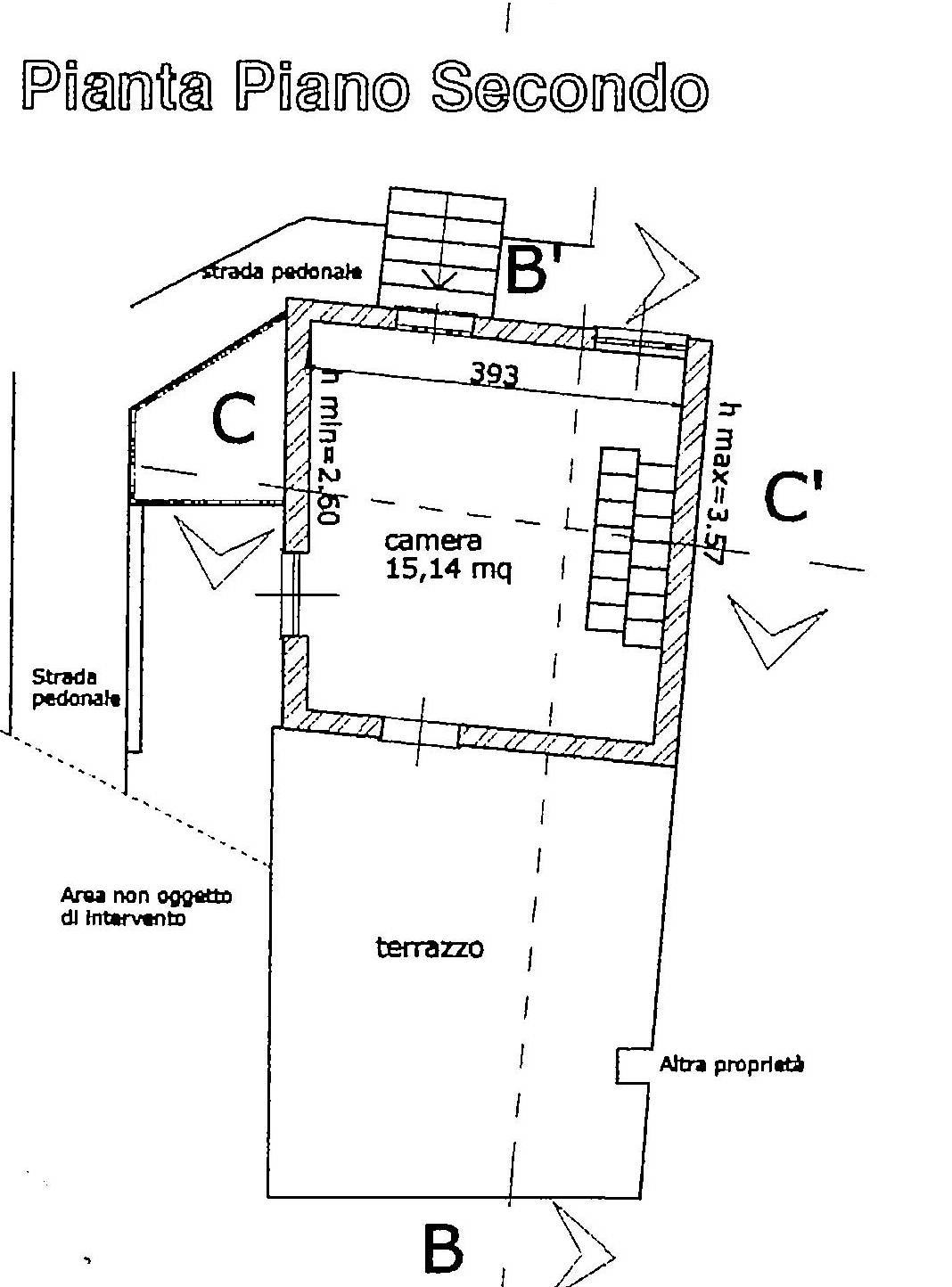
Con pi ingressi, l'appartamento si compone di un luminoso soggiorno, tre camere da letto spaziose, un bagno con possibilit di un secondo servizio, uno studio e una dispensa.
Lo stato interno grezzo ma con alcuni lavori di riqualificazione gi effettuati, offrendo l'opportunit di personalizzare gli spazi secondo i propri gusti.
Non perdere la terrazza a tetto di circa 10 metri quadrati, perfetta per godere del sole e della vista panoramica.
Inoltre, il terreno a fasce coltivabile e pu essere utilizzato come giardino, offrendo un angolo verde da sfruttare.
Con la possibilit di realizzare due unit abitative, questo appartamento rappresenta un'ottima opportunit sia per famiglie che per investitori.
Contattaci per maggiori informazioni e per prenotare una visita! Contatta l'inserzionista

Punto ImmobiliarePunto Immobiliare
Passo alle Clarisse, 4
16043, Chiavari (Genova)
Visualizza Telefono

INFORMAZIONI SULL'IMMOBILE

  • Riferimento: 3005
  • Tipologia: Appartamento in Vendita
  • Locali: 6 Locali
  • Bagni: 1
  • Prezzo: 80.000 €
  • Prezzo al mq: 412 €
  • Giardino: Privato
  • Modificato il: 13/03/2026
  • Scheda: SC9482048

Stabile

  • Classe Energetica: n.d.

Mappa e indirizzo

16040 San Colombano Certenoli (Genova)
mappa mostra l'annuncio su mappa

Galleria Fotografica

Contatta l'inserzionista

Punto Immobiliare

Punto Immobiliare di Chiavari propone in vendita questo immobile, contattali subito!

Annunci immobiliari a San Colombano Certenoli (GE)

Copyright Š 2026 PCase.it. All rights reserved. Sede operativa MILANO. P.IVA 08508420968 - Condizioni d'uso e privacy