Preferiti

Sponsorizza

Stampa

Appartamento in vendita da ristrutturare a San Benedetto del Tronto

  • 260.000€
  • 5 locali
  • 145 mq
  • Vendesi

GRANDE METRATURA, ZERO COMPROMESSI: 145 MQ DA PERSONALIZZARE Cerchi spazio vero? Qui lo trovi.
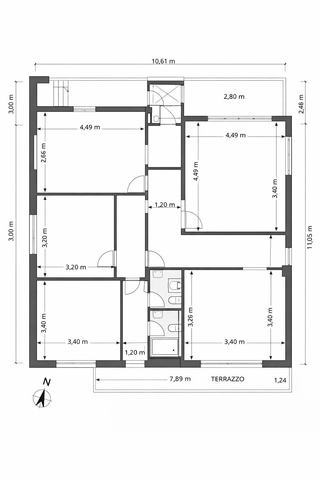
Al quarto piano con ascensore, appartamento di 145 mq con terrazzo esposto ovest, tre camere matrimoniali e distribuzione facilmente trasformabile . Cosa offre concretamente: Ingresso ampio e centrale, soggiorno con accesso diretto al terrazzo, sala da pranzo separata (unificabile), cucinotto con veranda, tre camere matrimoniali regolari Bagno ristrutturato con impianti nuovi.
Stato attuale discreto , finiture originali dellepoca costruttiva (ad eccezione del bagno gi rinnovato). Layout modificabile, Ottimo potenziale di incremento valore post-ristrutturazione Ideale per famiglie che cercano spazio o per chi vuole trasformare una grande metratura in una casa contemporanea ad alto valore.
Classe energetica in fase di valutazione. Contatta l'inserzionista

La Casa ImmobiliareLa Casa Immobiliare
Via G.Pizzi, 23
63074, San Benedetto del Tronto (Ascoli Piceno)
Visualizza Telefono

INFORMAZIONI SULL'IMMOBILE

  • Riferimento: app172
  • Tipologia: Appartamento in Vendita
  • Locali: 5 Locali
  • Stato: da Ristrutturare
  • Bagni: 1
  • Prezzo: 260.000 €
  • Prezzo al mq: 1.793 €
  • Riscaldamento: Autonomo
  • Modificato il: 19/02/2026
  • Scheda: SC9602595

Stabile

  • Anno: 1967
  • Classe Energetica: n.d.

Galleria Fotografica

Contatta l'inserzionista

La Casa Immobiliare

La Casa Immobiliare di San Benedetto del Tronto propone in vendita questo immobile, contattali subito!

Annunci simili

Annunci immobiliari a San Benedetto del Tronto (AP)

Copyright Š 2026 PCase.it. All rights reserved. Sede operativa MILANO. P.IVA 08508420968 - Condizioni d'uso e privacy