Preferiti

Sponsorizza

Stampa

Appartamento bilocale in vendita con giardino a San Benedetto del Tronto in via crispi

  • 161.000€
  • 2 locali
  • 63 mq
  • Vendesi

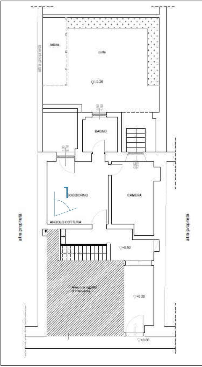
In vendita nel centro di San Benedetto del Tronto e a pochi passi dal mare, al piano terra appartamento composto da ingresso soggiorno ,angolo cottura, camino, camera matrimoniale, bagno, bellissima corte esterna e giardino per un totale di 60 mq.L'appartamento stato completato nel 2021 in tutte le sue parti, compresi gli impianti certificati, pavimentazioni e bagno.
La zona molto servita sia per Via della vicinanza all'isola pedonale, sia per la vicinanza a tutti i servizi primari.
L'appartamento esposto ad Ovest offre una grande luminosit per tutto il giorno.
La corte/giardino offre la possibilit di godersi il fresco serale d' estate anche cenando all'aperto.
Ideale per una coppia e/o come seconda casa o messa a reddito.
L'appartamento si vende arredato come da foto e video, rendendo il prezzo di questo immobile molto appetibile.
La palazzina composta da soli 5 appartamenti, essa assicura tranquillit e quasi inesistenti spese condominiali.
Prenotare la visita al numero dell'agenzia 3922084771. Contatta l'inserzionista

Immobiliare Galič - CaprioliImmobiliare Galič - Caprioli
via gino moretti 67
63074, San Benedetto del Tronto (Ascoli Piceno)
Visualizza Telefono

INFORMAZIONI SULL'IMMOBILE

  • Riferimento: v1349
  • Tipologia: Appartamento in Vendita
  • Locali: 2 Locali ( 1 camera e un bagno)
  • Stato: Ristrutturato
  • Prezzo: 161.000 €
  • Prezzo al mq: 2.556 €
  • Riscaldamento: Autonomo
  • Giardino: Privato - 20 Mq
  • Modificato il: 25/02/2026
  • Scheda: SC9496886

Stabile

F

Mappa e indirizzo

Appartamento sito in via crispi
63039 San Benedetto del Tronto (Ascoli Piceno)
mappa mostra l'annuncio su mappa

Galleria Fotografica

Contatta l'inserzionista

Immobiliare Galič - Caprioli

Immobiliare Galič - Caprioli di San Benedetto del Tronto propone in vendita questo immobile, contattali subito!

Annunci simili

Annunci immobiliari a San Benedetto del Tronto (AP)

Copyright Š 2026 PCase.it. All rights reserved. Sede operativa MILANO. P.IVA 08508420968 - Condizioni d'uso e privacy