Preferiti

Sponsorizza

Stampa

Appartamento in vendita a San Benedetto del Tronto

  • 260.000€
  • 3 locali
  • 89 mq
  • Vendesi

Nuovo appartamento al mare a San Benedetto del Tronto.
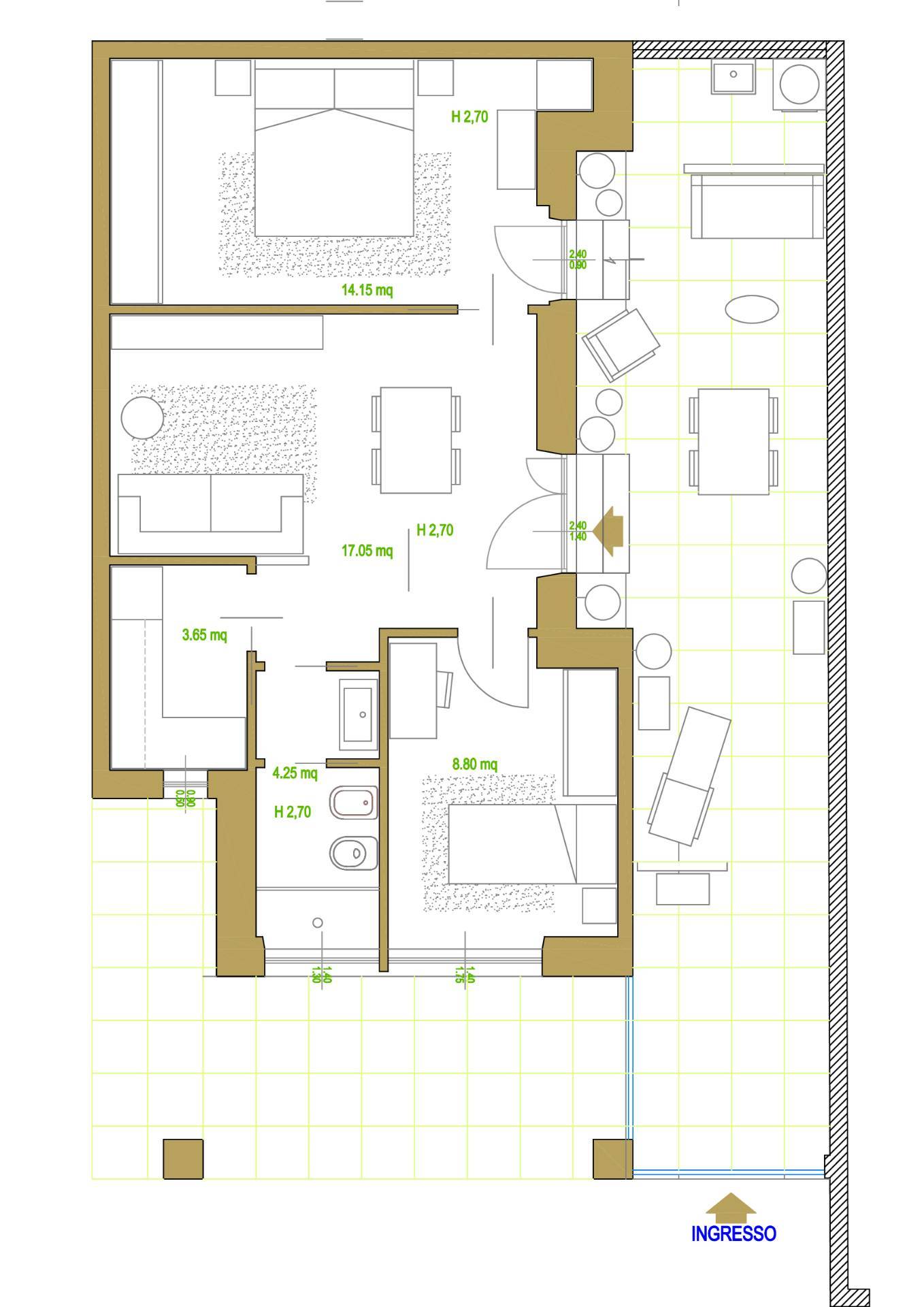
A 60 m dal mare e dal prossimo Parco sul Mare (ex Ballarin), trilocale in totale ristrutturazione, composto da ingresso su soggiorno, cucinotto separato, bagno con doccia, due camere.
Lappartamento situato al piano terra di una palazzina di tre piani e fornito di ampia corte esterna con buona privacy.
Sar dotato di riscaldamento a pavimento, pannello solare termico, videocitofono, infissi con doppio vetro a taglio termico e tapparelle elettriche coibentate, portoncino blindato, sanitari sospesi, predisposizione per impianto di climatizzazione e impianto di allarme.
Sono previste finiture di pregio con pavimenti in parquet e illuminazione zona giorno integrata a soffitto.
Ingresso autonomo.
Consegna: luglio 2026. Disponibilit di posto auto con prezzo da computare a parte.
Vendita esente IVA. Appartamento: 57.40 mq Corte: 31.85 mq Sup. commerciale: 67 mq Prezzo: 260.000,00? Contatta l'inserzionista

Immobiliare Galič - CaprioliImmobiliare Galič - Caprioli
via gino moretti 67
63074, San Benedetto del Tronto (Ascoli Piceno)
Visualizza Telefono

INFORMAZIONI SULL'IMMOBILE

  • Riferimento: v1242
  • Tipologia: Appartamento in Vendita
  • Locali: 3 Locali (2 camere e un bagno)
  • Prezzo: 260.000 €
  • Prezzo al mq: 2.921 €
  • Riscaldamento: Autonomo
  • Modificato il: 10/04/2026
  • Scheda: SC9562351

Stabile

  • Classe Energetica: n.d.

Mappa e indirizzo

63039 San Benedetto del Tronto (Ascoli Piceno)
mappa mostra l'annuncio su mappa

Video Slide

Galleria Fotografica

Contatta l'inserzionista

Immobiliare Galič - Caprioli

Immobiliare Galič - Caprioli di San Benedetto del Tronto propone in vendita questo immobile, contattali subito!

Annunci simili

Annunci immobiliari a San Benedetto del Tronto (AP)

Copyright Š 2026 PCase.it. All rights reserved. Sede operativa MILANO. P.IVA 08508420968 - Condizioni d'uso e privacy