Preferiti

Sponsorizza

Stampa

Appartamento bilocale in vendita classe A1 a San Benedetto del Tronto

  • trattativa riservata
  • 2 locali
  • 52 mq
  • Vendesi

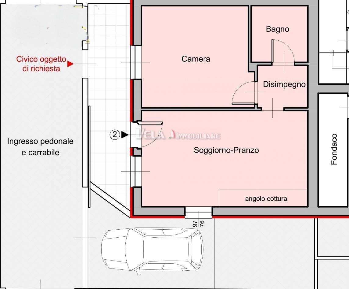
In zona residenziale di Santa Lucia, a San Benedetto del Tronto, proponiamo in vendita un grazioso appartamento di 52 m calpestabili di recente costruzione, con ingresso indipendente e corte esterna privata.
La casa composta da due luminosi locali arredati con cura: un'ampia zona living con angolo cottura, zona divano e tv, un disimpegno, un'ampia camera da letto tripla, e un bagno con doccia e aspiratore.
Tutti gli ambienti godono di una corte esterna privata di 30 mt ca., con possibilit di parcheggio interno o area verde.
L'edificio e l'immobile sono come nuovi e presentano un'impiantistica moderna ed efficiente: riscaldamento a pavimento, per un comfort termico ottimale durante tutto lanno, cappotto termico, predisposizione per aria condizionata, e portone blindato.
Posizione ideale: situato in una zona tranquilla, lappartamento vicino a supermercati, farmacie, scuole e mezzi di trasporto, offrendo la comodit di avere tutto a portata di mano, pur godendo della pace di una posizione residenziale.
Non perdere questa opportunit di vivere in un appartamento moderno, comodo e indipendente.
Ottimo anche come investimento.
Contattaci per ulteriori informazioni o per prenotare una visita! Contatta l'inserzionista

Vela Immobiliare SrlVela Immobiliare Srl
Via Asiago, 124
63074, San Benedetto del Tronto (Ascoli Piceno)
Visualizza Telefono

INFORMAZIONI SULL'IMMOBILE

  • Riferimento: 1872
  • Tipologia: Appartamento in Vendita
  • Locali: 2 Locali ( 1 camera e un bagno)
  • Riscaldamento: Autonomo
  • Modificato il: 27/05/2025
  • Scheda: SC9561007

Stabile

  • Anno: 2021
A1

Mappa e indirizzo

63039 San Benedetto del Tronto (Ascoli Piceno)
mappa mostra l'annuncio su mappa

Galleria Fotografica

Contatta l'inserzionista

Vela Immobiliare Srl

Vela Immobiliare Srl di San Benedetto del Tronto propone in vendita questo immobile, contattali subito!

Annunci simili

Annunci immobiliari a San Benedetto del Tronto (AP)

Copyright Š 2026 PCase.it. All rights reserved. Sede operativa MILANO. P.IVA 08508420968 - Condizioni d'uso e privacy