Preferiti

Sponsorizza

Stampa

Appartamento in vendita a San Benedetto del Tronto in via fratelli cervi 18

  • 292.696€
  • 3 locali
  • 83 mq
  • Vendesi

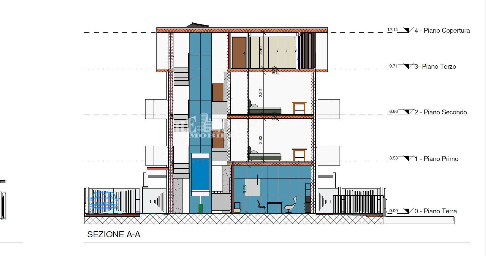
San Benedetto Del Tronto, Porto D'Ascoili, Via Fratelli Cervi n. 18, 300 metri dal mare, fabbricato in completa ristrutturazione sviluppato in quattro piani fuori terra.
Appartamento 83 mq al piano terzo (ultimo) con ascensore composto da ingresso su ampio soggiono con cucina open space, due camere da letto di cui una matrimoniale ed una singola, due bagni di cui uno con doccia, balcone di mq 4 e terrazzo abitabile di mq 8. Completano la propriet un posto auto. Esposizione sud - est - ovest - nord. La parte acquirente potr se richiesto apportare modifiche inerenti la distribuzione interna degli spazi, secondo le proprie necessit, nel rispetto delle aperture esterne e delle condutture.
Fabbricato composto da: 6 unit abitative e precisamente da un appartamento al piano terra, due appartamenti al piano primo, due appartamenti al piano secondo, un appartamento al piano terzo.
Finiture: i pavimenti dei soggiorni, cucine, camere e disimpegni, saranno realizzati con una pavimentazione in Gres della Marazzi effetto legno Corona Effetto Legno- Marazzi Block 75x 75, i rivestimenti dei bagni saranno realizzati in piastrelle di grs porcellanato della Marazzi grande lastri oppure ditte similari in formato 60 x 120 cm, delle seguenti serie e colori a scelta del cliente, i portoncini di primo ingresso alle unit abitative saranno del tipo blindato di dimensioni 90x210cm, con livello di antieffrazione di classe 3 ad anta singola saldamente affrancati alla struttura, ad elevati prestazioni di isolamento acustico e termico, i portoncini saranno dotati di: porta di sicurezza in acciaio rivestita di legno, ad una sola anta, rostri fissi, limitatore di apertura a traslazione, anta di spessore costruita in acciaio zincato, 2 cerniere registrabili nei due sensi in acciaio, telaio su tre lati in acciaio zincato di spessore, angolari ferma pannello, isolamento acustico fino a 40 dB, la progettazione delledificio e dei relativi impianti stata concepita per raggiungere unelevata classificazione energetica, in conformit al D.M. 26 giugno 2015 e alle recenti disposizioni orientate alla neutralit carbonica degli edifici, in particolare, ledificio verr certificato in classe A3. Finitura del pavimento: pu essere costituita da piastrelle, parquet o altro materiale idoneo alla trasmissione del calore.
importante che lo strato di finitura abbia unelevata conducibilit termica, per massimizzare lefficienza dellimpianto.
Collettori e regolazione Ogni impianto radiante collegato a un collettore (o pi collettori, se labitazione presenta pi zone), dotato di: Rubinetti di intercettazione sulle partenze e sui ritorni, per consentire eventuali interventi di manutenzione; Flussimetri o misuratori di portata, che permettono di bilanciare correttamente ciascun circuito; Raccorderia e sistemi di sfogo aria e scarico acqua per eliminare eventuali bolle daria e consentire la pulizia del circuito; Attuatori elettrotermici su ogni singolo circuito, pilotati da una sonda di temperatura ambiente (o termostato), cos da poter regolare in modo indipendente la temperatura di ciascun locale o zona. Ogni appartamento sar dotato di un sistema di regolazione della temperatura, costituito da uninterfaccia utente posizionata nel soggiorno (oppure in un altro locale, secondo le indicazioni della Direzione Lavori). Tale sistema potr, inoltre, essere integrato con un sistema domotico, consentendo di impostare e controllare agevolmente tutti i parametri di climatizzazione, sia localmente che da remoto.
Le unit a parete saranno comandate da apposito comando.
La Ventilazione Meccanica Controllata (VMC) con recupero di calore offre numerosi vantaggi dal punto di vista del comfort abitativo, dellefficienza energetica e della salubrit degli ambienti interni.
INFISSI: I serramenti esterni degli appartamenti saranno in allumino.
Saranno dotati di doppia guarnizione, profili squadrati,... Contatta l'inserzionista

Re Casa S.r.l.s.Re Casa S.r.l.s.
Via San Francesco n. 13 b/c
63074, San Benedetto del Tronto (Ascoli Piceno)
Visualizza Telefono

INFORMAZIONI SULL'IMMOBILE

  • Riferimento: 9683
  • Tipologia: Appartamento in Vendita
  • Locali: 3 Locali (2 camere con doppi servizi)
  • Piano: Terzo
  • Stato: Ottimo
  • Prezzo: 292.696 €
  • Prezzo al mq: 3.526 €
  • Riscaldamento: Autonomo
  • Spazio Auto: No
  • Modificato il: 27/03/2026
  • Scheda: SC9545921

Stabile

  • Anno: 2025
  • Piano: 3 su 4 totali
I.P.E.
42,45Kwh/m2
A3

Mappa e indirizzo

Appartamento sito in via fratelli cervi, 18
63039 San Benedetto del Tronto (Ascoli Piceno)
mappa mostra l'annuncio su mappa

Galleria Fotografica

Contatta l'inserzionista

Re Casa S.r.l.s.

Re Casa S.r.l.s. di San Benedetto del Tronto propone in vendita questo immobile, contattali subito!

Annunci simili

Annunci immobiliari a San Benedetto del Tronto (AP)

Copyright Š 2026 PCase.it. All rights reserved. Sede operativa MILANO. P.IVA 08508420968 - Condizioni d'uso e privacy