Preferiti

Sponsorizza

Stampa

Appartamento in vendita a San Benedetto del Tronto in via fratelli cervi 18

  • 330.880€
  • 3 locali
  • 72 mq
  • Vendesi

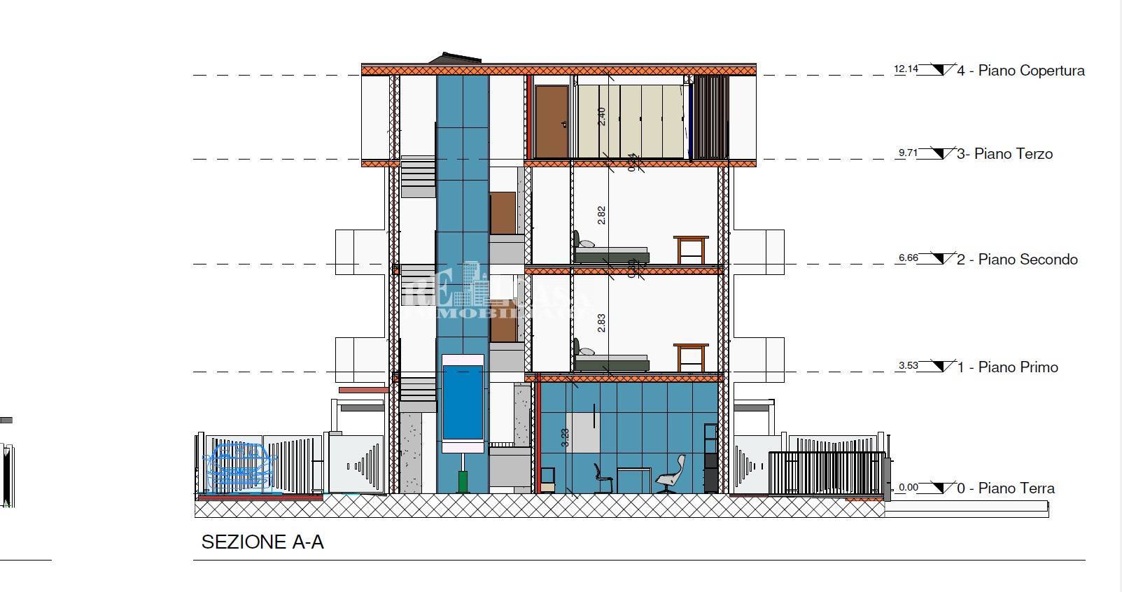
San Benedetto Del Tronto, Porto D'Ascoili, Via Fratelli Cervi n. 18, 300 metri dal mare, fabbricato in completa ristrutturazione sviluppato in quattro piani fuori terra.
Opzione 1: Appartamento 72 mq al piano primo con ascensore composto da ingresso su ampio soggiono/cucina, due camere da letto di cui una matrimoniale ed una singola, due bagni entrambi con doccia di cui uno nella zona giono con antibagno, due balconi per complessivi mq 23. Completa la propriet un posto auto scoperto.
Esposizione sud - est - ovest.
Opzione 2: Appartamento 72 mq al piano primo con ascensore composto da ingresso su ampio soggiono/cucina, due camere da letto matrimoniali, un bagno, due balconi per complessivi mq 23. Completa la propriet un posto auto scoperto.
Esposizione sud - est - ovest.
La parte acquirente potr se richiesto apportare modifiche inerenti la distribuzione interna degli spazi, secondo le proprie necessit, nel rispetto delle aperture esterne e delle condutture.
Fabbricato composto da: 6 unit abitative e precisamente da un appartamento al piano terra, due appartamenti al piano primo, due appartamenti al piano secondo, un appartamento al piano terzo.
Finiture: i pavimenti dei soggiorni, cucine, camere e disimpegni, saranno realizzati con una pavimentazione in Gres della Marazzi effetto legno Corona Effetto Legno- Marazzi Block 75x 75, i rivestimenti dei bagni saranno realizzati in piastrelle di grs porcellanato della Marazzi grande lastri oppure ditte similari in formato 60 x 120 cm, delle seguenti serie e colori a scelta del cliente, i portoncini di primo ingresso alle unit abitative saranno del tipo blindato di dimensioni 90x210cm, con livello di antieffrazione di classe 3 ad anta singola saldamente affrancati alla struttura, ad elevati prestazioni di isolamento acustico e termico, i portoncini saranno dotati di: porta di sicurezza in acciaio rivestita di legno, ad una sola anta, rostri fissi, limitatore di apertura a traslazione, anta di spessore costruita in acciaio zincato, 2 cerniere registrabili nei due sensi in acciaio, telaio su tre lati in acciaio zincato di spessore, angolari ferma pannello, isolamento acustico fino a 40 dB, la progettazione delledificio e dei relativi impianti stata concepita per raggiungere unelevata classificazione energetica, in conformit al D.M. 26 giugno 2015 e alle recenti disposizioni orientate alla neutralit carbonica degli edifici, in particolare, ledificio verr certificato in classe A3. La climatizzazione estiva e invernale, cos come la produzione di acqua calda sanitaria, saranno garantite da un impianto a pompa di calore aria/acqua ad alta efficienza, lintero fabbisogno di acqua calda sanitaria sar soddisfatto da un sistema a pompa di calore ad alta efficienza, lo stesso impianto che garantir anche il riscaldamento e il raffrescamento degli ambienti, grazie a questa soluzione, sar possibile ottimizzare i consumi energetici e assicurare un elevato livello di comfort interno in ogni stagione.
La funzione primaria di tali circuiti il riscaldamento invernale, mediante la circolazione di acqua calda a bassa temperatura, stabilita in fase progettuale attraverso specifici calcoli termotecnici con impianto a pavimento.
Stratigrafia e componenti Pannelli in polistirolo sagomato: fungono da supporto isolante, sia dal punto di vista termico che acustico, e permettono di ancorare in modo ordinato le tubazioni.
Tubazioni in polietilene: disposte a serpentina, in cui fluisce il fluido termovettore (acqua calda). La configurazione a serpentina, progettata secondo specifici criteri di passo e lunghezza, garantisce una distribuzione omogenea del calore.
Massetto alleggerito: realizzato sopra il pannello isolante e le tubazioni, ha la funzione di incorporare e proteggere limpianto radiante, consentendo successivamente la posa del pavimento.
Lo spessore e la composizione del massetto sono determinati in base alle caratteristiche... Contatta l'inserzionista

Re Casa S.r.l.s.Re Casa S.r.l.s.
Via San Francesco n. 13 b/c
63074, San Benedetto del Tronto (Ascoli Piceno)
Visualizza Telefono

INFORMAZIONI SULL'IMMOBILE

  • Riferimento: 9680
  • Tipologia: Appartamento in Vendita
  • Locali: 3 Locali (2 camere con doppi servizi)
  • Piano: Primo
  • Stato: Ottimo
  • Prezzo: 330.880 €
  • Prezzo al mq: 4.596 €
  • Riscaldamento: Autonomo
  • Spazio Auto: No
  • Modificato il: 18/12/2025
  • Scheda: SC9545830

Stabile

  • Anno: 2025
  • Piano: 1 su 4 totali
I.P.E.
42,45Kwh/m2
A3

Mappa e indirizzo

Appartamento sito in via fratelli cervi, 18
63039 San Benedetto del Tronto (Ascoli Piceno)
mappa mostra l'annuncio su mappa

Galleria Fotografica

Contatta l'inserzionista

Re Casa S.r.l.s.

Re Casa S.r.l.s. di San Benedetto del Tronto propone in vendita questo immobile, contattali subito!

Annunci simili

Annunci immobiliari a San Benedetto del Tronto (AP)

Copyright Š 2026 PCase.it. All rights reserved. Sede operativa MILANO. P.IVA 08508420968 - Condizioni d'uso e privacy