Preferiti

Sponsorizza

Stampa

Appartamento in vendita a San Benedetto del Tronto in via lombroso

  • 220.000€
  • 3 locali
  • 73 mq
  • Vendesi

L'agenzia immobiliare Calderisi propone In una delle zone pi ricercate di San Benedetto del Tronto, precisamente nel centro sud, questo moderno appartamento in vendita.
La sua posizione strategica lo rende ideale per chi desidera vivere in una zona residenziale, ma allo stesso tempo ben servita e vicina a tutti i principali servizi e al mare. L'appartamento, libero al rogito, si trova al piano rialzato di un edificio di recente costruzione, datato 2017 con ingresso indipendente.
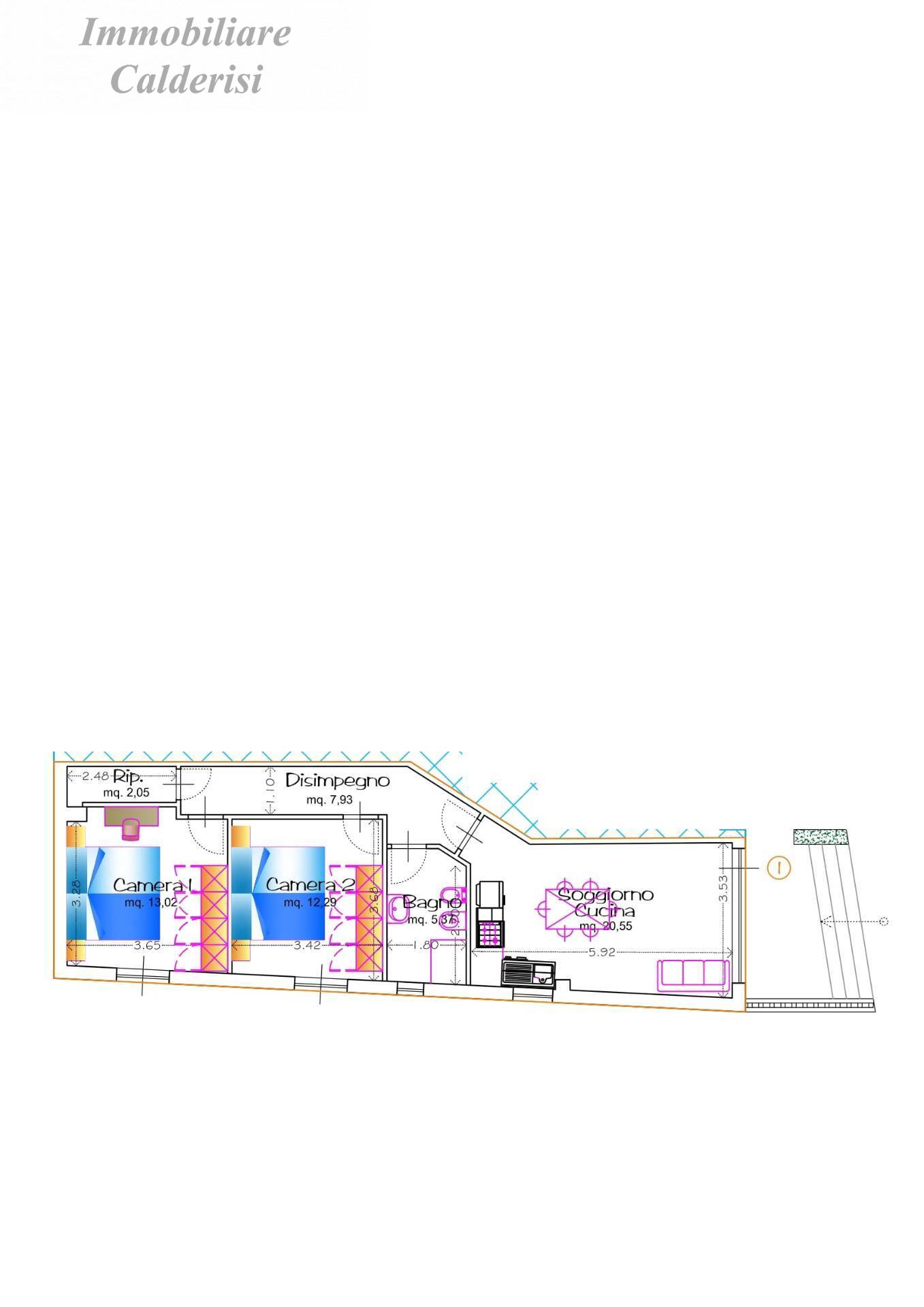
L'entrata principale conduce direttamente al luminoso soggiorno, che grazie alla doppia esposizione gode di una splendida luce naturale durante tutto il giorno.
La cucina, a vista e dotata di angolo cottura, si affaccia sul soggiorno, creando un ambiente conviviale e moderno.
La zona notte composta da due camere da letto e da un bagno, entrambi arredati con gusto e dotati di ogni comfort.
Tutti gli ambienti dell'appartamento sono caratterizzati da un impianto di riscaldamento autonomo a metano e da un sistema di pavimento/battiscopa, che garantiscono un'ottima efficienza energetica e un elevato comfort abitativo.
Gli infissi in PVC con taglio termico garantiscono un'ottima isolamento acustico e termico, mentre la presenza di un sistema di allarme aumenta la sicurezza dell'immobile.
Lo stato di conservazione dell'appartamento ottimo, pari al nuovo.
L'arredamento moderno e di design, incluso nella vendita, rende l'immobile subito pronto per essere abitato.
In sintesi, questo appartamento di circa 75 mq, la soluzione ideale per chi cerca un'abitazione moderna, funzionale e ben posizionata a San Benedetto del Tronto.
Non perdere l'occasione di acquistare il tuo nuovo nido, libero al rogito, nel cuore della citt. Agenzia immobiliare Calderisi.
0735 86939 Contatta l'inserzionista

Immobiliare CalderisiImmobiliare Calderisi
Viale A. De Gasperi 54
63074, San Benedetto del Tronto (Ascoli Piceno)
Visualizza Telefono

INFORMAZIONI SULL'IMMOBILE

  • Riferimento: V663Z
  • Tipologia: Appartamento in Vendita
  • Locali: 3 Locali (2 camere e un bagno)
  • Piano: Rialzato
  • Stato: Ottimo
  • Prezzo: 220.000 €
  • Prezzo al mq: 3.014 €
  • Riscaldamento: Autonomo
  • Modificato il: 31/05/2025
  • Scheda: SC9574914

Stabile

  • Anno: 2017
  • Piano: Rialzato su 4 totali
I.P.E.
115,82Kwh/m2
C

Mappa e indirizzo

Appartamento sito in via lombroso
63039 San Benedetto del Tronto (Ascoli Piceno)
mappa mostra l'annuncio su mappa

Contatta l'inserzionista

Immobiliare Calderisi

Immobiliare Calderisi di San Benedetto del Tronto propone in vendita questo immobile, contattali subito!

Annunci simili

Annunci immobiliari a San Benedetto del Tronto (AP)

Copyright Š 2026 PCase.it. All rights reserved. Sede operativa MILANO. P.IVA 08508420968 - Condizioni d'uso e privacy