Preferiti

Sponsorizza

Stampa

Appartamento in vendita da ristrutturare a Roma in via platani

  • 179.000€
  • 3 locali
  • 70 mq
  • Vendesi

Cod. V4107 - Roma Centocelle - Trilocale con ampia terrazza esclusiva!!! Un'ottima opportunit per chi cerca un progetto da personalizzare in una zona servitissima unita alla vicinanza strategica della Metro C Piazza Mirti.
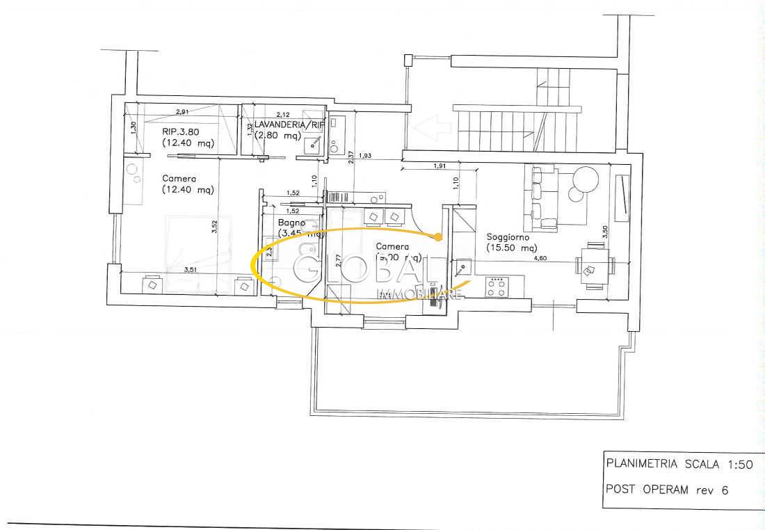
L'appartamento da ristrutturare ed posto al primo piano di una palazzina in ottime condizioni esterne, composto da ingresso, soggiorno con angolo cottura con accesso alla terrazza, grande matrimoniale, cameretta, bagno e lavanderia.
Centocelle un quartiere in forte rivalutazione, pieno di locali e servizi; essere a soli 200 metri dalla metro garantisce un valore stabile nel tempo, sia per viverci che per un eventuale affitto!!! Contatta l'inserzionista

Global Immobiliare di Cioci BrunoGlobal Immobiliare di Cioci Bruno
Corso G. Amendola 46D
60121, Ancona (Ancona)
Visualizza Telefono

INFORMAZIONI SULL'IMMOBILE

  • Riferimento: V4107
  • Tipologia: Appartamento in Vendita
  • Locali: 3 Locali (2 camere e un bagno)
  • Piano: Primo
  • Stato: da Ristrutturare
  • Prezzo: 179.000 €
  • Prezzo al mq: 2.557 €
  • Riscaldamento: Autonomo
  • Modificato il: 15/04/2026
  • Scheda: SC9638058

Stabile

  • Anno: 1958
  • Piano: 1 su 4 totali
  • Classe Energetica: n.d.

Mappa e indirizzo

Appartamento sito in via platani
00135 Roma (Roma)
Centocelle, Tor de' Schiavi
mappa mostra l'annuncio su mappa

Metropolitana
MC
Fermata Mirti a 530m
circa 8/10 min a piedi
Metropolitana
MC
Fermata Parco di Centocelle a 790m
circa 13/15 min a piedi

Galleria Fotografica

Contatta l'inserzionista

Global Immobiliare di Cioci Bruno

Global Immobiliare di Cioci Bruno di Ancona propone in vendita questo immobile, contattali subito!

Annunci simili

Annunci immobiliari a Roma (RM)

Copyright Š 2026 PCase.it. All rights reserved. Sede operativa MILANO. P.IVA 08508420968 - Condizioni d'uso e privacy