Preferiti

Sponsorizza

Stampa

Appartamento in vendita con giardino a Quartu Sant'Elena

  • 250.000€
  • 5 locali
  • 240 mq
  • Vendesi

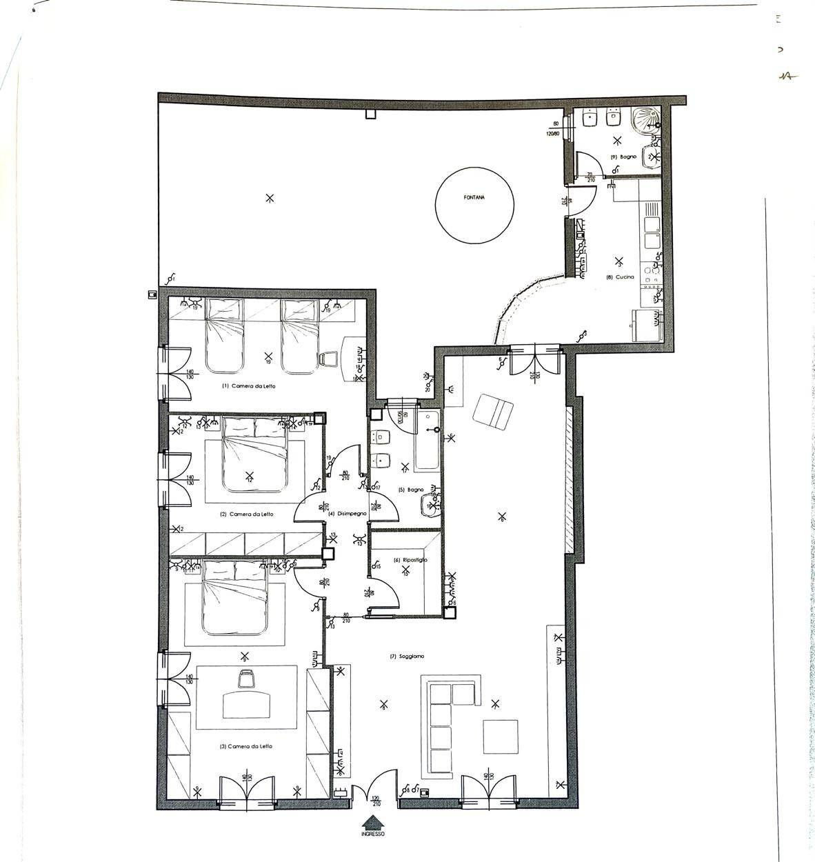
Quartu SantElena Zona Via Manara | Ampio appartamento semindipendente con cortile In una tranquilla zona residenziale di Quartu SantElena, nelle immediate vicinanze di Via Manara, proponiamo in vendita ampio appartamento semindipendente situato al piano terra, con una superficie commerciale di circa 240 mq. Limmobile vanta una metratura interna calpestabile di circa 165 mq ed caratterizzato da ambienti spaziosi e ben distribuiti.
Composizione interna: - Ingresso carrabile e pedonale con cancello - Secondo ingresso pedonale indipendente con portone - Ampia zona giorno - Cucina abitabile - Tre camere da letto (due matrimoniali e una singola) - Studiolo - Tre bagni - Completa la propriet un cortile interno di circa 70 mq, ideale come spazio esterno privato per momenti di relax o convivialit.
Soluzione ideale per chi alla ricerca di ampi spazi, indipendenza e comodit, in una zona ben servita e a pochi minuti dai principali servizi.
Possibilit di acquisto per investimento con una rendit annua di 12.000 euro lordi. Contatta l'inserzionista

CasaMia Immobiliare di Concas GiuseppeCasaMia Immobiliare di Concas Giuseppe
traversa di via Minervini 14
09045, Maracalagonis (Cagliari)
Visualizza Telefono

INFORMAZIONI SULL'IMMOBILE

  • Riferimento: 824
  • Tipologia: Appartamento in Vendita
  • Locali: 5 Locali
  • Piano: Terra
  • Stato: Buono
  • Bagni: 3
  • Prezzo: 250.000 €
  • Prezzo al mq: 1.042 €
  • Giardino: Privato
  • Modificato il: 16/03/2026
  • Scheda: SC9590451

Stabile

  • Piano: Terra
A2

Mappa e indirizzo

09045 Quartu Sant'Elena (Cagliari)
mappa mostra l'annuncio su mappa

Galleria Fotografica

Contatta l'inserzionista

CasaMia Immobiliare di Concas Giuseppe

CasaMia Immobiliare di Concas Giuseppe di Maracalagonis propone in vendita questo immobile, contattali subito!

Annunci simili

Annunci immobiliari a Quartu Sant'Elena (CA)

Copyright Š 2026 PCase.it. All rights reserved. Sede operativa MILANO. P.IVA 08508420968 - Condizioni d'uso e privacy