Preferiti

Sponsorizza

Stampa

Appartamento bilocale in vendita con giardino a Pozzo d'Adda in cascina cavallasco

  • 62.621€
  • 2 locali
  • 53 mq
  • Vendesi

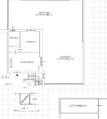
Appartamento composto da due locali con angolo cottura oltre servizio igienico e giardino al piano terra, con annesso vano di cantina al piano interrato, oltre a pertinenziale box ad uso autorimessa al piano interrato.
24 18423-8 Per ulteriori informazioni contattare il seguente recapito telefonico 02/9552248 oppure scrivete a *******@*******. MELPUM CASA un punto di riferimento nel settore delle aste immobiliari.
Il nostro team composto da esperti professionisti in grado di soddisfare le esigenze del cliente, garantendo un adeguato servizio di consulenza in ogni fase dellacquisto, fino allimmissione in possesso dellimmobile.
Affidarsi a noi significa acquisire un immobile in modo consapevole e con la massima chiarezza su tempistiche, costi e procedure.
MELPUM CASA offre ulteriori servizi dedicati al cliente quali: - Broker per ottenimento mutuo - Preventivi di spesa riguardanti ristrutturazioni e/o manutenzioni - Redazione di pratiche edilizie e catastali - Intermediazione su future vendite o locazioni. Contatta l'inserzionista

MELPUMCASAMELPUMCASA
Casanova,9
20066, Ivrea (Torino)
Visualizza Telefono

INFORMAZIONI SULL'IMMOBILE

  • Riferimento: 11979
  • Tipologia: Appartamento in Vendita
  • Locali: 2 Locali ( 1 camera e un bagno)
  • Piano: Terra
  • Prezzo: 62.621 €
  • Prezzo al mq: 1.182 €
  • Riscaldamento: Autonomo
  • Giardino: Privato
  • Spazio Auto: Box singolo
  • Cantina: Si
  • Modificato il: 18/04/2026
  • Scheda: SC9578011

Stabile

  • Anno: 2007
  • Piano: Terra
I.P.E.
170Kwh/m2
G

Mappa e indirizzo

Appartamento sito in cascina cavallasco
20060 Pozzo d'Adda (Milano)
mappa mostra l'annuncio su mappa

Galleria Fotografica

Contatta l'inserzionista

MELPUMCASA

MELPUMCASA di Ivrea propone in vendita questo immobile, contattali subito!

Annunci simili

Annunci immobiliari a Pozzo d'Adda (MI)

Copyright Š 2026 PCase.it. All rights reserved. Sede operativa MILANO. P.IVA 08508420968 - Condizioni d'uso e privacy