Preferiti

Sponsorizza

Stampa

Appartamento in vendita a Porto San Giorgio in via repubblica

  • 217.000€
  • 3 locali
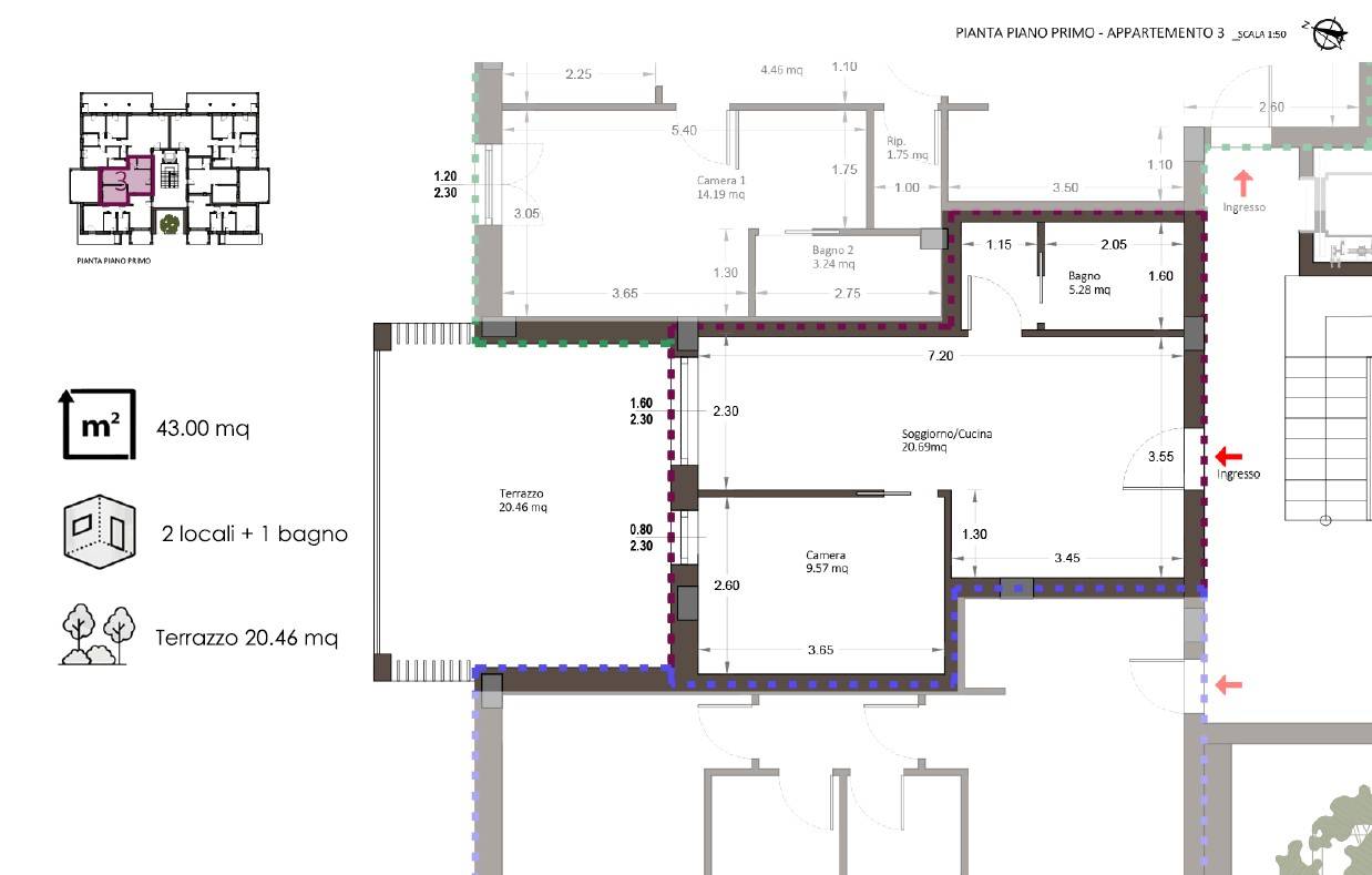
  • 43 mq
  • Vendesi

NUOVO - ACCESSORIATO - POSTO AUTO- L'Agenzia Immobiliare Aedes propone in esclusiva di Vendita nel Comune di Porto San Giorgio (FM) , in zona centro - Sud e comoda sia per il centro che per la spiaggia , elegante Appartamento di circa 43 mq di nuova realizzazione posto al piano primo con terrazzo a servizio di 20 mq . L'immobile si compone di ingresso su soggiorno con cucina seminascosta , grande terrazzo abitabile a servizio , comodo camera da letto matrimoniale e bagno . Posto auto e cantina al piano strada . Consegna prevista per autunno 2027. La soluzione abitativa sar realizzata secondo le ultime tecnologie costruttive, con lo scopo di ottenere un'elevata qualit tecnologica e un alto livello di confort, con particolare attenzione alle materie prime selezionate e alle finiture.
Opportunit non facile da reperire sul mercato per completezza di accessori , distanza dal mare , dal centro che per impatto estetico . Inoltre l' immobile si conf specialmente per chi alla ricerca di un prodotto innovativo, volto ad ottenere un forte risparmio energetico ed inserito in un contesto altamente esclusivo e riservato.
La nostra agenzia a vostra disposizione per fornirvi ulteriori informazioni e dettagli.
PREZZO FINITO A CUI AGGIUNGERE SOLO IVA E ALLACCI . Classe energetica prevista "A4". RIF.A549-3 . Contatta l'inserzionista

AG. IMMOBILIARE AEDES DI SARA ROMBINIAG. IMMOBILIARE AEDES DI SARA ROMBINI
VIALE DEI PINI N.99
63822, Porto San Giorgio (Fermo)
Visualizza Telefono

INFORMAZIONI SULL'IMMOBILE

  • Riferimento: A549-3
  • Tipologia: Appartamento in Vendita
  • Locali: 3 Locali (2 camere e un bagno)
  • Piano: Primo
  • Prezzo: 217.000 €
  • Prezzo al mq: 5.047 €
  • Riscaldamento: Autonomo
  • Spazio Auto: No
  • Cantina: Si
  • Modificato il: 27/02/2026
  • Scheda: SC9502398

Stabile

  • Anno: 2026
  • Piano: 1 su 5 totali
  • Giardino: Condominiale
A4

Mappa e indirizzo

Appartamento sito in via repubblica
63017 Porto San Giorgio (Fermo)
mappa mostra l'annuncio su mappa

Galleria Fotografica

Contatta l'inserzionista

AG. IMMOBILIARE AEDES DI SARA ROMBINI

AG. IMMOBILIARE AEDES DI SARA ROMBINI di Porto San Giorgio propone in vendita questo immobile, contattali subito!

Annunci simili

Annunci immobiliari a Porto San Giorgio (FM)

Copyright Š 2026 PCase.it. All rights reserved. Sede operativa MILANO. P.IVA 08508420968 - Condizioni d'uso e privacy