Preferiti

Sponsorizza

Stampa

Appartamento in vendita a Piacenza in via veneto

  • 375.000€
  • 4 locali
  • 128 mq
  • Vendesi

ZONA VIA VENETO - E' iniziata la riqualificazione in Classe A4 di una palazzina che verr trasformata a nuovo in una delle zone pi richieste della citt. Verranno realizzati 11 appartamenti in piccolo contesto con ascensore, disposti tra piano terra (di cui alcuni con giardino), primo e secondo con balconi e terrazzi e, per concludere, un unico attico al terzo piano.
I lavori sono iniziarti e termineranno alla fine dell'estate 2027. Sono aperte le prenotazioni: in questa fase, oltre a poter scegliere l'appartamento pi adatto, possibile scegliere in primis l'orientamento, l'esposizione e soprattutto la disposizione interna su misura per le proprie esigenze.
I materiali e le finiture sono all'interno del ricco capitolato selezionato per questo intervento.
La tecnologia sar esattamente quella attuale con il riscaldamento a pavimento e aria condizionata in pompa di calore autonoma con l'eliminazione completa del gas oltre ad impianto fotovoltaico per 1,5 kW/h individuale per ogni unit. Garage singoli e doppi sono disponibili per essere abbinati alle unit abitative.
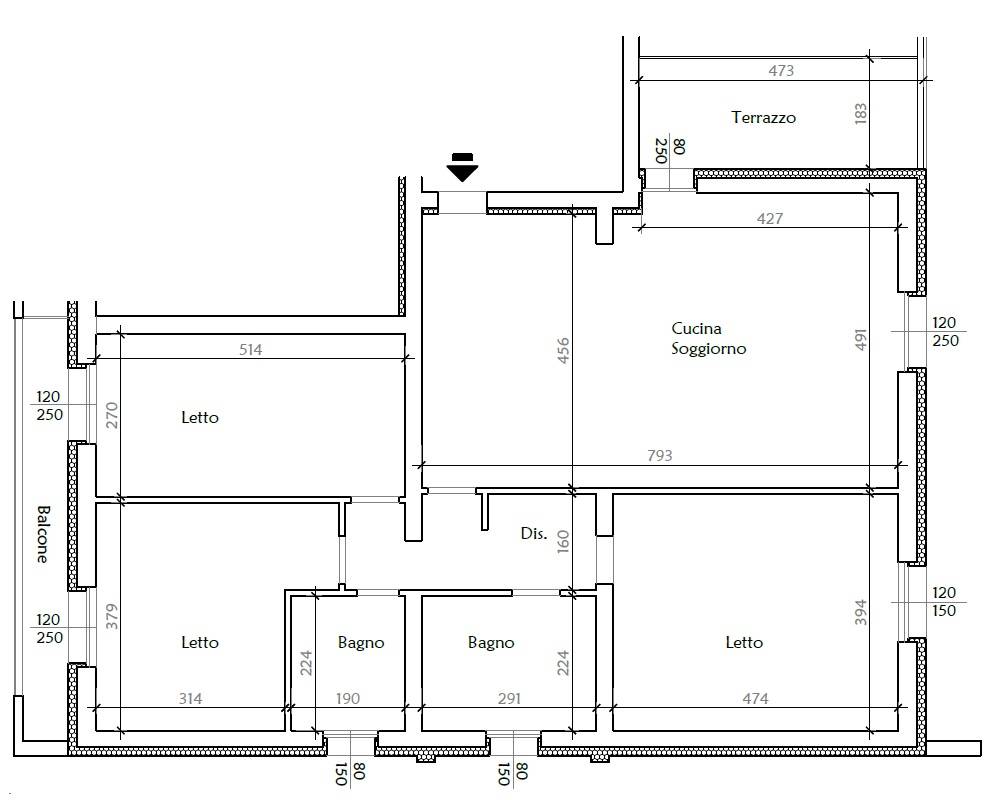
In questo annuncio proponiamo QUADRILOCALE nr. 7 posto al piano primo.
Di seguito l'elenco delle porzioni disponibili in base a metratura commerciale e prezzo (garage esclusi): BILOCALE con cantina di mq 65 ad ? 165.000 TRILOCALI con cantina a partire da mq 78 mq fino a mq 112 a partire da ? 220.000 QUADRILOCALI di mq 128 con terrazzo ad ? 375.000 ATTICO di mq 200 con terrazzi ad ? 580.000 Le immagini dei rendering esterni corrispondono a quanto di progetto programmato mentre i rendering interni sono puramente dimostrativi realizzati in base alle proposte di arredo presenti sulle planimetrie.. *INFORMATIVA PRIVACY*Per tutelare la privacy dei nostri clienti, vi informiamo che, in alcuni casi, L'INDIRIZZO INDICATO DELL'IMMOBILE E' SOLITAMENTE APPROSSIMATIVO.
Maggiori dettagli verranno SEMPRE forniti SOLO dopo contatto telefonico.
Per qualsiasi informazione e per visite potete contattarci ai riferimenti sotto indicati: Si riceve SEMPRE SOLO ESCLUSIVAMENTE con appuntamento da contatto telefonico o mail. dal Luned al Venerd dalle 9.00 alle 12.30 e dalle 14.00 alle 18.00Sabato mattina SOLO PER APPUNTAMENTI - Domenica CHIUSOTEL.
0523.49.08.18MAIL: *******@*******;MAIL: *******@*******;SOLUZIONECASA Piacenza - Via Monte Penice 18 - 29121 Piacenza Contatta l'inserzionista

SOLUZIONE CASASOLUZIONE CASA
Via Monte Penice 18
29121, Piacenza (Piacenza)
Visualizza Telefono

INFORMAZIONI SULL'IMMOBILE

  • Riferimento: AC10326_2
  • Tipologia: Appartamento in Vendita
  • Locali: 4 Locali (3 camere con doppi servizi)
  • Piano: Primo
  • Prezzo: 375.000 €
  • Prezzo al mq: 2.930 €
  • Riscaldamento: Autonomo
  • Spazio Auto: No
  • Cantina: Si
  • Modificato il: 18/03/2026
  • Scheda: SC9618338

Stabile

  • Anno: 2026
  • Piano: 1 su 3 totali
A4

Mappa e indirizzo

Appartamento sito in via veneto
29100 Piacenza (Piacenza)
Boselli, Cheope
mappa mostra l'annuncio su mappa

Galleria Fotografica

Contatta l'inserzionista

SOLUZIONE CASA

SOLUZIONE CASA di Piacenza propone in vendita questo immobile, contattali subito!

Annunci simili

Annunci immobiliari a Piacenza (PC)

Copyright Š 2026 PCase.it. All rights reserved. Sede operativa MILANO. P.IVA 08508420968 - Condizioni d'uso e privacy