Preferiti

Sponsorizza

Stampa

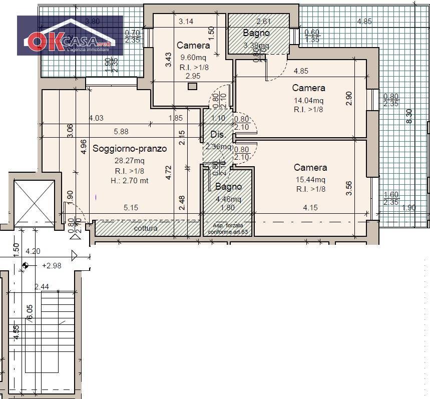
Appartamento in vendita con box a Peschiera del Garda in via abba

  • 380.000€
  • 4 locali
  • 123 mq
  • Vendesi

"Eleganza e Comfort nel Cuore di Peschiera: Quadrilocale di Lusso con Vista Panoramica e Piscina" Benvenuto nel cuore pulsante di Peschiera, dove lusso e modernit si fondono in un capolavoro architettonico.
Questo quadrilocale, situato al piano primo di un nuovo complesso residenziale, offre un'esperienza di vita senza pari. Caratteristiche principali: Posizione privilegiata: a ridosso del centro storico UNESCO e a soli 700 metri dal suggestivo lago. Nuovo complesso con piscina, solarium, e sale comuni dotate di palestra, spa e vasca idromassaggio.
Classe energetica A4 e opzione per standard NZEB - Passivhaus, garantendo bassi costi di gestione e consumi.
Design ecologico: isolamento termico senza cappotto traspirante, finestre PVC tedesche Rehau Synego 80 mm con triplo vetro, tapparelle motorizzate.
Impianti moderni: riscaldamento a pavimento con pompa di calore, pannelli solari e fotovoltaici nel condominio.
Possibilit di personalizzazione degli interni, per creare lo spazio dei tuoi sogni.
Inoltre: Opzione per garage singolo o doppio Terrazza esclusiva di 24 mq al piano copertura con vista lago e minipiscina idromassaggio per 6 persone.
Pescheria del Garda situato a poca distanza da altri centri importanti con case a Verona e limitrofi, bellissimi appartamenti a Grezzana, oppure villette a Bussolengo.
Non perdere l'opportunit di vivere nel massimo comfort e stile.
Contattaci ora per scoprire di pi e prenotare la tua visita.
Le informazioni contenute nel sito non costituiscono elemento contrattuale e le metrature sono indicative.
Per qualsiasi informazione sentitevi liberi di contattarci, siamo a vostra disposizione.
Agenzia Immobiliare OkCasaWeb Via Isonzo 7, Verona ***.*******.** 24 linee 0459810348 e-mail : *******@******* sito ufficiale : ***.*******.** Pagina facebook : Okcasaweb Immobiliare Contatta l'inserzionista

OK Casa WebOK Casa Web
Via Ugo Foscolo 6/c
34074, Monfalcone (Gorizia)
Visualizza Telefono

INFORMAZIONI SULL'IMMOBILE

  • Riferimento: 1180
  • Tipologia: Appartamento in Vendita
  • Locali: 4 Locali (3 camere con doppi servizi)
  • Piano: Primo
  • Stato: Ottimo
  • Prezzo: 380.000 €
  • Prezzo al mq: 3.089 €
  • Riscaldamento: Autonomo
  • Spazio Auto: Box singolo
  • Vista lago: Si
  • Modificato il: 24/12/2025
  • Scheda: SC9549615

Stabile

  • Anno: 2023
  • Piano: 1 su 3 totali
A4

Mappa e indirizzo

Appartamento sito in via abba
37019 Peschiera del Garda (Verona)
mappa mostra l'annuncio su mappa

Galleria Fotografica

Contatta l'inserzionista

OK Casa Web

OK Casa Web di Monfalcone propone in vendita questo immobile, contattali subito!

Annunci simili

Annunci immobiliari a Peschiera del Garda (VR)

Copyright Š 2026 PCase.it. All rights reserved. Sede operativa MILANO. P.IVA 08508420968 - Condizioni d'uso e privacy