Preferiti

Sponsorizza

Stampa

Appartamento in vendita a Peschiera del Garda in via bell'italia

  • 700.000€
  • 4 locali
  • 178 mq
  • Vendesi

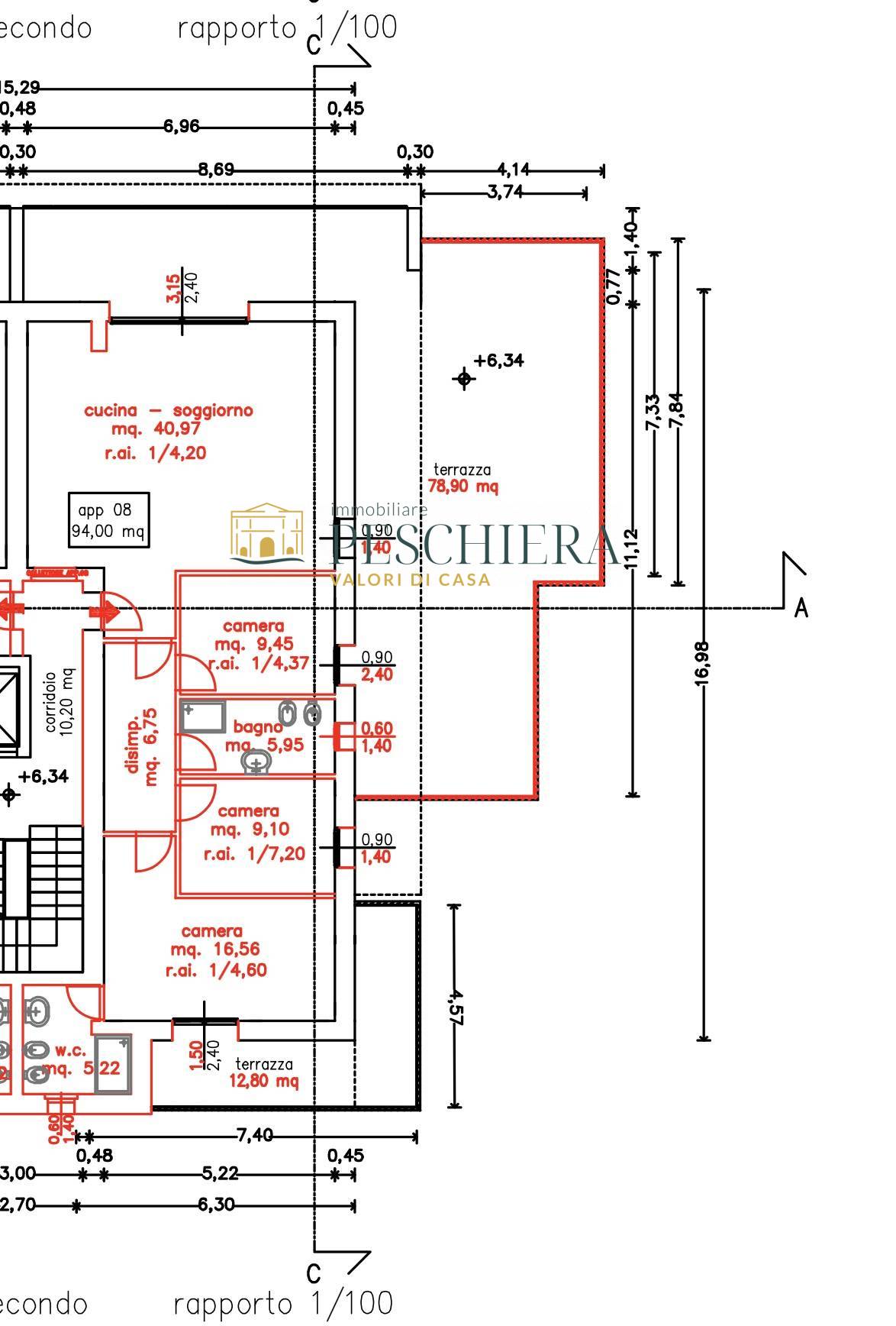
A Peschiera del Garda, nella frazione di San Benedetto di Lugana e a soli 500 metri dal lago, proponiamo un nuovo e luminoso quadrilocale al secondo piano con ampio terrazzo panoramico.
Limmobile inserito in un moderno e raffinato residence composto da dieci unit abitative, servite da ascensore; al piano interrato trovano spazio ampie autorimesse dedicate alle singole unit immobiliari.
Lappartamento si sviluppa interamente su un unico livello, al secondo piano, ed raggiungibile comodamente anche tramite ascensore.
Lingresso conduce alla luminosa zona giorno con cucina a vista e soggiorno, entrambi affacciati sul grande terrazzo abitabile di circa 80 mq che si estende su due lati. La zona notte comprende un disimpegno, due camere singole, un bagno finestrato e una camera padronale completa di bagno privato e terrazzo esclusivo.
A completare la propriet vi una doppia autorimessa al piano interrato.
inoltre possibile acquistare separatamente una cantina al prezzo di ? 6.000,00. Lintero progetto stato realizzato con tecnologie costruttive di ultima generazione, pensate per garantire elevati standard di comfort, efficienza energetica e isolamento termico e acustico.
Le finiture sono state selezionate con cura: serramenti esterni in legno, portoncino blindato e impianto autonomo di riscaldamento e raffrescamento alimentato da pompa di calore.
Il riscaldamento a pavimento presente in ogni ambiente, compresi i bagni, dove stato aggiunto anche un termoarredo.
Le abitazioni sono dotate di ventilazione meccanica controllata puntuale, cos da assicurare un ricambio daria costante, oltre allaria condizionata.
Ogni unit dispone di un impianto fotovoltaico dedicato, conforme alle normative vigenti, e di un moderno videocitofono.
inoltre prevista la predisposizione per limpianto dallarme.
Questo nuovo complesso rappresenta una soluzione abitativa contemporanea, efficiente e confortevole, ideale per chi desidera vivere vicino al lago in un contesto curato e di qualit.
Pronta consegna! Potete contattarci senza impegno per ottenere maggiori informazioni o per prenotare una visita per questo nuovo appartamento a Peschiera del Garda, frazione di San Benedetto di Lugana.
Possibilit di mutuo a condizioni agevolate.
La nostra consulenza ti consente di individuare il prodotto pi adatto alle condizioni economiche pi vantaggiose.
Contattateci o scriveteci per una consulenza gratuita. Contatta l'inserzionista

Immobiliare Peschiera SrlsImmobiliare Peschiera Srls
Via Venezia nr. 5
37019, Peschiera del Garda (Verona)
Visualizza Telefono

INFORMAZIONI SULL'IMMOBILE

  • Riferimento: P 28.22-8
  • Tipologia: Appartamento in Vendita
  • Locali: 4 Locali (3 camere con doppi servizi)
  • Piano: Secondo
  • Stato: Ottimo
  • Prezzo: 700.000 €
  • Prezzo al mq: 3.933 €
  • Riscaldamento: Autonomo
  • Modificato il: 08/05/2026
  • Scheda: SC9634956

Stabile

  • Anno: 2026
  • Piano: 2
A4

Mappa e indirizzo

Appartamento sito in via bell'italia
37019 Peschiera del Garda (Verona)
mappa mostra l'annuncio su mappa

Galleria Fotografica

Contatta l'inserzionista

Immobiliare Peschiera Srls

Immobiliare Peschiera Srls di Peschiera del Garda propone in vendita questo immobile, contattali subito!

Annunci simili

Annunci immobiliari a Peschiera del Garda (VR)

Copyright Š 2026 PCase.it. All rights reserved. Sede operativa MILANO. P.IVA 08508420968 - Condizioni d'uso e privacy