Preferiti

Sponsorizza

Stampa

Appartamento bilocale in vendita a Palermo in via costantino lascaris

  • 85.000€
  • 2 locali
  • 60 mq
  • Vendesi

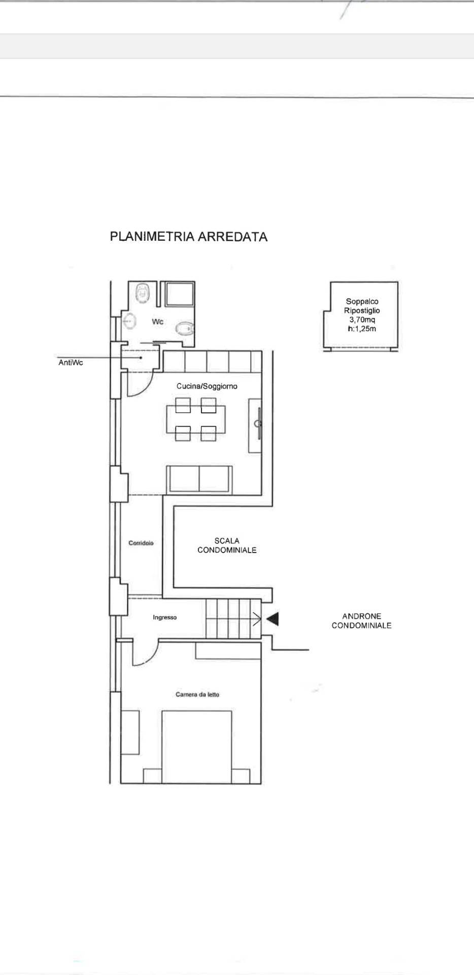
La FP Real Estate propone in vendita in Via Costantino Lascaris, vicino al Tribunale e il Castello Della Zisa, un appartamento posto al piano Terra, di 60 mq circa composto da ingresso su disimpegno, cucina abitabile, successivamente troviamo una stanze, un bagno , tutti gli ambienti sono Finestrati prospicenti su retro prospetto , arredato con mobili nuovi.
Per ulteriori informazioni contattateci allo 0917781384 Contatta l'inserzionista

FP REAL ESTATEFP REAL ESTATE
Via Marchese di Villabianca 82
90143, Palermo (Palermo)
Visualizza Telefono

INFORMAZIONI SULL'IMMOBILE

  • Riferimento: 171
  • Tipologia: Appartamento in Vendita
  • Locali: 2 Locali ( 1 camera e un bagno)
  • Piano: Terra
  • Stato: Buono
  • Prezzo: 85.000 €
  • Prezzo al mq: 1.417 €
  • Spazio Auto: No
  • Soffitta: Si
  • Modificato il: 24/11/2023
  • Scheda: SC9563185

Stabile

  • Piano: Terra
  • Classe Energetica: n.d.

Mappa e indirizzo

Appartamento sito in via costantino lascaris
90131 Palermo (Palermo)
Malaspina, Noce, Palagonia, Zisa
mappa mostra l'annuncio su mappa

Galleria Fotografica

Contatta l'inserzionista

FP REAL ESTATE

FP REAL ESTATE di Palermo propone in vendita questo immobile, contattali subito!

Annunci simili

Annunci immobiliari a Palermo (PA)

Copyright Š 2026 PCase.it. All rights reserved. Sede operativa MILANO. P.IVA 08508420968 - Condizioni d'uso e privacy