Preferiti

Sponsorizza

Stampa

Appartamento in vendita con giardino a Montopoli in Val d'Arno in via musciano

  • 180.000€
  • 4 locali
  • 103 mq
  • Vendesi

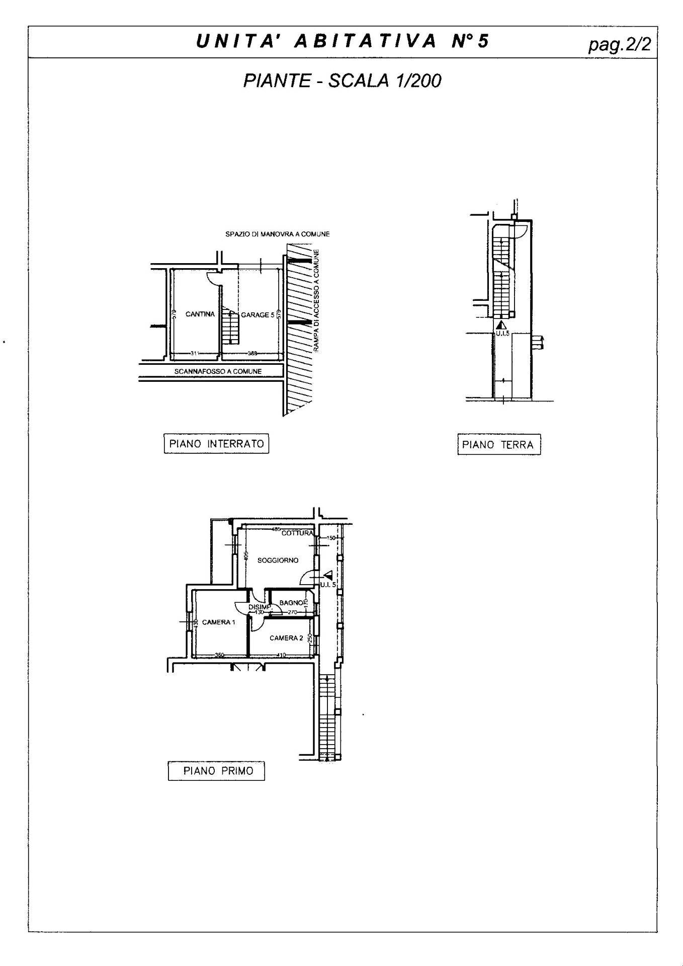
MARTI, Comune di MONTOPOLI IN VAL D'ARNO, in zona residenziale tranquilla immersa nel verde, con posti auto fronte casa, appartamento di recente realizzazione posto al piano primo, con ingresso indipendente da giardino esclusivo e scala esterna, composto da soggiorno/cucina con terrazzo, bagno con doccia, camera matrimoniale, camera singola.
Completa la propriet ampio garage e la cantina al piano seminterrato per un totale di mq.47,comunicante con scala esterna al giardino, l'immobile presenta ottime rifiniture di pregio, ottimo il contesto.
Per maggiori informazioni contattare l'agenzia. Contatta l'inserzionista

Case Toscane Immobiliare sasCase Toscane Immobiliare sas
corso Matteotti 122
56025, Pontedera (Pisa)
Visualizza Telefono

INFORMAZIONI SULL'IMMOBILE

  • Riferimento: 558a
  • Tipologia: Appartamento in Vendita
  • Locali: 4 Locali (3 camere e un bagno)
  • Stato: Ottimo
  • Prezzo: 180.000 €
  • Prezzo al mq: 1.748 €
  • Riscaldamento: Autonomo
  • Giardino: Privato
  • Spazio Auto: Box singolo
  • Cantina: Si
  • Modificato il: 27/11/2023
  • Scheda: SC9562870

Stabile

  • Classe Energetica: n.d.

Mappa e indirizzo

Appartamento sito in via musciano
56020 Montopoli in Val d'Arno (Pisa)
mappa mostra l'annuncio su mappa

Contatta l'inserzionista

Case Toscane Immobiliare sas

Case Toscane Immobiliare sas di Pontedera propone in vendita questo immobile, contattali subito!

Annunci simili

Annunci immobiliari a Montopoli in Val d'Arno (PI)

Copyright Š 2026 PCase.it. All rights reserved. Sede operativa MILANO. P.IVA 08508420968 - Condizioni d'uso e privacy