Preferiti

Sponsorizza

Stampa

Appartamento in vendita con giardino a Montebelluna in vicolo galeazze

  • 360.000€
  • 4 locali
  • 120 mq
  • Vendesi

Luminoso appartamento di nuova costruzione in vendita a Montebelluna, nella frazione di Biadene.
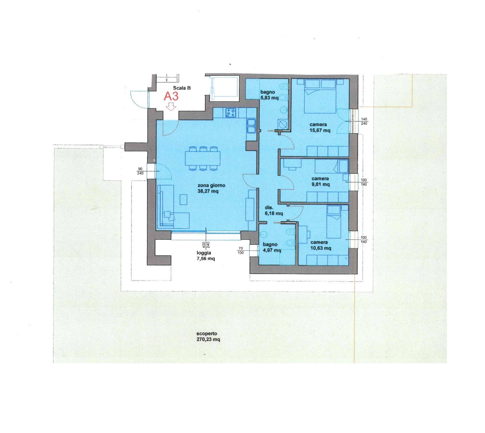
L'immobile, in fase di costruzione si trova al piano terra e dispone di un totale di 120 metri quadrati e di un giardino di circa 270 metri quadrati, ideale per godersi momenti di relax all'aperto e organizzare pranzi e cene con amici e familiari.
L'appartamento composto da quattro locali spaziosi, tra cui un ampio soggiorno con zona pranzo e accesso diretto al giardino privato, l'angolo cottura, tre camere da letto e due bagni.
Completa la propriet un doppio box auto perfetto per chi possiede pi di un veicolo o desidera avere uno spazio protetto per la propria automobile.
Fotovoltaico individuale, caldaia autonoma a pompa di calore, riscaldamento a pavimento e ventilazione controllata.
L'appartamento si trova in una zona tranquilla e ben servita, vicino a scuole, supermercati e tutti i principali servizi.
Ideale per chi cerca una soluzione moderna, comoda e confortevole. Contatta l'inserzionista

Casanet s.a.s.Casanet s.a.s.
piazza Oberkochen, 21
31044, Pozzallo (Ragusa)
Visualizza Telefono

INFORMAZIONI SULL'IMMOBILE

  • Riferimento: 3750
  • Tipologia: Appartamento in Vendita
  • Locali: 4 Locali (3 camere con doppi servizi)
  • Piano: Terra
  • Prezzo: 360.000 €
  • Prezzo al mq: 3.000 €
  • Riscaldamento: Autonomo
  • Giardino: Privato - 270 Mq
  • Modificato il: 11/04/2025
  • Scheda: SC9571050

Stabile

  • Anno: 2025
  • Piano: Terra
A4

Mappa e indirizzo

Appartamento sito in vicolo galeazze
31044 Montebelluna (Treviso)
mappa mostra l'annuncio su mappa

Galleria Fotografica

Contatta l'inserzionista

Casanet s.a.s.

Casanet s.a.s. di Pozzallo propone in vendita questo immobile, contattali subito!

Annunci simili

Annunci immobiliari a Montebelluna (TV)

Copyright Š 2026 PCase.it. All rights reserved. Sede operativa MILANO. P.IVA 08508420968 - Condizioni d'uso e privacy