Preferiti

Sponsorizza

Stampa

Appartamento in vendita con giardino a Molteno in via roma 62

  • 155.000€
  • 4 locali
  • 163 mq
  • Vendesi

Scopri questo splendido appartamento recentemente ristrutturato, situato nel cuore di Molteno, una delle zone pi affascinanti della Brianza lecchese.
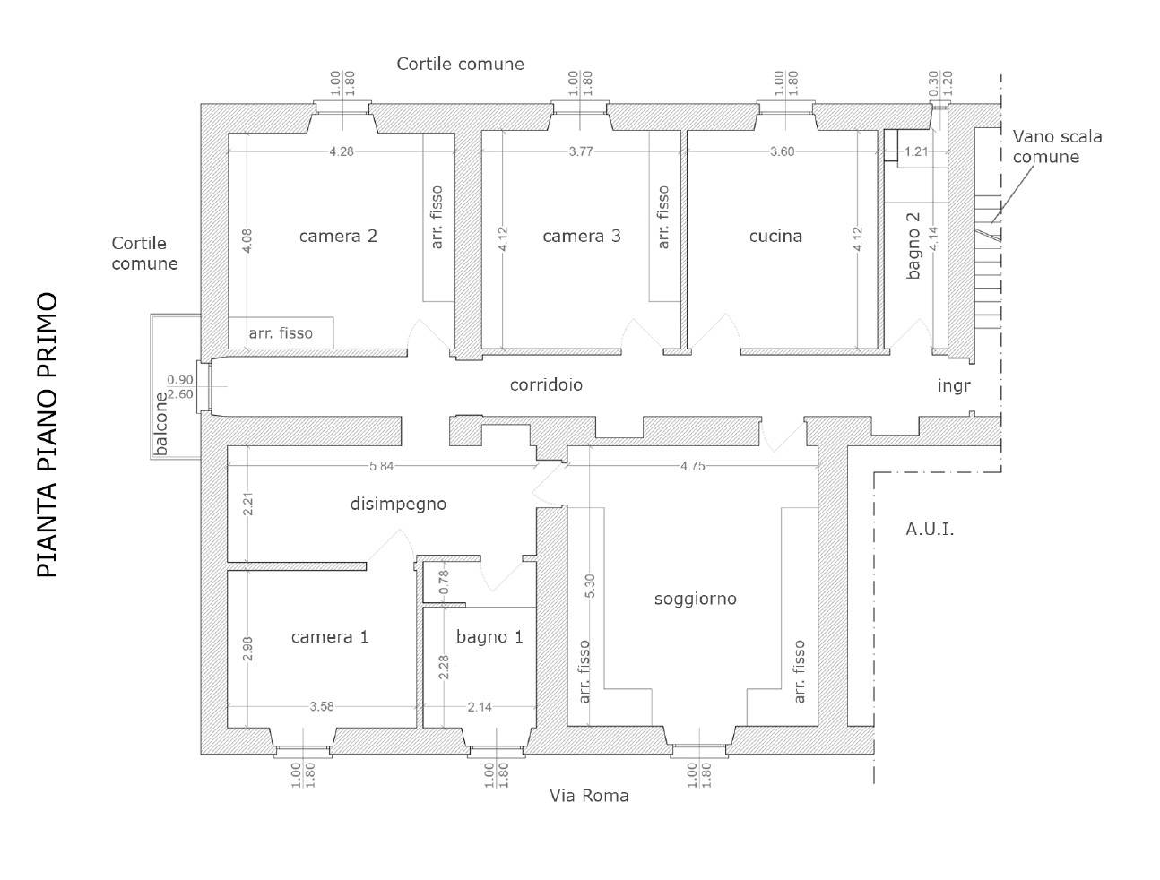
Con i suoi 163 mq, l'immobile offre quattro locali spaziosi e una cucina abitabile (con doppio bagno), perfetti per famiglie o come investimento per affitti turistici.
La nuova pavimentazione, le luci e il verde di Via Roma creano un'atmosfera accogliente e moderna a pochi passi dal centro.
L'appartamento, al primo piano senza ascensore, dotato di un balcone che regala una vista incantevole sulle prealpi lecchesi.
Inoltre, dispone di un'autorimessa, cantina e giardino privato, rendendolo ideale per chi cerca comfort e praticit.
La zona ben servita dai mezzi pubblici (dalla stazione si raggiungono Como, Lecco e Milano), garantendo un facile accesso ai servizi e alle bellezze naturali circostanti.
Non perdere l'opportunit di vivere in un contesto tranquillo e affascinante, dove ogni giorno sar un piacere.
Contattaci per maggiori informazioni e per prenotare una visita! Contatta l'inserzionista

Belhaus Servizi ImmobiliariBelhaus Servizi Immobiliari
Piazza Giancarlo Puecher 3
22037, Ponte Lambro (Como)
Visualizza Telefono

INFORMAZIONI SULL'IMMOBILE

  • Riferimento: Molt 1
  • Tipologia: Appartamento in Vendita
  • Locali: 4 Locali (3 camere con doppi servizi)
  • Stato: Ottimo
  • Prezzo: 155.000 €
  • Prezzo al mq: 951 €
  • Riscaldamento: Autonomo
  • Giardino: Privato
  • Spazio Auto: Box singolo
  • Cantina: Si
  • Soffitta: Si
  • Modificato il: 22/05/2025
  • Scheda: SC9567723

Stabile

I.P.E.
175,93Kwh/m2
F

Mappa e indirizzo

Appartamento sito in via roma, 62
23847 Molteno (Lecco)
mappa mostra l'annuncio su mappa

Galleria Fotografica

Contatta l'inserzionista

Belhaus Servizi Immobiliari

Belhaus Servizi Immobiliari di Ponte Lambro propone in vendita questo immobile, contattali subito!

Annunci immobiliari a Molteno (LC)

Copyright Š 2026 PCase.it. All rights reserved. Sede operativa MILANO. P.IVA 08508420968 - Condizioni d'uso e privacy