Preferiti

Sponsorizza

Stampa

Appartamento in vendita a Milano in via anfiteatro

  • trattativa riservata
  • 7 locali
  • 190 mq
  • Vendesi

Prestigioso primo piano con doppio ingresso via Anfiteatro, Brera Nel cuore di una delle zone pi richieste di Milano, a pochi passi da Corso Garibaldi, nel quartiere di Brera e nelle immediate vicinanze di Parco Sempione, proponiamo in vendita unampia propriet situata in via Anfiteatro.
Limmobile occupa lintero primo piano di uno stabile signorile ed caratterizzato da una tripla esposizione, che garantisce ottima luminosit e ariosit a tutti gli ambienti.
La propriet dispone di doppio ingresso dal vano scala condominiale, elemento di particolare pregio sia per un utilizzo residenziale di rappresentanza sia in ottica di futura riorganizzazione degli spazi.
Completa la propriet una cantina.
Lunit proposta in vendita allo stato di fatto.
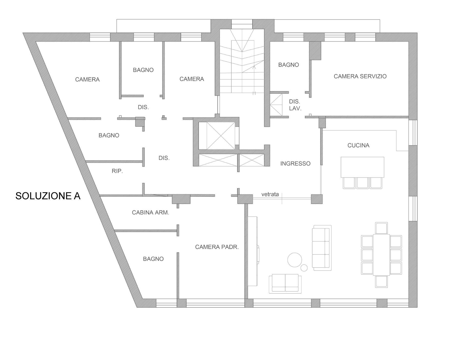
Distribuzione interna stato attuale Limmobile attualmente cos composto: doppio ingresso; ampio disimpegno centrale; soggiorno; cucina separata; cinque camere; due bagni; tre locali ripostiglio; due balconi.
La distribuzione, estremamente regolare, unita alla presenza di affacci su tre lati, rende labitazione particolarmente luminosa e facilmente adattabile a diverse esigenze abitative.
Caratteristiche principali Intero primo piano Tripla esposizione Doppio ingresso Due balconi Cantina di pertinenza Contesto signorile Posizione di assoluto pregio in zona Brera Garibaldi Informazioni su planimetrie e immagini Le immagini, i rendering e le planimetrie di progetto presenti nellannuncio rappresentano ipotesi di ristrutturazione e di ridistribuzione degli spazi, comprensive di una possibile soluzione in ununica grande abitazione o di uneventuale ipotesi di frazionamento.
N.B: Tali elaborati hanno esclusivamente finalit illustrative.
Limmobile viene proposto in vendita nello stato attuale di fatto, come unica unit catastale, senza opere in corso e senza frazionamento gi realizzato. Contatta l'inserzionista

Chiusano MilanoChiusano Milano
Piazza Carlo Erba 6
20129, Milano (Milano)
Visualizza Telefono

INFORMAZIONI SULL'IMMOBILE

  • Riferimento: 12855
  • Tipologia: Appartamento in Vendita
  • Locali: 7 Locali
  • Piano: Primo
  • Stato: Buono
  • Bagni: 3
  • Riscaldamento: Autonomo
  • Spazio Auto: No
  • Cantina: Si
  • Modificato il: 08/05/2026
  • Scheda: SC9599831

Stabile

  • Piano: 1 su 6 totali
  • Giardino: Condominiale
I.P.E.
289,28Kwh/m2
G

Mappa e indirizzo

Appartamento sito in via anfiteatro
20131 Milano (Milano)
Garibaldi, Moscova, Porta Nuova
mappa mostra l'annuncio su mappa

Metropolitana
M2
Fermata Lanza a 260m
circa 4/6 min a piedi
Metropolitana
M2
Fermata Moscova a 370m
circa 6/8 min a piedi
Metropolitana
M1
Fermata Cairoli Castello a 700m
circa 11/13 min a piedi
Metropolitana
M1 M2
Fermata Cadorna FN a 870m
circa 14/16 min a piedi
Metropolitana
M3
Fermata Montenapoleone a 930m
circa 15/17 min a piedi
Metropolitana
M3
Fermata Turati a 970m
circa 16/18 min a piedi

Galleria Fotografica

Contatta l'inserzionista

Chiusano Milano

Chiusano Milano di Milano propone in vendita questo immobile, contattali subito!

Annunci simili

Annunci immobiliari a Milano (MI)

Copyright Š 2026 PCase.it. All rights reserved. Sede operativa MILANO. P.IVA 08508420968 - Condizioni d'uso e privacy