Preferiti

Sponsorizza

Stampa

Appartamento in vendita classe A2 a Mantova in via mazzini

  • 650.000€
  • 8 locali
  • 230 mq
  • Vendesi

APPARTAMENTO IN CENTRO STORICO A MANTOVA L'appartamento , in fase di ristrutturazione, viene consegnato ristrutturato con elevate rifiniture a scelta del cliente.
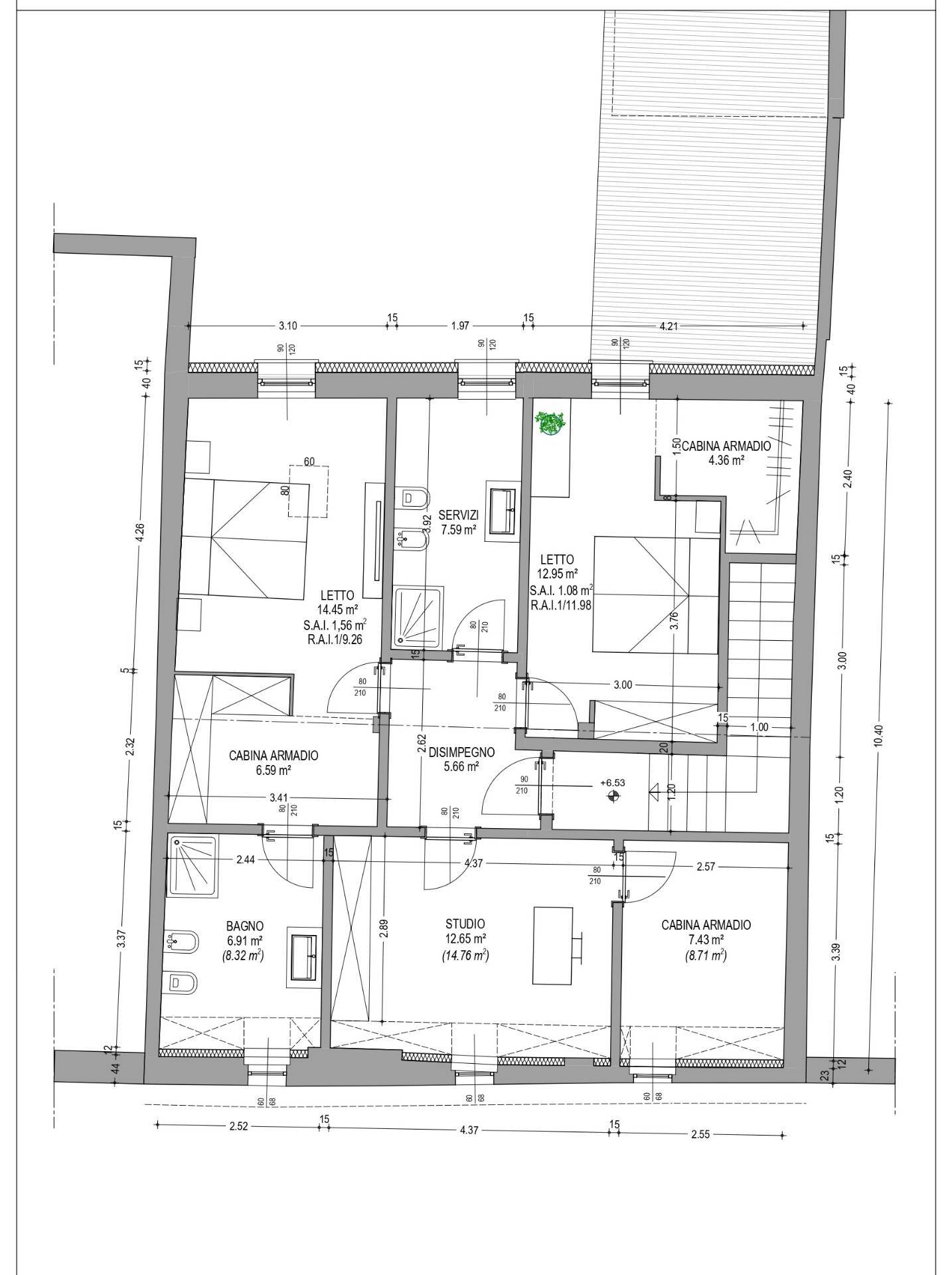
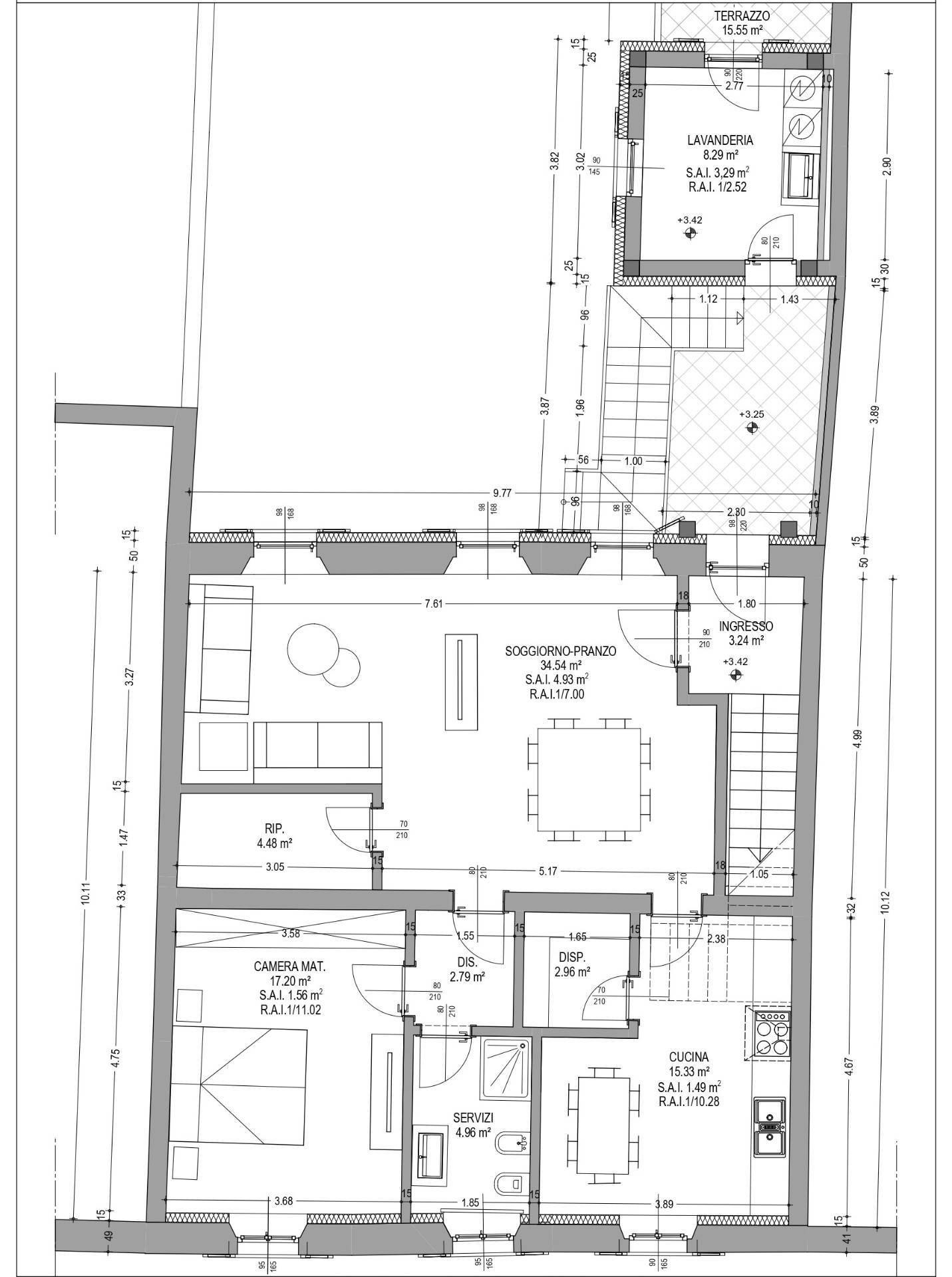
Si sviluppa su due piani - primo e secondo nonch ultimo - su una superficie di circa 230 mq. Al primo piano , a cui si accede con una comoda scala, troviamo: un'ampia zona giorno, cucina separata con dispensa, ripostiglio, una camera matrimoniale e un servizio , oltre a terrazzo e lavanderia separata.
Al secondo piano - sottotetto - : tre camere matrimoniali ciascuna con cabina armadio, due servizi.
L'appartamento all'interno di un immobile con altri due mono-bilocali al piano terra con ingresso separato.
Di pertinenza dell'appartamento sono disponibili due/tre posti auto. Prezzo euro 650.000,00 Per informazioni te. 3478622619 Contatta l'inserzionista

Principe CasaPrincipe Casa
via Pescheria
46100, Mantova (Mantova)
Visualizza Telefono

INFORMAZIONI SULL'IMMOBILE

  • Riferimento: 166
  • Tipologia: Appartamento in Vendita
  • Locali: 8 Locali
  • Bagni: 4
  • Prezzo: 650.000 €
  • Prezzo al mq: 2.826 €
  • Riscaldamento: Autonomo
  • Modificato il: 27/01/2026
  • Scheda: SC9590243

Stabile

  • Anno: 2024
A2

Mappa e indirizzo

Appartamento sito in via mazzini
46100 Mantova (Mantova)
mappa mostra l'annuncio su mappa

Galleria Fotografica

Contatta l'inserzionista

Principe Casa

Principe Casa di Mantova propone in vendita questo immobile, contattali subito!

Annunci simili

Annunci immobiliari a Mantova (MN)

Copyright Š 2026 PCase.it. All rights reserved. Sede operativa MILANO. P.IVA 08508420968 - Condizioni d'uso e privacy