Preferiti

Sponsorizza

Stampa

Appartamento in vendita a Maddaloni in via scarpetta

  • 160.000€
  • 4 locali
  • 90 mq
  • Vendesi

MADDALONI - VIA E. SCARPETTA (A POCHISSIMI METRI INGRESSO VARIANTE CAPUA/MADDALONI Per chi desidera vivere in un ambiente confortevole e ben curato, proponiamo una fantastica opportunit di acquisto.
Questo appartamento in vendita a Maddaloni si presenta in ottime condizioni e offre spazi generosi e ben distribuiti.
Situato al piano rialzato di un edificio di due piani, gode di una posizione privilegiata che garantisce privacy e tranquillit.
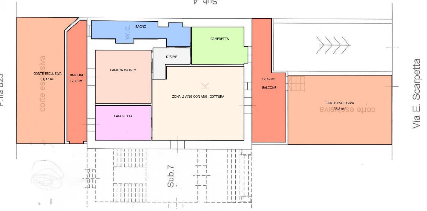
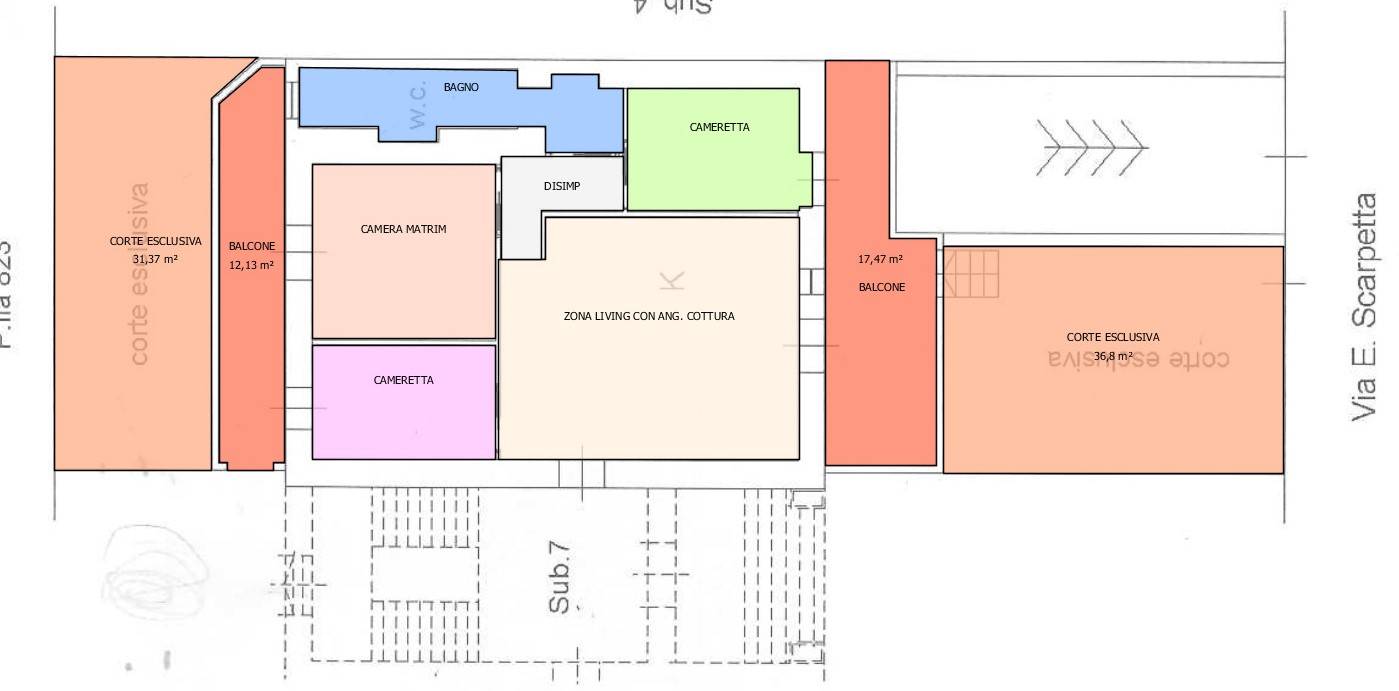
L'immobile, libero al rogito, si estende su una superficie totale di 90 metri quadrati, suddivisi in 4 locali, tra cui 3 camere da letto, ideali per ospitare una famiglia o per chi ha bisogno di spazio aggiuntivo per il lavoro o gli hobby.
L'appartamento dotato di un bagno moderno e funzionale, completo di ogni comfort e di un'ampia zona living con cucina a vista, che regala un'atmosfera conviviale e accogliente essendo servita da un terrazzo a livello e dalla corte esclusiva antistante con entrata indipendente sia carrabile che pedonale, ideali per godere di momenti di relax all'aperto o per organizzare cene e pranzi durante la bella stagione.
Gli ambienti sono luminosi ed ariosi grazie all'ottima doppia esposizione EST/OVEST che garantisce una buona illuminazione naturale durante tutta la giornata.
La propriet dispone di un sistema di riscaldamento autonomo a radiatori , alimentato a metano, che garantisce un confort abitativo ottimale in ogni periodo dell'anno. Lo stato di conservazione dell'immobile ottimo, grazie alla cura e alla manutenzione costante da parte dei proprietari.
L'appartamento viene venduto non arredato, offrendo la possibilit di personalizzare gli spazi secondo i propri gusti e le proprie esigenze.
A completare la proposta, vi il 50% dell'intero piano seminterrato, comodissimo per il parcheggio della tua auto. Situato in una zona residenziale di Maddaloni, comoda per raggiungere i principali servizi e le vie di comunicazione, questo appartamento rappresenta una soluzione ideale per chi desidera vivere in un ambiente confortevole e ben servito.
Non perdere l'occasione di diventare il nuovo proprietario di questo immobile e di godere di tutti i suoi pregi.
Per visionarla, contattaci allo 0823.436914 per concordare un appuntamento! Seguici, per essere aggiornato in tempo reale su: fb: Eccocasa Maddaloni Instagram: eccocasa_maddaloni Contatta l'inserzionista

Eccocasa ImmobiliareEccocasa Immobiliare
via Caudina n. 10
81024, Maddaloni (Caserta)
Visualizza Telefono

INFORMAZIONI SULL'IMMOBILE

  • Riferimento: 3606
  • Tipologia: Appartamento in Vendita
  • Locali: 4 Locali (3 camere e un bagno)
  • Piano: Rialzato
  • Stato: Ottimo
  • Prezzo: 160.000 €
  • Prezzo al mq: 1.778 €
  • Riscaldamento: Autonomo
  • Modificato il: 16/05/2024
  • Scheda: SC9552159

Stabile

  • Piano: Rialzato su 2 totali
  • Classe Energetica: n.d.

Mappa e indirizzo

Appartamento sito in via scarpetta
81024 Maddaloni (Caserta)
mappa mostra l'annuncio su mappa

Galleria Fotografica

Contatta l'inserzionista

Eccocasa Immobiliare

Eccocasa Immobiliare di Maddaloni propone in vendita questo immobile, contattali subito!

Annunci simili

Annunci immobiliari a Maddaloni (CE)

Copyright Š 2026 PCase.it. All rights reserved. Sede operativa MILANO. P.IVA 08508420968 - Condizioni d'uso e privacy