Preferiti

Sponsorizza

Stampa

Appartamento in vendita a Lanciano

  • 300.000€
  • 7 locali
  • 180 mq
  • Vendesi

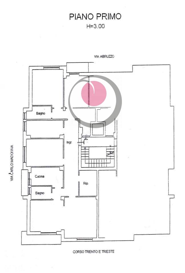
Lanciano, nella meravigliosa cornice di Corso Trento e Trieste, con uno sguardo privilegiato sulla principale via della citt, proponiamo in vendita grande appartamento posto al primo piano di palazzina servita da ascensore.
Ingresso su ampia zona giorno completa di cucina abitabile con tinello e luminoso salone con splendido affaccio sul Corso.
Accedendo alla zona notte si incontrano invece le tre ampie camere servite da balconi e doppi servizi, oltre a due confortevoli locali studio.
Nell'abitazione, in buone condizioni generali, sono presenti finiture di ottima qualit come una pregevole pavimentazione in marmo.
Grazie ad un doppio ingresso possibile destinare parte della superficie ad uso professionale mantenendo la dimesione abitativa.
Una soluzione prestigiosa e accattivante in un'invidiabile posizione centrale che le conferisce un carattere unico ed irripetibile. Contatta l'inserzionista

INFORMAZIONI SULL'IMMOBILE

  • Riferimento: 475/21
  • Tipologia: Appartamento in Vendita
  • Locali: 7 Locali
  • Stato: Ottimo
  • Bagni: 2
  • Prezzo: 300.000 €
  • Prezzo al mq: 1.667 €
  • Riscaldamento: Autonomo
  • Spazio Auto: No
  • Modificato il: 05/03/2025
  • Scheda: SC9551877

Stabile

  • Classe Energetica: n.d.

Galleria Fotografica

Contatta l'inserzionista

Punto Immobiliare Lanciano di Monica Giallonardo

Punto Immobiliare Lanciano di Monica Giallonardo di Pisa propone in vendita questo immobile, contattali subito!

Annunci immobiliari a Lanciano (CH)

Copyright Š 2026 PCase.it. All rights reserved. Sede operativa MILANO. P.IVA 08508420968 - Condizioni d'uso e privacy