Preferiti

Sponsorizza

Stampa

Appartamento in vendita classe A4 a Iesolo in via zara 38

  • trattativa riservata
  • 5 locali
  • 132 mq
  • Vendesi

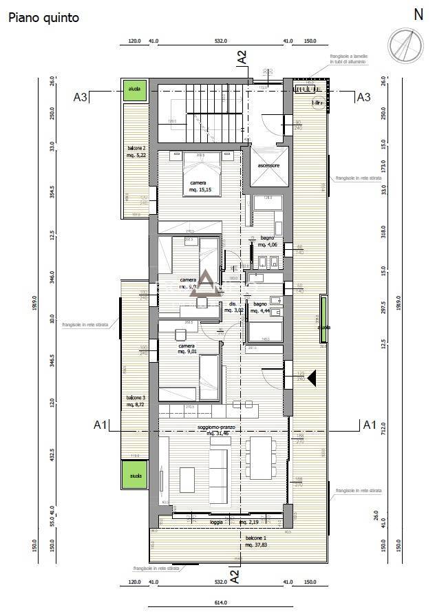
ULTIMA DISPONIBILITA' Bonanno Immobili propone in vendita appartamento di grandi dimensioni a Jesolo in Via Zara n. 38 situato al Piano Quinto vista mare rif. "Residenza J6". Il complesso immobiliare J6 dista 50 metri dal mare ed ospita solo n. 6 appartamenti, uno per piano; Lappartamento in oggetto occupa lintero piano Quinto e si compone di: - N. 1 soggiorno con cucina open-space di 32 mq; - N. 3 camere (con balcone); - N. 2 bagni (finestrati); - N. 1 vano tecnico; - N. 1 terrazza di circa 50 mq. (di cui fronte soggiorno superficie utile di mq. 18). La superficie commerciale totale di mq. 132. Viste le grandi vetrate a scorrimento e l'esposizione a Sud - Ovest la soluzione gode di ottima luce naturale.
Dotato di ogni comfort come il riscaldamento a pavimento, aria condizionata, ventilazione meccanica controllata (VMC), ascensore, fotovoltaico e predisposizione allarme.
Completano la soluzione un agevole ingresso con ampia area di manovra per accedere ai due posti auto coperti ed un comodo deposito per le biciclette entrambi ubicati al Piano Terra.
Possibilit di usufruire del beneficio fiscale SISMA BONUS.
Per maggiori info chiamare in agenzia 0423 1856238 Rif: BLJ5 Contatta l'inserzionista

Bonanno Immobili s.r.l.Bonanno Immobili s.r.l.
Via della Cooperazione 10
31033, Castelfranco Veneto (Treviso)
Visualizza Telefono

INFORMAZIONI SULL'IMMOBILE

  • Riferimento: BLJ5
  • Tipologia: Appartamento in Vendita
  • Locali: 5 Locali
  • Piano: Quinto
  • Bagni: 2
  • Riscaldamento: Autonomo
  • Vista mare: Si
  • Modificato il: 13/04/2026
  • Scheda: SC9464393

Stabile

  • Anno: 2024
  • Piano: 5 su 7 totali
A4

Mappa e indirizzo

Appartamento sito in via zara, 38
30016 Iesolo (Venezia)
mappa mostra l'annuncio su mappa

Galleria Fotografica

Contatta l'inserzionista

Bonanno Immobili s.r.l.

Bonanno Immobili s.r.l. di Castelfranco Veneto propone in vendita questo immobile, contattali subito!

Annunci simili

Annunci immobiliari a Iesolo (VE)

Copyright Š 2026 PCase.it. All rights reserved. Sede operativa MILANO. P.IVA 08508420968 - Condizioni d'uso e privacy