Preferiti

Sponsorizza

Stampa

Appartamento in vendita classe A4 a Istrana in via cesare battisti 40

  • 260.000€
  • 4 locali
  • 80 mq
  • Vendesi

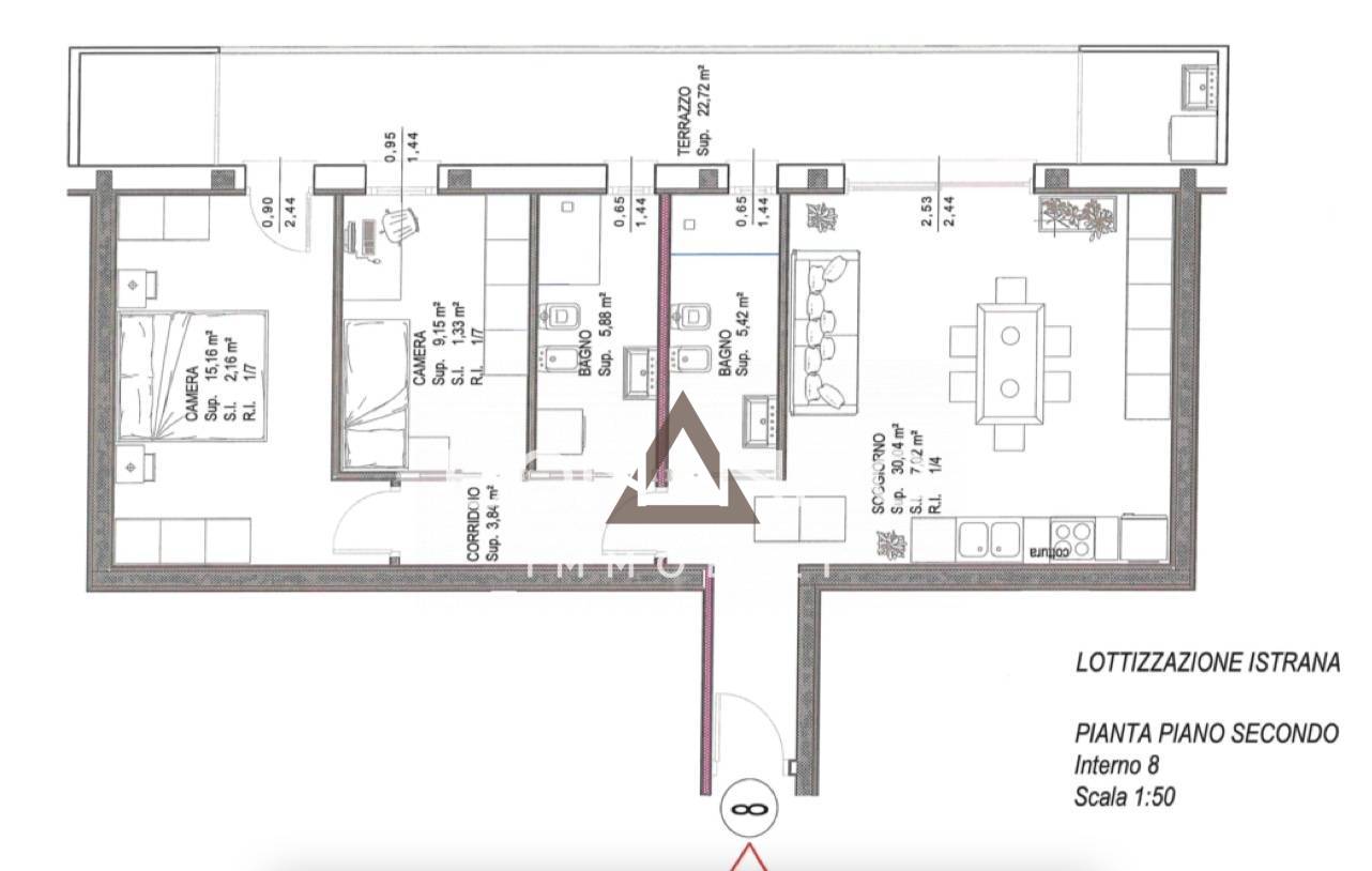
Bonanno Immobili propone in vendita ad Istrana appartamento di nuova costruzione che si trova al piano secondo di una palazzina di 8 unit. (U8) L'appartamento composto da soggiorno/cucina, due camere (una matrimoniale e una singola), due bagni.
Inoltre presente una terrazza di 23 mq. Completa l'immobile un garage singolo.
L'immobile dotato di riscaldamento a pavimento, climatizzatori gi installati, VMC, pannelli fotovoltaici, serramenti in PVC triplo vetro.
Nella zona notte pavimenti in legno.
Consegna prevista per aprile 2026. Per maggiori info chiamare in agenzia 0423 1856238 Rif: BL030 Contatta l'inserzionista

Bonanno Immobili s.r.l.Bonanno Immobili s.r.l.
Via della Cooperazione 10
31033, Castelfranco Veneto (Treviso)
Visualizza Telefono

INFORMAZIONI SULL'IMMOBILE

  • Riferimento: BL030
  • Tipologia: Appartamento in Vendita
  • Locali: 4 Locali (3 camere con doppi servizi)
  • Piano: Secondo
  • Prezzo: 260.000 €
  • Prezzo al mq: 3.250 €
  • Riscaldamento: Autonomo
  • Modificato il: 13/01/2026
  • Scheda: SC9512266

Stabile

  • Anno: 2025
  • Piano: 2
A4

Mappa e indirizzo

Appartamento sito in via cesare battisti, 40
31036 Istrana (Treviso)
mappa mostra l'annuncio su mappa

Galleria Fotografica

Contatta l'inserzionista

Bonanno Immobili s.r.l.

Bonanno Immobili s.r.l. di Castelfranco Veneto propone in vendita questo immobile, contattali subito!

Annunci simili

Annunci immobiliari a Istrana (TV)

Copyright Š 2026 PCase.it. All rights reserved. Sede operativa MILANO. P.IVA 08508420968 - Condizioni d'uso e privacy