Preferiti

Sponsorizza

Stampa

Appartamento in vendita a Grottammare in strada provinciale valtesino 161

  • 140.000€
  • 4 locali
  • 110 mq
  • Vendesi

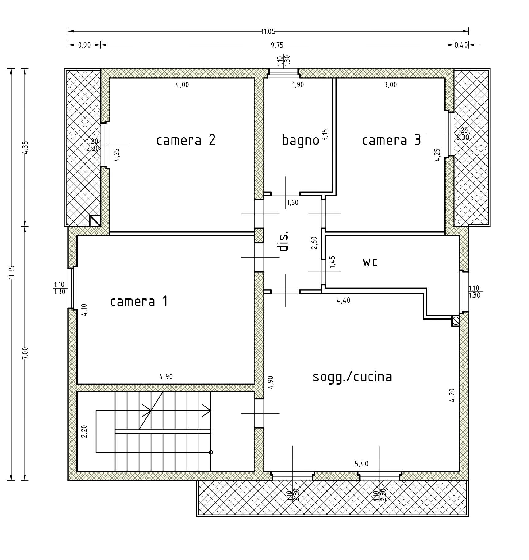
Sulla Strada Provinciale Valtesino, in posizione comoda e ben servita, proponiamo in vendita due appartamenti allo stato grezzo avanzato , situati al primo e secondo piano di una piccola palazzina con ingresso riservato . Le unit immobiliari, gi divise internamente , offrono la possibilit di essere ultime secondo i propri gusti e le proprie esigenze, realizzando per ciascun appartamento: ° soggiorno con cucina a vista ° tre camere da letto ° due bagni ° tre balconi Un'occasione ideale per chi desidera personalizzare la propria casa o per chi cerca una soluzione abitativa doppia (genitori e figli, investimento e residenza, ecc.), ad un prezzo vantaggioso . ° inoltre possibile affidare la realizzazione chiavi in '?'?mano a un'impresa locale referenziata e di fiducia . °° Il prezzo indicato si riferisce all'intero blocco , ovvero entrambi gli appartamenti . Un'opportunit unica per chi vuole costruirsi il proprio futuro a Grottammare! Contatta l'inserzionista

Immobiliare Centro ItaliaImmobiliare Centro Italia
Via Mare, 256
63074, San Benedetto del Tronto (Ascoli Piceno)
Visualizza Telefono

INFORMAZIONI SULL'IMMOBILE

  • Riferimento: A1449
  • Tipologia: Appartamento in Vendita
  • Locali: 4 Locali (3 camere con doppi servizi)
  • Prezzo: 140.000 €
  • Prezzo al mq: 1.273 €
  • Modificato il: 30/10/2025
  • Scheda: SC9490439

Stabile

  • Classe Energetica: n.d.

Mappa e indirizzo

Appartamento sito in strada provinciale valtesino, 161
63013 Grottammare (Ascoli Piceno)
mappa mostra l'annuncio su mappa

Galleria Fotografica

Contatta l'inserzionista

Immobiliare Centro Italia

Immobiliare Centro Italia di San Benedetto del Tronto propone in vendita questo immobile, contattali subito!

Annunci simili

Annunci immobiliari a Grottammare (AP)

Copyright Š 2026 PCase.it. All rights reserved. Sede operativa MILANO. P.IVA 08508420968 - Condizioni d'uso e privacy