Preferiti

Sponsorizza

Stampa

Appartamento in vendita classe A4 a Grottammare in viale de gasperi 62

  • 580.000€
  • 3 locali
  • 65 mq
  • Vendesi

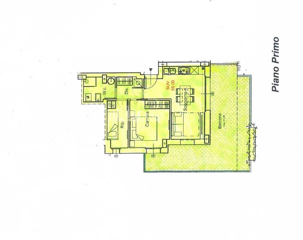
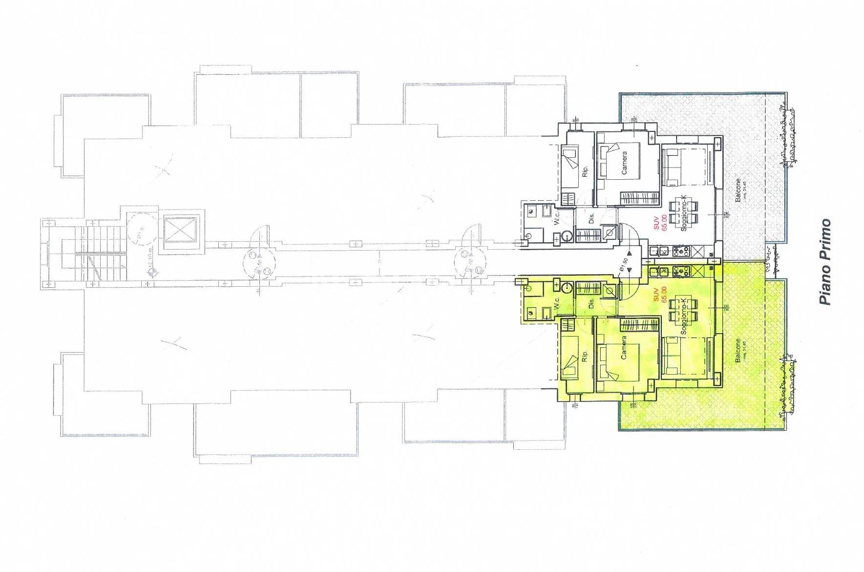
Grottammare, Viale De Gasperi, presso nuovo complesso residenziale TERRAZZE SUL MARE in corso di costruzione, fronte mare. Appartamento al piano primo con ascensore: superficie di mq 65 suddivisi nel seguente modo: ingresso su soggiorno con angolo cottura, una camera da letto matrimoniale, una cameretta, disimpegno con angolo lavanderia, un bagno con doccia, terrazzo perimetrale per complessivi mq 31,40. Bellsisima vista mare. Esposizione sud - est. La parte acquirente potr se richiesto apportare modifiche inerenti la distribuzione interna degli spazi, secondo le proprie necessit, nel rispetto delle aperture esterne e delle condutture.
Finiture: i pavimenti dei soggiorni, cucine, camere e disimpegni, saranno realizzati con una pavimentazione in gres, i rivestimenti dei bagni saranno realizzati in piastrelle di grs porcellanato della Marazzi grande lastri oppure ditte similari in formato 60 x 120 cm, delle seguenti serie e colori a scelta del cliente, i portoncini di primo ingresso alle unit abitative saranno del tipo blindato di dimensioni 90x210cm, con livello di antieffrazione di classe 3 ad anta singola saldamente affrancati alla struttura, ad elevati prestazioni di isolamento acustico e termico, i portoncini saranno dotati di: porta di sicurezza in acciaio rivestita di legno, ad una sola anta, rostri fissi, limitatore di apertura a traslazione, anta di spessore costruita in acciaio zincato, 2 cerniere registrabili nei due sensi in acciaio, telaio su tre lati in acciaio zincato di spessore, angolari ferma pannello, isolamento acustico fino a 40 dB, la progettazione delledificio e dei relativi impianti stata concepita per raggiungere unelevata classificazione energetica, in conformit al D.M. 26 giugno 2015 e alle recenti disposizioni orientate alla neutralit carbonica degli edifici, in particolare, ledificio verr certificato in classe A4. Infissi: fornitura e posa in opera di infissi esterni in tapparelle motorizzate in alluminio verniciate e coibentate in poliuretano ad alta densit, motorizzate e in preverniciato con ferramenta di chiusura.
Fornitura e posa in opera di infissi esterni in alluminio e/o PVC a taglio termico, inoltre ,i controtelai di ciascun infisso (nel caso di tamponatura con blocco in laterizio) saranno della Pasini o similari con VMC relativo al ricircolo dellaria integrato mentre nel caso vi sia tamponatura esterna in cartongesso verranno montati in alternativa controtelai tradizionali (con VMC puntuale). La climatizzazione estiva e invernale, Limpianto di riscaldamento, raffrescamento e sanitario sar puntuale del tipo idronico a mezzo scaldabagno, pompe di calore con riscaldamento a pavimento, il tutto alimentato ad energia elettrica.
Per il raffreddamento ci sono gli idrosplit e/o fan-coil con impianto puntuale.
Tutto limpianto sar completo e funzionante a norma della L.n°42/90 e ***.*******.** Inoltre sotto laspetto condominiale, lalimentazione elettrica sar supportata da impianto fotovoltaico montato in sommit del lastrico solare.
Finitura del pavimento: pu essere costituita da piastrelle, gres porcellanato idoneo alla trasmissione del calore.
importante che lo strato di finitura abbia unelevata conducibilit termica, per massimizzare lefficienza dellimpianto.
Collettori e regolazione Ogni impianto radiante collegato a un collettore (o pi collettori, se labitazione presenta pi zone), dotato di: Rubinetti di intercettazione sulle partenze e sui ritorni, per consentire eventuali interventi di manutenzione; Flussimetri o misuratori di portata, che permettono di bilanciare correttamente ciascun circuito.
Soluzione unica nel suo genere per chi alla ricerca di un immobile di pregio ubicato in 1° fila mare. Contatta l'inserzionista

Re Casa S.r.l.s.Re Casa S.r.l.s.
Via San Francesco n. 13 b/c
63074, San Benedetto del Tronto (Ascoli Piceno)
Visualizza Telefono

INFORMAZIONI SULL'IMMOBILE

  • Riferimento: 9665
  • Tipologia: Appartamento in Vendita
  • Locali: 3 Locali (2 camere e un bagno)
  • Piano: Primo
  • Prezzo: 580.000 €
  • Prezzo al mq: 8.923 €
  • Riscaldamento: Autonomo
  • Spazio Auto: No
  • Vista mare: Si
  • Modificato il: 23/03/2026
  • Scheda: SC9497816

Stabile

  • Anno: 2025
  • Piano: 1 su 3 totali
I.P.E.
41,02Kwh/m2
A4

Mappa e indirizzo

Appartamento sito in viale de gasperi, 62
63013 Grottammare (Ascoli Piceno)
mappa mostra l'annuncio su mappa

Video Slide

Galleria Fotografica

Contatta l'inserzionista

Re Casa S.r.l.s.

Re Casa S.r.l.s. di San Benedetto del Tronto propone in vendita questo immobile, contattali subito!

Annunci immobiliari a Grottammare (AP)

Copyright Š 2026 PCase.it. All rights reserved. Sede operativa MILANO. P.IVA 08508420968 - Condizioni d'uso e privacy