Preferiti

Sponsorizza

Stampa

Appartamento in vendita con giardino a Grottammare in via alighieri

  • trattativa riservata
  • 4 locali
  • 210 mq
  • Vendesi

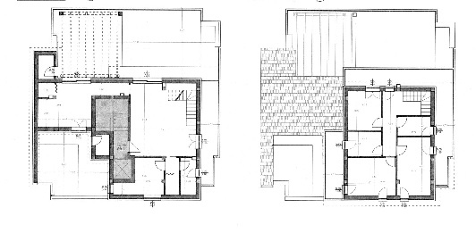
Appartamento di nuova costruzione a Grottammare in vendita - RIF 1395 L' unit sita al piano terzo e quarto di circa 173 mq , in una palazzina di quattro piani con esposizione nord/sud/est/ ovest composta da: Al piano terzo ingresso su ampio soggiorno con cucina abitabile, corridoio, studio, piccolo spogliatoio, disimpegno, bagno ripostiglio.
Al quarto piano due camere da letto matrimoniale , una camera da letto singola, due bagni con box doccia, completa la propriet balconi di 41mq circa, terrazzi di 103 mq circa L' immobile presente ottime rifiniture di cui impianto termico a pavimento, infissi esterni in PVC a taglio termico e doppi vetri, pavimentazione a scelta come da capitolato, predisposizione climatizzatori, predisposizione allarme, video citofono, portoncino blindato.
Classe energetica A La produzione dell'acqua calda al servizio delle singole unit abitative avverr attraverso un gruppo idronico , in grado di soddisfare le esigenze di riscaldamento invernale, e di raffreddamento estivo.
Questo immobile un ottimo investimento per un nucleo famigliare alla ricerca di una residenza fronte mare o come investimento a rendita estiva.
Per ulteriori informazioni e per eventuali visite potete contattare il numero 0735.060012, siamo disponibili presso i nostri uffici siti a San Benedetto del Tronto in via L. Bianchi, 18. Contatta l'inserzionista

Agile ImmobiliareAgile Immobiliare
via bianchi 18
63074, San Benedetto del Tronto (Ascoli Piceno)
Visualizza Telefono

INFORMAZIONI SULL'IMMOBILE

  • Riferimento: 1395
  • Tipologia: Appartamento in Vendita
  • Locali: 4 Locali (3 camere con doppi servizi)
  • Stato: Ottimo
  • Riscaldamento: Autonomo
  • Giardino: Privato
  • Spazio Auto: No
  • Modificato il: 08/04/2024
  • Scheda: SC9561200

Stabile

  • Anno: 2019
  • Piani Totali: 4
A1

Mappa e indirizzo

Appartamento sito in via alighieri
63013 Grottammare (Ascoli Piceno)
mappa mostra l'annuncio su mappa

Galleria Fotografica

Contatta l'inserzionista

Agile Immobiliare

Agile Immobiliare di San Benedetto del Tronto propone in vendita questo immobile, contattali subito!

Annunci simili

Annunci immobiliari a Grottammare (AP)

Copyright Š 2026 PCase.it. All rights reserved. Sede operativa MILANO. P.IVA 08508420968 - Condizioni d'uso e privacy